Trosoban stan na prodaju, Telep, 215.723€, 78m²








215.723 €
2.766 € / m2
- Stan u zgradi
- Grejanje na gas
- Novo
- Prostorije: terasa
- Opremljenost: Prazno - internet, interfon, klima
- Oglas oglašava agencija pod reg. brojem 1596
- 1 garažno mesto
- 1 parking mesto
- Kablovska
- 1 telefonska linija
Opis oglasa
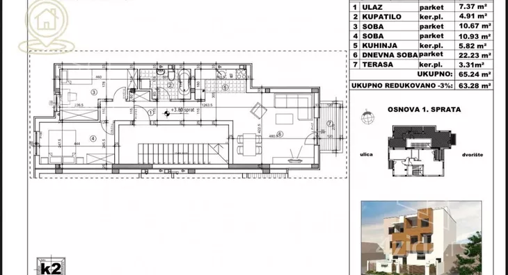
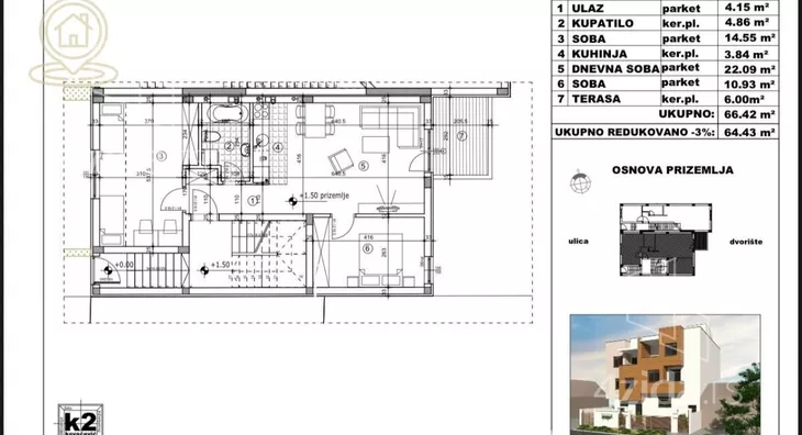
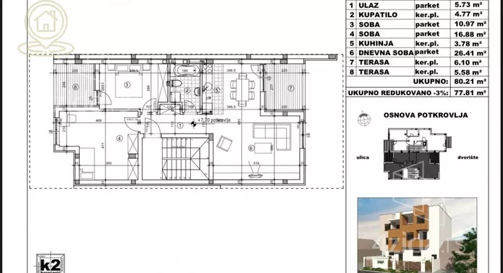
Prodaja trosobnih stanova Telep – kvalitetna gradnja, 63–77m², prizemlje, sprat i potkrovlje
Na prodaju trosobni stanovi na Telepu, površine od 63 do 77 kvadrata, u modernoj zgradi vrhunske gradnje. Stanovi su dostupni u prizemlju, na prvom spratu i u potkrovlju, sa pažljivo osmišljenim rasporedom prostorija i odličnom izolacijom.
✅ Lokacija: miran deo Telepa, u blizini škole, vrtića, prodavnica i autobuskih linija
✅ Struktura: trosobni stanovi od 63m² do 77m²
✅ Spratnost: prizemlje, prvi sprat i potkrovlje
✅ Gradnja: odličan kvalitet, savremeni materijali, energetski efikasni prozori i fasada
✅ Uskoro useljivo
Ovi stanovi na Telepu idealni su za porodično stanovanje ili investiciju.
Agencijska provizija u skladu sa opštim uslovima poslovanja.
Kompas nekretnine – Vaš pouzdan partner u kupovini i prodaji nekretnina.
*Sačuvaj oglas uz belešku i primaj obaveštenja o njihovom pojeftinjenju ili pojavljivanju sličnih
Prikaz stana na mapi
Parkovi u blizini
- Park Bistrica28 min
- Futoški park33 min
- Limanski park39 min

Obeležja kulture u blizini
- Jodna Banja12 min
- Dvorac Eđšeg13 min
- Kuća Jovana Jovanovića Zmaja17 min

Škole/Fakulteti/Vrtići u blizini
- Osnovna škola (Osnovna škola Jožef Atila)10 min
- Srednja škola (Gimnazija Laza Kostić)4 min
- Vrtić (Dečiji vrtić Dunavski cvet)8 min
- Fakultet (Protestantski teološki fakultet)8 min

- Bolnica (Ginekološka bolnica GINS)6 min
- Klinika (Poliklinika Consilium)12 min
- Teretana (Fintess centar Basic Control Academy)10 min
- Prodavnica (Lole dućan)2 min
- Restoran (Restoran Picante)4 min
- Kafana (Kafanica Kod Dače)3 min
- Taksi stajalište (Taxi prevoz Novi Sad)13 min
- Autobuska stanica (Bul. patrijarha Pavla - Senteleki Kornela)4 min
- Banka (Erste Bank Ekspres ekspozitura)4 min
- Pošta (Pošta Novi Sad 21107)6 min
Kontakt oglašivača
Krediti OTP banke
Saznaj više
Prikazana rata odnosi se na maksimalni period otplate. Kalkulator je informativnog karaktera.
* Nakon isteka 5 godina, prelazi se na varijabilnu kamatnu stopu


