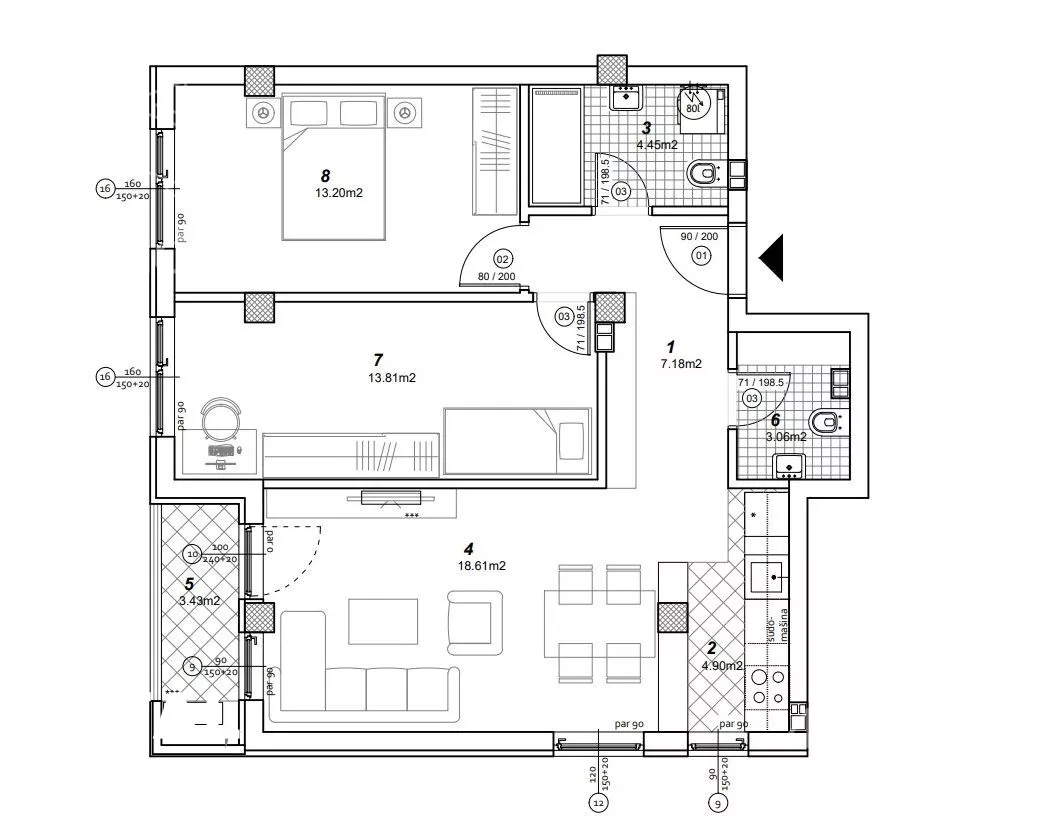
Trosoban stan na prodaju, Telep, 143.080€, 66m²
Novi Sad, Gradske lokacije, Telep
Prikaži mapuŠifra oglasa: 4zida-1101407Oglas ažuriran: pre 1 dan


143.080 €
2.168 € / m2
66 m²
3 sobe
2. sprat
- Stan u zgradi
- Prostorije: terasa
- Oglas oglašava agencija pod reg. brojem 46
- 1 lift
Opis oglasa
Kvalitetna novogradnja, useljiva na proleće 2026. godine. CENA 143.080 eur + PDV + 3 % provizije... Drugi sprat, terasa, lift... Zgrada u središnjem delu Telepa... Mihailo 064... (prikaži broj telefona) ... Agencijska šifra - 1101407
*Sačuvaj oglas uz belešku i primaj obaveštenja o njihovom pojeftinjenju ili pojavljivanju sličnih
Prikaz stana na mapi
Parkovi u blizini
- Park Bistrica28 min
- Futoški park33 min
- Limanski park36 min

Obeležja kulture u blizini
- Jodna Banja12 min
- Dvorac Eđšeg13 min
- Kuća iz 1797. godine18 min

Škole/Fakulteti/Vrtići u blizini
- Osnovna škola (Osnovna škola Jožef Atila)11 min
- Srednja škola (Gimnazija Laza Kostić)5 min
- Vrtić (Dečiji vrtić Zemlja čuda)6 min
- Fakultet (Protestantski teološki fakultet)7 min

Zdravlje
- Bolnica (Ginekološka bolnica Ferona)2 min
- Klinika (Poliklinika Consilium)12 min
- Teretana (EMS Studio Maxifit)5 min
Hrana i piće
- Prodavnica (Supermarket Univerexport)6 min
- Restoran (Caffe restoran Rosetto)7 min
- Kafana (Atos pub)5 min
Prevoz
- Taksi stajalište (Taxi prevoz Novi Sad)20 min
- Autobuska stanica (Feješ Klare - Pravoslavna crkva)3 min
Ostale ustanove
- Banka (Erste Bank Ekspres ekspozitura)6 min
- Pošta (Pošta Novi Sad 21124)7 min
Kontakt oglašivača
▾Reklama▾
Stambeni krediti
- Period otplate od
96 -360 meseca
- NKS 4.34%
Kombinovana kamatna stopa
- Bez troškova obrade kredita
- Odobrenje kredita do 48h
724 € / mesečno
Saznaj više- Period otplate od
96 -360 meseca
- NKS 4.75%
EKS 5.74%
Fiksna kamatna stopa
- Bez troškova obrade kredita
Pogledaj detaljnije i menjaj uslove kreditiranja na
stranici kreditnih kalkulatora
stranici kreditnih kalkulatora
Keš krediti
RSDIznos kredita
Period otplate
13 meseciOsiguranje domaćinstva online
Osiguraj svoje domaćinstvo u slučaju požara...

