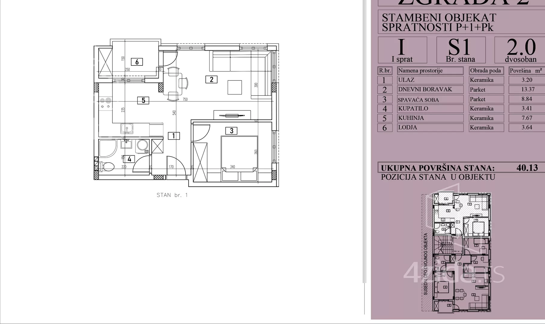
Jednoiposoban stan na prodaju, Telep, 94.800€, 40m²
Telep, Gradske lokacije, Novi Sad
Prikaži mapuOglas ažuriran: 17.03.2026.


94.800 €
2.370 € / m2
40 m²
1.5 sobe
1/2 sprata
- Stan u zgradi
- Podno grejanje
- U izgradnji
- Prostorije: kupatilo, terasa
- Nije uknjiženo
- Oglas oglašava agencija pod reg. brojem 761
- Godina izgradnje: 2026.
Opis oglasa
Prodaja jednoiposobnog stana u izgradnji na samoj granici Telepa i Adica.Stan ce biti useljiv za dva meseca.Cena je sa pdv-om.Postoji mogucnost kupovine garaze.
*Sačuvaj oglas uz belešku i primaj obaveštenja o njihovom pojeftinjenju ili pojavljivanju sličnih
Prikaz stana na mapi
Parkovi u blizini
- Park Bistrica38 min
- Futoški park45 min
- Limanski park46 min

Obeležja kulture u blizini
- Jodna Banja14 min
- Dvorac Eđšeg15 min
- Kuća Jovana Jovanovića Zmaja19 min

Škole/Fakulteti/Vrtići u blizini
- Osnovna škola (Osnovna škola Jožef Atila)5 min
- Srednja škola (Gimnazija Laza Kostić)6 min
- Vrtić (Dečiji vrtić Dunavski cvet)16 min
- Fakultet (Protestantski teološki fakultet)6 min

Zdravlje
- Bolnica (Ginekološka bolnica Ferona)5 min
- Klinika (Poliklinika Consilium)6 min
- Teretana (Fintess centar Basic Control Academy)5 min
Hrana i piće
- Prodavnica (Supermarket Univerexport)6 min
- Restoran (Restoran Petlov salaš)13 min
- Kafana (Kafanica Kod Dače)16 min
Prevoz
- Taksi stajalište (Taxi prevoz Novi Sad)6 min
- Autobuska stanica (Branka Ćopića 42)4 min
Ostale ustanove
- Banka (Erste Bank Ekspres ekspozitura)5 min
- Pošta (Pošta Novi Sad 21142)17 min
Kontakt oglašivača
▾Reklama▾
Krediti OTP banke
Bez troškova obrade kredita
NKS 4.50% - EKS 5.74%
Period otplate 96 -360 meseca
Saznaj više
Prikazana rata odnosi se na maksimalni period otplate. Kalkulator je informativnog karaktera.
* Nakon isteka 5 godina, prelazi se na varijabilnu kamatnu stopu
Osiguranje domaćinstva online
Osiguraj svoje domaćinstvo u slučaju požara...


