Jednoiposoban stan na prodaju, Telep, 106.700€, 39m²
















106.700 €
2.736 € / m2
- Stan u zgradi
- U izgradnji
- Prostorije: terasa
- Uknjiženo
- Oglas oglašava agencija pod reg. brojem 174
- 1 lift
- Godina izgradnje: 2024.
Opis oglasa
Novi Sad – Severni Telep, blizu Futoškog puta
Na prodaju su moderni stanovi u mirnom delu Severnog Telepa, u novoj i kvalitetno građenoj zgradi sa samo šest stanova i liftom. Ova lokacija, smeštena u neposrednoj blizini Futoškog puta, pruža savršen balans između urbanog života i privatnosti, idealna je za one koji žele mir, komfor i dobru povezanost sa ostatkom grada.
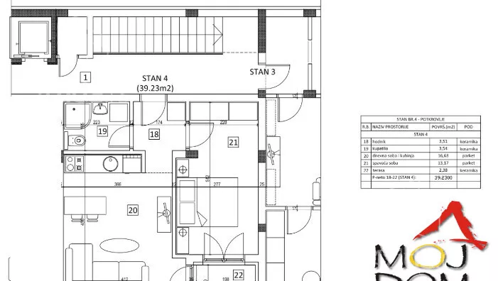
U ponudi su tri stana različitih kvadratura, od 39 do 51 kvadratni metar, što omogućava izbor koji odgovara različitim potrebama i životnim stilovima. Zgrada je projektovana tako da pruži visok nivo udobnosti – svaki stan ima obezbeđeno parking mesto koje se dodatno može kupiti, a u suterenu se nalazi praktična ostava.
Posebna pažnja posvećena je kvalitetu izgradnje i završne obrade. Ugrađena je aluminijumska stolarija sa troslojnim staklom koja obezbeđuje odličnu izolaciju, dok podove krasi laminat debljine 12 mm, otporan na vodu do 72 sata. Grejanje je na gas, a klima uređaji su postavljeni u svakoj prostoriji, što omogućava prijatnu temperaturu tokom cele godine. Tu su i interfon, kao i protočna topla voda koja dodatno doprinosi udobnosti stanovanja.
Cena je iskazana sa uračunatim PDV-om, što dodatno olakšava kupovinu. Ovi stanovi predstavljaju idealan izbor za one koji traže kvalitetno, mirno i moderno mesto za život, ali i za investitore koji žele pouzdanu i dugoročno isplativu nekretninu.
U cenu je uračunata i agencijska pšrovizija od 3%.
Pozovite!
Kontakt -
063... (prikaži broj telefona)
,
063... (prikaži broj telefona)
Šifra - 1031213
Agencija Moj Dom nekretnine, Novi Sad – Reg. br. 174
(Moj Dom nekretnine,Novi Sad,Reg.br.174)
*Sačuvaj oglas uz belešku i primaj obaveštenja o njihovom pojeftinjenju ili pojavljivanju sličnih
Prikaz stana na mapi
Parkovi u blizini
- Park Bistrica28 min
- Futoški park33 min
- Limanski park36 min

Obeležja kulture u blizini
- Jodna Banja12 min
- Dvorac Eđšeg13 min
- Kuća iz 1797. godine18 min

Škole/Fakulteti/Vrtići u blizini
- Osnovna škola (Osnovna škola Jožef Atila)11 min
- Srednja škola (Gimnazija Laza Kostić)5 min
- Vrtić (Dečiji vrtić Zemlja čuda)6 min
- Fakultet (Protestantski teološki fakultet)7 min

- Bolnica (Ginekološka bolnica Ferona)2 min
- Klinika (Poliklinika Consilium)12 min
- Teretana (EMS Studio Maxifit)5 min
- Prodavnica (Supermarket Univerexport)6 min
- Restoran (Caffe restoran Rosetto)7 min
- Kafana (Atos pub)5 min
- Taksi stajalište (Taxi prevoz Novi Sad)20 min
- Autobuska stanica (Feješ Klare - Pravoslavna crkva)3 min
- Banka (Erste Bank Ekspres ekspozitura)6 min
- Pošta (Pošta Novi Sad 21124)7 min
Kontakt oglašivača

Stambeni krediti

- Period otplate od
96 -360 meseca
- NKS 4.75%
EKS 5.74%
Fiksna kamatna stopa
- Bez troškova obrade kredita
stranici kreditnih kalkulatora
Keš krediti
Period otplate
13 meseci