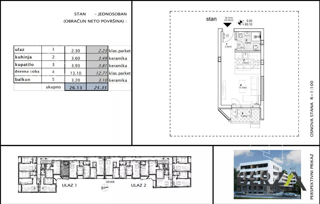
Garsonjera na prodaju, Telep, 71.800€, 25m²


71.800 €
2.872 € / m2
- Stan u zgradi
- Grejanje na gas
- U izgradnji
- Prostorije: terasa
- Uknjiženo
- Oglas oglašava agencija pod reg. brojem 1020
- 1 lift
- Godina izgradnje: 2026.
Opis oglasa
Agencijska šifra: 10007410.
Predstavljamo vam stan u modernoj stambenoj zgradi u izgradnji, koji se odlikuje pažljivo osmišljenim rasporedom prostorija i visokim standardima gradnje. Projekat realizuje pouzdan investitor sa dokazanim iskustvom, što garantuje sigurnost i kvalitet budućim vlasnicima.
Zgrada se gradi u skladu sa savremenim tehničkim normama i propisima, uz posebnu pažnju posvećenu kvalitetu završne obrade, dugotrajnosti i funkcionalnosti prostora.
Planirani završetak radova: april 2026. godine.
Stanovi su prilagođeni savremenim potrebama života – sa optimalnim rasporedom prostorija, efikasnim iskorišćenjem kvadrature i prijatnom atmosferom. Pogodni su kako za porodični život, tako i za investicionu kupovinu.
Za više informacija i zakazivanje prezentacije uživo, pozovite na 060... (prikaži broj telefona) .
*Sačuvaj oglas uz belešku i primaj obaveštenja o njihovom pojeftinjenju ili pojavljivanju sličnih
Prikaz stana na mapi
Parkovi u blizini
- Park Bistrica28 min
- Futoški park33 min
- Limanski park36 min

Obeležja kulture u blizini
- Dvorac Eđšeg12 min
- Jodna Banja12 min
- Galerija Matice srpske16 min

Škole/Fakulteti/Vrtići u blizini
- Osnovna škola (Osnovna škola Jožef Atila)5 min
- Srednja škola (Gimnazija Laza Kostić)5 min
- Vrtić (Dečiji vrtić Zemlja čuda)6 min
- Fakultet (Protestantski teološki fakultet)7 min

- Bolnica (Ginekološka bolnica Ferona)2 min
- Klinika (Poliklinika Consilium)12 min
- Teretana (Fitness club Ozzy Gym)5 min
- Prodavnica (Supermarket Univerexport)6 min
- Restoran (Caffe restoran Rosetto)7 min
- Kafana (Atos pub)5 min
- Taksi stajalište (Taxi prevoz Novi Sad)20 min
- Autobuska stanica (Feješ Klare - Pravoslavna crkva)3 min
- Banka (Erste Bank Ekspres ekspozitura)5 min
- Pošta (Pošta Novi Sad 21124)7 min
Kontakt oglašivača
Krediti OTP banke
Saznaj više
Prikazana rata odnosi se na maksimalni period otplate. Kalkulator je informativnog karaktera.
* Nakon isteka 5 godina, prelazi se na varijabilnu kamatnu stopu


