Dvosoban stan na prodaju, Telep, 164.000€, 78m²






















164.000 €
2.103 € / m2
- Stan u zgradi
- U izgradnji
- Prostorije: terasa
- Uknjiženo
- Oglas oglašava agencija pod reg. brojem 174
- 1 lift
- Godina izgradnje: 2024.
Opis oglasa
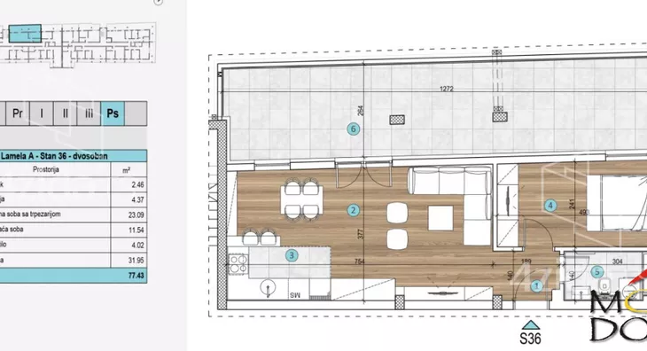
JUŽNI TELEP – Prostran dvosoban stan sa velikom terasom i odličnim rasporedom
Na prodaju je izuzetno komforan dvosoban stan smešten u srcu Južnog Telepa, jedne od najdinamičnijih i najbrže rastućih lokacija u Novom Sadu. Ova nekretnina idealna je za one koji žele da spoje mirno porodično okruženje sa urbanim načinom života i dostupnošću svih važnih sadržaja.
Stan se odlikuje savremenim rasporedom prostorija koji uključuje prostran dnevni boravak povezan sa kuhinjom i trpezarijom, udobnu spavaću sobu, moderno opremljeno kupatilo i izuzetno lepu, komfornu terasu koja predstavlja pravi dragulj ove nekretnine – savršeno mesto za odmor, uživanje i druženje.
Zgrada je izgrađena od strane renomiranog investitora sa dokazanim kvalitetom gradnje i posvećenošću detaljima, što garantuje dugotrajan kvalitet i sigurnost. U cenu stana je uračunat povraćaj PDV-a za kupce koji ispunjavaju uslove, što dodatno doprinosi povoljnosti kupovine.
Lokacija nudi sve što je potrebno za kvalitetan porodični život – u blizini se nalaze škole, vrtići, prodavnice, igrališta i gradski prevoz.
Za više informacija i zakazivanje obilaska, kontaktirajte:
063... (prikaži broj telefona)
Šifra oglasa: 1030658
Moj Dom nekretnine, Novi Sad – Reg. br. 174
(Moj Dom nekretnine,Novi Sad,Reg.br.174)
*Sačuvaj oglas uz belešku i primaj obaveštenja o njihovom pojeftinjenju ili pojavljivanju sličnih
Prikaz stana na mapi
Parkovi u blizini
- Park Bistrica28 min
- Futoški park33 min
- Limanski park36 min

Obeležja kulture u blizini
- Dvorac Eđšeg12 min
- Jodna Banja12 min
- Galerija Matice srpske16 min

Škole/Fakulteti/Vrtići u blizini
- Osnovna škola (Osnovna škola Jožef Atila)5 min
- Srednja škola (Gimnazija Laza Kostić)5 min
- Vrtić (Dečiji vrtić Zemlja čuda)6 min
- Fakultet (Protestantski teološki fakultet)7 min

- Bolnica (Ginekološka bolnica Ferona)2 min
- Klinika (Poliklinika Consilium)12 min
- Teretana (Fitness club Ozzy Gym)5 min
- Prodavnica (Supermarket Univerexport)6 min
- Restoran (Caffe restoran Rosetto)7 min
- Kafana (Atos pub)5 min
- Taksi stajalište (Taxi prevoz Novi Sad)20 min
- Autobuska stanica (Feješ Klare - Pravoslavna crkva)3 min
- Banka (Erste Bank Ekspres ekspozitura)5 min
- Pošta (Pošta Novi Sad 21124)7 min
Kontakt oglašivača

Stambeni krediti

- Period otplate od
96 -360 meseca
- NKS 4.75%
EKS 5.74%
Fiksna kamatna stopa
- Bez troškova obrade kredita
stranici kreditnih kalkulatora
Keš krediti
Period otplate
13 meseci