Dvosoban stan na prodaju, Telep, 109.200€, 41m²






109.200 €
2.663 € / m2
- Stan u zgradi
- Grejanje na gas
- Novo
- Prostorije: terasa
- Opremljenost: Prazno - internet, interfon
- Oglas oglašava agencija pod reg. brojem 1854
- 1 garažno mesto
- 1 parking mesto
- 1 lift
- 1 telefonska linija
Opis oglasa
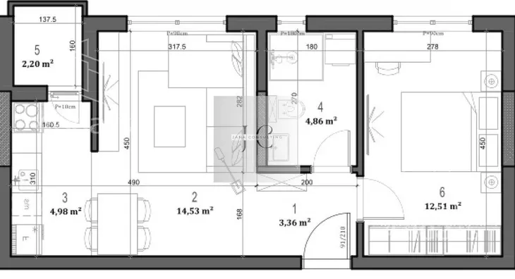
Stan je orijentisan ka severu i ima funkcionalan raspored koji uključuje dnevni boravak, trpezariju, kuhinju, kupatilo, jednu spavaću sobu i terasu. Idealna je prilika za pojedince ili parove koji traže komforan i praktičan stan u dobro povezanom delu grada.
Cena po m² zavisi od dinamike plaćanja:
– 2.585 €/m² – uplata 90% odmah, 10% na primopredaji
– 2.640 €/m² – dinamika plaćanja 30%-30%-30%-10%
– 2.800 €/m² – kupovina putem stambenog kredita
Napomena: Cene su podložne promenama.
Za više informacija, kontaktirajte nas.
065... (prikaži broj telefona)
Jana Consulting
*Sačuvaj oglas uz belešku i primaj obaveštenja o njihovom pojeftinjenju ili pojavljivanju sličnih
Prikaz stana na mapi
Parkovi u blizini
- Park Bistrica28 min
- Futoški park33 min
- Limanski park36 min

Obeležja kulture u blizini
- Dvorac Eđšeg12 min
- Jodna Banja12 min
- Galerija Matice srpske16 min

Škole/Fakulteti/Vrtići u blizini
- Osnovna škola (Osnovna škola Jožef Atila)5 min
- Srednja škola (Gimnazija Laza Kostić)5 min
- Vrtić (Dečiji vrtić Zemlja čuda)6 min
- Fakultet (Protestantski teološki fakultet)7 min

- Bolnica (Ginekološka bolnica Ferona)2 min
- Klinika (Poliklinika Consilium)12 min
- Teretana (Fitness club Ozzy Gym)5 min
- Prodavnica (Supermarket Univerexport)6 min
- Restoran (Caffe restoran Rosetto)7 min
- Kafana (Atos pub)5 min
- Taksi stajalište (Taxi prevoz Novi Sad)20 min
- Autobuska stanica (Feješ Klare - Pravoslavna crkva)3 min
- Banka (Erste Bank Ekspres ekspozitura)5 min
- Pošta (Pošta Novi Sad 21124)7 min
Kontakt oglašivača
Stambeni krediti

- Period otplate od
96 -360 meseca
- NKS 4.75%
EKS 5.74%
Fiksna kamatna stopa
- Bez troškova obrade kredita
stranici kreditnih kalkulatora
Keš krediti
Period otplate
13 meseci
