Četvorosoban stan na prodaju, Telep, 276.000€, 128m²




























276.000 €
2.156 € / m2
- Penthaus
- Grejanje na gas
- Novo
- Prostorije: kupatilo, toalet, terasa
- Opremljenost: Prazno - internet
- Uknjiženo
- Oglas oglašava agencija pod reg. brojem 1781
- Garaža u sklopu zgrade
- Javni parking van zone
- 1 lift
- Godina izgradnje: 2025.
- Tip interneta: optički
- Kablovska
Opis oglasa
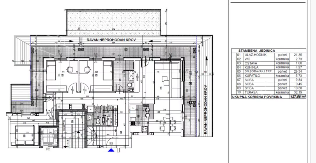
Ekskluzivan penthaus 128m2 – komfor, svetlost i velika terasa
Na prodaju je moderan penthaus na 4. spratu stambene zgrade, osmišljen za udoban i kvalitetan život.
Nekretnina se nalazi u blizini Bulevara Patrijarha Pavla, u blizini mega marketi, pijaca, škola, vrtić, restorani, autobusko stajalište, što olakšava svakodnevni život.
Stan se sastoji od prostranog ulaznog hodnika, funkcionalne kuhinje, trpezarije i dnevnog boravka u otvorenom konceptu, tri spavaće sobe, kupatila, toaleta, ostave, kao i velike terase idealne za odmor, druženje i uživanje na otvorenom.
Posebnu vrednost ovom penthausu daje obilje prirodne svetlosti i odlična organizacija prostora koja jasno odvaja dnevnu i noćnu zonu. Podne obloge su pažljivo birane – kombinacija tarketa i keramike, što dodatno doprinosi osećaju topline i elegancije.
Nekretnina je savršen izbor za one koji traže mir, privatnost i komfor, ali i kao investicija koja ima vrednost uvek atraktivne nekretnine.
- Moguća kupovina garažnog parking mesta
Za sve dodatne informacije i dogovor oko razgledanja stana, kontaktirajte nas na telefon: 065... (prikaži broj telefona) , Select Nekretnine, Registar posrednika br. 1781.
*Sačuvaj oglas uz belešku i primaj obaveštenja o njihovom pojeftinjenju ili pojavljivanju sličnih
Prikaz stana na mapi
Parkovi u blizini
- Park Bistrica24 min
- Futoški park36 min
- Limanski park50 min

Obeležja kulture u blizini
- Jodna Banja14 min
- Dvorac Eđšeg17 min
- Matičarsko zdanje21 min

Škole/Fakulteti/Vrtići u blizini
- Osnovna škola (Osnovna škola Jožef Atila)7 min
- Srednja škola (Privatna medicinska škola Dositej Obradović)8 min
- Vrtić (Dečiji vrtić Dobra Vila)5 min
- Fakultet (Protestantski teološki fakultet)8 min

- Bolnica (Ginekološka bolnica GINS)6 min
- Klinika (Poliklinika Consilium)7 min
- Teretana (Fintess centar Basic Control Academy)6 min
- Prodavnica (Supermarket Univerexport)5 min
- Restoran (Restoran Đeram)6 min
- Kafana (Kafanica Kod Dače)14 min
- Taksi stajalište (Taxi prevoz Novi Sad)16 min
- Autobuska stanica (Bul. patrijarha Pavla - Futoški put)2 min
- Banka (Erste Bank Ekspres ekspozitura)10 min
- Pošta (Pošta Novi Sad 21135)5 min
Kontakt oglašivača
Krediti OTP banke
Saznaj više
Prikazana rata odnosi se na maksimalni period otplate. Kalkulator je informativnog karaktera.
* Nakon isteka 5 godina, prelazi se na varijabilnu kamatnu stopu


