Četvorosoban stan na prodaju, Telep, 243.940€, 105m²






243.940 €
2.323 € / m2
- Stan u zgradi
- U izgradnji
- Oglas oglašava agencija pod reg. brojem 1976
- 1 lift
- Godina izgradnje: 2025.
Opis oglasa
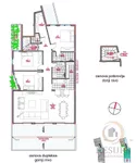
ČETVOROSOBAN STAN U IZGRADNJI BLIZU LIMANA 4, TELEP---Agencijska šifra 1000135. Stan je iz dva nivoa i nalazi se u kvalitetnoj zgradi u izgradnji na odličnoj lokaciji na Telepu u delu blizu Limana 4, kod pouzdanog investitora. Lift ide iz garaže, uz stan je moguće kupiti i garažno parking mesto. Mogućnost povrata PDV-a za kupca prve nekretnine. Planirani završetak radova je septembar 2026. godine. Za više informacija pozovite: 069... (prikaži broj telefona) , 021... (prikaži broj telefona) . Resurs Nekretnine Novi Sad, reg broj posrednika 1976.
*Sačuvaj oglas uz belešku i primaj obaveštenja o njihovom pojeftinjenju ili pojavljivanju sličnih
Prikaz stana na mapi
Parkovi u blizini
- Park Bistrica28 min
- Futoški park33 min
- Limanski park36 min

Obeležja kulture u blizini
- Jodna Banja12 min
- Dvorac Eđšeg13 min
- Kuća iz 1797. godine18 min

Škole/Fakulteti/Vrtići u blizini
- Osnovna škola (Osnovna škola Jožef Atila)11 min
- Srednja škola (Gimnazija Laza Kostić)5 min
- Vrtić (Dečiji vrtić Zemlja čuda)6 min
- Fakultet (Protestantski teološki fakultet)7 min

- Bolnica (Ginekološka bolnica Ferona)2 min
- Klinika (Poliklinika Consilium)12 min
- Teretana (EMS Studio Maxifit)5 min
- Prodavnica (Supermarket Univerexport)6 min
- Restoran (Caffe restoran Rosetto)7 min
- Kafana (Atos pub)5 min
- Taksi stajalište (Taxi prevoz Novi Sad)20 min
- Autobuska stanica (Feješ Klare - Pravoslavna crkva)3 min
- Banka (Erste Bank Ekspres ekspozitura)6 min
- Pošta (Pošta Novi Sad 21124)7 min
Kontakt oglašivača
Krediti OTP banke
Saznaj više
Prikazana rata odnosi se na maksimalni period otplate. Kalkulator je informativnog karaktera.
* Nakon isteka 5 godina, prelazi se na varijabilnu kamatnu stopu


