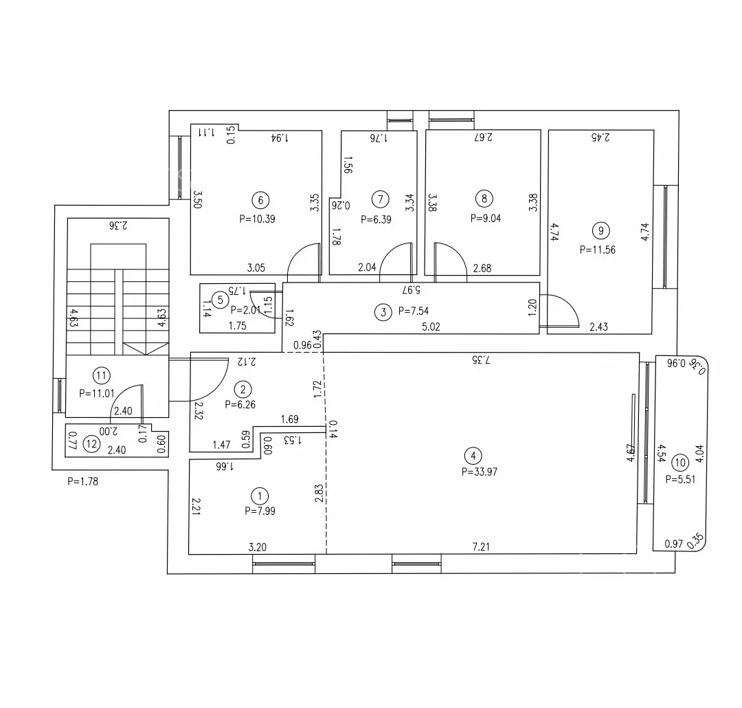
Četvorosoban stan na prodaju, Telep, 297.000€, 103m²






























297.000 €
2.883 € / m2
- Stan u zgradi
- Grejanje na gas
- Prostorije: kupatilo, toalet, terasa
- Opremljenost: Prazno - interfon
- Uknjiženo
- Oglas oglašava agencija pod reg. brojem 951
- 2 parking mesta, parking u dvorištu zgrade
Opis oglasa
Četvorosoban stan – moderan i odmah useljiv!
Stan sa 100m2 KROVNE TERASE !
Kontakt: 065... (prikaži broj telefona) 065... (prikaži broj telefona)
Na izuzetno mirnoj i kvalitetnoj lokaciji, nadomak svih važnih delova grada, prodaje se prostran četvorosoban stan koji pruža maksimalan komfor i udobnost za porodičan život. Lokacija je idealno pozicionirana – dovoljno povučena od gradske buke, a u neposrednoj blizini nalaze se škole, prodavnice, autobusko stajalište i svi sadržaji potrebni za svakodnevni život.
Stan se sastoji od velikog i svetlog dnevnog boravka, uvučene i funkcionalne kuhinje, odvojenog spavaćeg dela sa tri komforne spavaće sobe, kupatila i dodatnog toaleta. Svaki kvadrat prostora pažljivo je osmišljen radi maksimalne iskoristivosti i udobnosti. Zgrada poseduje samo 3 stana.
Grejanje je na gas, sa sopstvenim kotlom za svaku stambenu jedinicu, čime se omogućava potpuna kontrola troškova grejanja i sanitarne vode. Ugrađena je PVC stolarija sa troslojnim staklom punjenim argonom, obezbeđujući odličnu toplotnu i zvučnu izolaciju. Termoizolacija objekta je od stiropora debljine 10 cm, podovi su prekriveni visokokvalitetnim hrastovim parketom velikih dimenzija, dok su ulazna vrata sigurnosna i visokog kvaliteta.
U cenu stana uključena su dva parking mesta i ostava koja se nalazi odmah pored ulaza u stan, što dodatno doprinosi praktičnosti i komforu.
Objekat je savremeno opremljen – poseduje videonadzor, video-interfone, kapiju sa daljinskim otvaranjem i noćno dekorativno osvetljenje sa svih strana zgrade, što stvara dodatni osećaj sigurnosti i prestiža.
Ovaj stan je idealan izbor za porodice koje žele moderan, siguran i kvalitetan dom na mirnoj, a odlično povezanoj lokaciji.
Za više informacija kontaktirajte.
Kontakt: 065... (prikaži broj telefona) 065... (prikaži broj telefona)
Agencijska šifra: 1012738
(Biro za nekretnine d.o.o., Novi Sad, upisan u Reg. posrednika br. 951)
*Sačuvaj oglas uz belešku i primaj obaveštenja o njihovom pojeftinjenju ili pojavljivanju sličnih
Prikaz stana na mapi
Parkovi u blizini
- Park Bistrica32 min
- Futoški park33 min
- Limanski park35 min

Obeležja kulture u blizini
- Dvorac Eđšeg13 min
- Jodna Banja14 min
- Kuća Jovana Jovanovića Zmaja17 min

Škole/Fakulteti/Vrtići u blizini
- Osnovna škola (Osnovna škola Jožef Atila)5 min
- Srednja škola (Gimnazija Laza Kostić)6 min
- Vrtić (Dečiji vrtić Bambino)4 min
- Fakultet (Protestantski teološki fakultet)6 min

- Bolnica (Opšta bolnica sa porodilištem Gea)5 min
- Klinika (Poliklinika Consilium)6 min
- Teretana (Teretana Čeličana 021)5 min
- Prodavnica (IDEA)8 min
- Restoran (Restoran Romanov)9 min
- Kafana (Atos pub)8 min
- Taksi stajalište (Gradski Taxi)22 min
- Autobuska stanica (Feješ Klare - Pravoslavna crkva)5 min
- Banka (Erste Bank Ekspres ekspozitura)7 min
- Pošta (Pošta Novi Sad 21124)9 min
Kontakt oglašivača
Krediti OTP banke
Saznaj više
Prikazana rata odnosi se na maksimalni period otplate. Kalkulator je informativnog karaktera.
* Nakon isteka 5 godina, prelazi se na varijabilnu kamatnu stopu


