Četvorosoban stan na prodaju, Telep, 275.650€, 101m²
















































275.650 €
2.729 € / m2
- Stan u zgradi
- U izgradnji
- Prostorije: terasa
- Uknjiženo
- Oglas oglašava agencija pod reg. brojem 174
- Godina izgradnje: 2025.
Opis oglasa
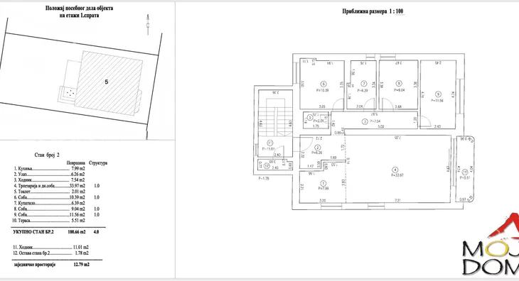
Na Telepu, u jednom od najpoželjnijih delova Novog Sada, prodaje se potpuno nov, moderan četvorosoban stan na prvom spratu koji odiše komforom i kvalitetom. Prostran dnevni boravak zamišljen je kao srce doma – povezuje veliku kuhinju, trpezarijski deo i prijatan prostor za odmor, dok ga veliki portali sa troslojnim staklima obasjavaju prirodnim svetlom tokom celog dana.
Stan ima dva funkcionalno raspoređena kupatila, prostranu terasu idealnu za porodična druženja, kao i dodatnu ostavu koja pruža praktičnost svakodnevnom životu. Sve sobe su osmišljene tako da budu svetle i komforne, sa velikim portalnim prozorima, a raspored sa izdvojenim hodnikom omogućava potpunu privatnost svake prostorije.
U gradnji su korišćeni vrhunski materijali – hrastov parket plemenite topline i keramika modernog dizajna visokog kvaliteta, što stanu daje poseban pečat elegancije i dugotrajnosti. Uz stan dolaze i dva pripadajuća parking mesta, što ovu nekretninu čini još vrednijom.
Ovo je dom koji pruža savršen balans udobnosti, stila i praktičnosti – idealan za porodičan život u blizini škola, marketa i svih sadržaja neophodnih za svakodnevicu.
Za više informacija pozovite:
063... (prikaži broj telefona)
,
063... (prikaži broj telefona)
Šifra oglasa: 1031168
Moj Dom nekretnine, Novi Sad, Reg. br. 174
For sale – A brand-new, modern four-room apartment in Telep, one of the most desirable parts of Novi Sad. Located on the first floor, this spacious home radiates comfort and quality. The open-plan living room is designed as the heart of the home, seamlessly connecting a large kitchen, dining area, and cozy relaxation zone, while floor-to-ceiling triple-glazed windows flood the space with natural light throughout the day.
The apartment features two well-organized bathrooms, a spacious terrace ideal for family gatherings, and an additional storage room that adds practicality to everyday life. All rooms are bright and comfortable, with large portal-style windows, while the layout with a separate hallway ensures complete privacy for each room.
High-quality materials were used in construction – oak parquet flooring with natural warmth and premium modern ceramic tiles, giving the apartment a touch of elegance and long-lasting value. The property also includes two private parking spaces, making it even more attractive.
This is a home that offers the perfect balance of comfort, style, and functionality – ideal for family living, close to schools, markets, and all essential amenities.
For more information call:
063... (prikaži broj telefona)
,
063... (prikaži broj telefona)
Listing code: 1031168
Moj Dom Real Estate, Novi Sad, Reg. no. 174
Продаётся совершенно новая, современная четырёхкомнатная квартира в районе Телеп – одном из самых престижных и востребованных районов Нового Сада. Квартира расположена на первом этаже и сочетает в себе комфорт и высокое качество. Просторная гостиная, задуманная как сердце дома, объединяет большую кухню, столовую зону и уютное место для отдыха, а панорамные окна с тройным остеклением наполняют пространство естественным светом в течение всего дня.
В квартире два функционально расположенных санузла, просторная терраса, идеально подходящая для семейных встреч, а также дополнительная кладовая, обеспечивающая удобство в повседневной жизни. Все комнаты светлые и комфортные, с большими порталными окнами, а планировка с отдельным коридором гарантирует полную приватность каждой зоны.
В строительстве использованы материалы высшего качества – дубовый паркет с благородным теплом и керамика современного дизайна премиум-класса, что придаёт квартире особую элегантность и долговечность. В стоимость входят два парковочных места, что делает объект ещё более ценным.
Этот дом обеспечивает идеальный баланс уюта, стиля и практичности – идеально подходит для семейной жизни рядом со школами, магазинами и всей необходимой инфраструктурой.
Для получения дополнительной информации звоните:
063... (prikaži broj telefona)
,
063... (prikaži broj telefona)
Код объявления: 1031168
Агентство недвижимости Moj Dom, Нови-Сад, Рег. № 174
(Moj Dom nekretnine,Novi Sad,Reg.br.174)
*Sačuvaj oglas uz belešku i primaj obaveštenja o njihovom pojeftinjenju ili pojavljivanju sličnih
Prikaz stana na mapi
Parkovi u blizini
- Park Bistrica28 min
- Futoški park33 min
- Limanski park36 min

Obeležja kulture u blizini
- Jodna Banja12 min
- Dvorac Eđšeg13 min
- Kuća iz 1797. godine18 min

Škole/Fakulteti/Vrtići u blizini
- Osnovna škola (Osnovna škola Jožef Atila)11 min
- Srednja škola (Gimnazija Laza Kostić)5 min
- Vrtić (Dečiji vrtić Zemlja čuda)6 min
- Fakultet (Protestantski teološki fakultet)7 min

- Bolnica (Ginekološka bolnica Ferona)2 min
- Klinika (Poliklinika Consilium)12 min
- Teretana (EMS Studio Maxifit)5 min
- Prodavnica (Supermarket Univerexport)6 min
- Restoran (Caffe restoran Rosetto)7 min
- Kafana (Atos pub)5 min
- Taksi stajalište (Taxi prevoz Novi Sad)20 min
- Autobuska stanica (Feješ Klare - Pravoslavna crkva)3 min
- Banka (Erste Bank Ekspres ekspozitura)6 min
- Pošta (Pošta Novi Sad 21124)7 min
Kontakt oglašivača

Krediti OTP banke
Saznaj više
Prikazana rata odnosi se na maksimalni period otplate. Kalkulator je informativnog karaktera.
* Nakon isteka 5 godina, prelazi se na varijabilnu kamatnu stopu

