Četvorosoban stan na prodaju, Telep, 297.000€, 103m²






















































297.000 €
2.883 € / m2
- Stan u zgradi
- U izgradnji
- Prostorije: terasa
- Uknjiženo
- Oglas oglašava agencija pod reg. brojem 174
- Godina izgradnje: 2025.
Opis oglasa
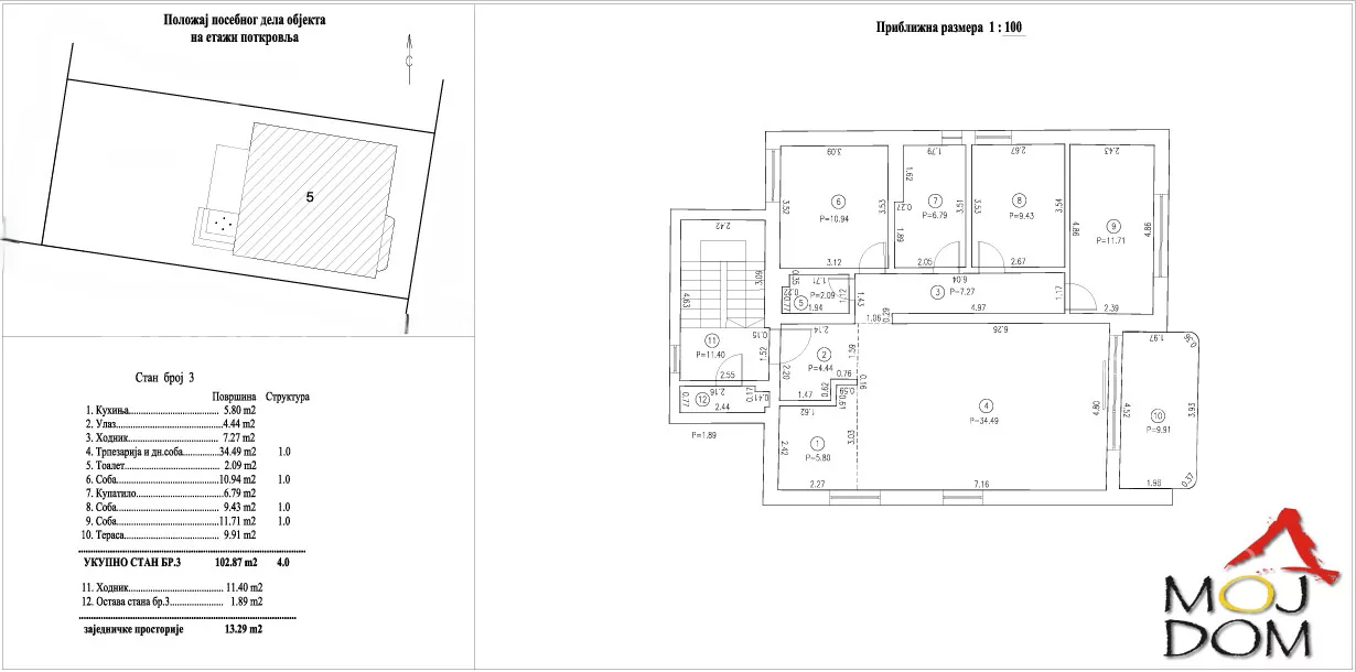
Na Telepu, u jednom od najpoželjnijih delova Novog Sada, prodaje se potpuno nov, moderan četvorosoban stan na drugom spratu koji odiše komforom, kvalitetom i luksuzom. Poseban adut ove nekretnine je krovna terasa od 110 m² sa prelepim panoramskim pogledom na Frušku goru, koja pruža maksimalnu privatnost i mogućnost postavljanja đakuzi bazena – idealno mesto za opuštanje i uživanje na otvorenom.
Prostran dnevni boravak zamišljen je kao srce doma – povezuje veliku kuhinju, trpezarijski deo i prijatan prostor za odmor, dok ga veliki portali sa troslojnim staklima obasjavaju prirodnim svetlom tokom celog dana. Stan poseduje dva funkcionalno raspoređena kupatila, prostranu terasu idealnu za porodična druženja, kao i dodatnu ostavu koja donosi praktičnost svakodnevnom životu. Sve sobe su svetle, komforne i odvojene izdvojenim hodnikom, čime je obezbeđena potpuna privatnost svake prostorije.
U gradnji su korišćeni samo vrhunski materijali – hrastov parket plemenite topline i keramika modernog dizajna visokog kvaliteta, što stanu daje poseban pečat elegancije i dugotrajnosti. Uz stan dolaze i dva pripadajuća parking mesta, što ovu nekretninu dodatno čini praktičnom i vrednom investicijom.
Ovo je dom koji pruža savršen balans udobnosti, stila i funkcionalnosti – četvorosoban stan sa krovnom terasom na Telepu idealan za porodičan život u blizini škola, marketa i svih sadržaja potrebnih za svakodnevicu.
Za više informacija pozovite:
063... (prikaži broj telefona)
,
063... (prikaži broj telefona)
Šifra oglasa: 1031169
Moj Dom nekretnine, Novi Sad, Reg. br. 174
Novi Sad – Grbavica
For sale: an excellent and functional two-and-a-half-room apartment in one of the most sought-after locations in the city. The apartment is spread over two levels, with the lower level consisting of a living room with kitchen and dining area, a terrace, and a toilet, while the upper level includes two bedrooms and a bathroom. The apartment is being sold fully furnished.
The building’s courtyard offers a large parking area where there is almost always a free spot to park your vehicle.
For all additional information, please call:
Contact –
063... (prikaži broj telefona)
Code – 1031173
Moj Dom Real Estate, Novi Sad, Reg. No. 174
For Sale – Modern Four-Bedroom Apartment with Rooftop Terrace in Telep, Novi Sad
In one of the most desirable areas of Novi Sad – Telep – a brand-new, modern four-bedroom apartment is for sale, located on the second floor, offering ultimate comfort, quality, and luxury. A special highlight of this property is the private rooftop terrace of 110 m² with a breathtaking panoramic view of Fruška Gora, perfect for relaxation and outdoor enjoyment, with the option of installing a jacuzzi.
The spacious living room is designed as the heart of the home – connecting a large kitchen, dining area, and a cozy lounge space, while floor-to-ceiling windows with triple-glass panels flood the interior with natural light throughout the day. The apartment includes two functionally designed bathrooms, a large terrace ideal for family gatherings, and an additional storage room that adds practicality to everyday living. All rooms are bright, comfortable, and separated by a dedicated hallway, ensuring complete privacy for every space.
High-quality materials have been used in construction – oak parquet with natural warmth and premium modern ceramic tiles give the apartment a unique touch of elegance and durability. The property comes with two dedicated parking spaces, making it both a practical choice and a valuable investment.
This is a home that perfectly balances comfort, style, and functionality – a four-bedroom apartment with a rooftop terrace in Telep, ideal for family life, close to schools, supermarkets, and all daily amenities.
For more information, call:
063... (prikaži broj telefona)
,
063... (prikaži broj telefona)
Listing ID: 1031169
Moj Dom Real Estate, Novi Sad, Reg. no. 174
Продаётся – Современная четырёхкомнатная квартира с террасой на крыше в Телепе, Нови-Сад
В одном из самых востребованных районов Нови-Сада – Телепе – продаётся абсолютно новая, современная четырёхкомнатная квартира на втором этаже, которая сочетает в себе комфорт, качество и роскошь. Особое преимущество объекта – крытая терраса площадью 110 м² с великолепным панорамным видом на Фрушку Гору, где можно установить джакузи. Это идеальное место для отдыха и наслаждения на свежем воздухе в полной приватности.
Просторная гостиная задумана как сердце дома – объединяет большую кухню, столовую зону и уютное место для отдыха, а панорамные окна с тройным остеклением наполняют пространство естественным светом в течение всего дня. В квартире есть два функционально спроектированных санузла, большая терраса для семейных встреч, а также дополнительная кладовая, которая делает повседневную жизнь ещё удобнее. Все комнаты светлые, просторные и разделены отдельным коридором, что обеспечивает полную приватность.
При строительстве использовались только высококачественные материалы – дубовый паркет благородного оттенка и современная керамика премиум-класса придают квартире особую элегантность и долговечность. В стоимость входят два парковочных места, что делает недвижимость ещё более практичной и выгодной инвестицией.
Это жильё, которое предлагает идеальный баланс уюта, стиля и функциональности – четырёхкомнатная квартира с террасой на крыше в Телепе, идеально подходящая для семейной жизни рядом со школами, магазинами и всей необходимой инфраструктурой.
Для дополнительной информации звоните:
063... (prikaži broj telefona)
,
063... (prikaži broj telefona)
Код объявления: 1031169
Moj Dom недвижимость, Нови-Сад, рег. № 174
(Moj Dom nekretnine,Novi Sad,Reg.br.174)
*Sačuvaj oglas uz belešku i primaj obaveštenja o njihovom pojeftinjenju ili pojavljivanju sličnih
Prikaz stana na mapi
Parkovi u blizini
- Park Bistrica28 min
- Futoški park33 min
- Limanski park36 min

Obeležja kulture u blizini
- Jodna Banja12 min
- Dvorac Eđšeg13 min
- Kuća iz 1797. godine18 min

Škole/Fakulteti/Vrtići u blizini
- Osnovna škola (Osnovna škola Jožef Atila)11 min
- Srednja škola (Gimnazija Laza Kostić)5 min
- Vrtić (Dečiji vrtić Zemlja čuda)6 min
- Fakultet (Protestantski teološki fakultet)7 min

- Bolnica (Ginekološka bolnica Ferona)2 min
- Klinika (Poliklinika Consilium)12 min
- Teretana (EMS Studio Maxifit)5 min
- Prodavnica (Supermarket Univerexport)6 min
- Restoran (Caffe restoran Rosetto)7 min
- Kafana (Atos pub)5 min
- Taksi stajalište (Taxi prevoz Novi Sad)20 min
- Autobuska stanica (Feješ Klare - Pravoslavna crkva)3 min
- Banka (Erste Bank Ekspres ekspozitura)6 min
- Pošta (Pošta Novi Sad 21124)7 min
Kontakt oglašivača

Krediti OTP banke
Saznaj više
Prikazana rata odnosi se na maksimalni period otplate. Kalkulator je informativnog karaktera.
* Nakon isteka 5 godina, prelazi se na varijabilnu kamatnu stopu

