Jednosoban stan na prodaju, Ilije Garašanina, 140.000€, 30m²
























140.000 €
4.667 € / m2
- Stan u zgradi
- Centralno grejanje
- Potrebno renoviranje
- Prostorije: kupatilo, toalet
- Opremljenost: Namešteno - internet, interfon, TV, klima, veš mašina, kuhinjski elementi, sudo mašina, frižider, zamrzivač, mikrotalasna rerna, šporet, rerna, ležaj, plakar, ugradni plakar
- Uknjiženo
- Oglas oglašava agencija pod reg. brojem 1299
- 1 parking mesto
- 1 lift
- Zgrada poseduje: podrum
- Tip interneta: kablovska
- Kablovska
Opis oglasa
Tašmajdan – Ilije Garašanina, 30m², 1.0 stan
💶 Cena: 140.000 €
📍 Lokacija: Ilije Garašanina, Palilula
📏 Površina: 30 m²
🏠 Struktura: Jednosoban
🏢 Sprat: Prizemlje / 6
🔥 Grejanje: Centralno
🛗 Lift: Da
📜 Uknjižen: Da
✨ Opis nekretnine:
U ponudi je izuzetno atraktivan jednosoban stan površine 30m², smešten u ulici Ilije Garašanina, jednoj od najlepših i najtraženijih ulica opštine Palilula.
Lokacija je idealna za život ili investiciju – mirna, prestižna i odlično povezana sa svim delovima grada. 🌳🏙️
Stan se nalazi u prizemlju uredne i održavane zgrade sa liftom, video nadzorom i čistim, reprezentativnim ulazom.
Ispred same zgrade nalazi se veliki parking sa rampom, sa uvek dostupnim slobodnim mestima – što je prava retkost za strogi centar! 🅿️✨
U neposrednoj blizini su Tašmajdanski park, Pravni, Građevinski i Elektrotehnički fakultet, hotel Metropol, kao i Paliluska pijaca, brojni kafići i restorani. ☕🍽️
🛋️ O stanu:
Stan je uknjižen na 30m², od čega je 20m² stambeni prostor, dok uz stan ide i uknjižena ostava od oko 10m², koja može služiti kao dodatna prostorija, radni prostor ili ostava.
Orijentisan je ka mirnom unutrašnjem dvorištu, što obezbeđuje potpunu privatnost i tišinu, iako ste u samom centru grada. 🌿
Stan je u izvornom stanju, te pruža mogućnost uređenja po sopstvenom ukusu. 🎨
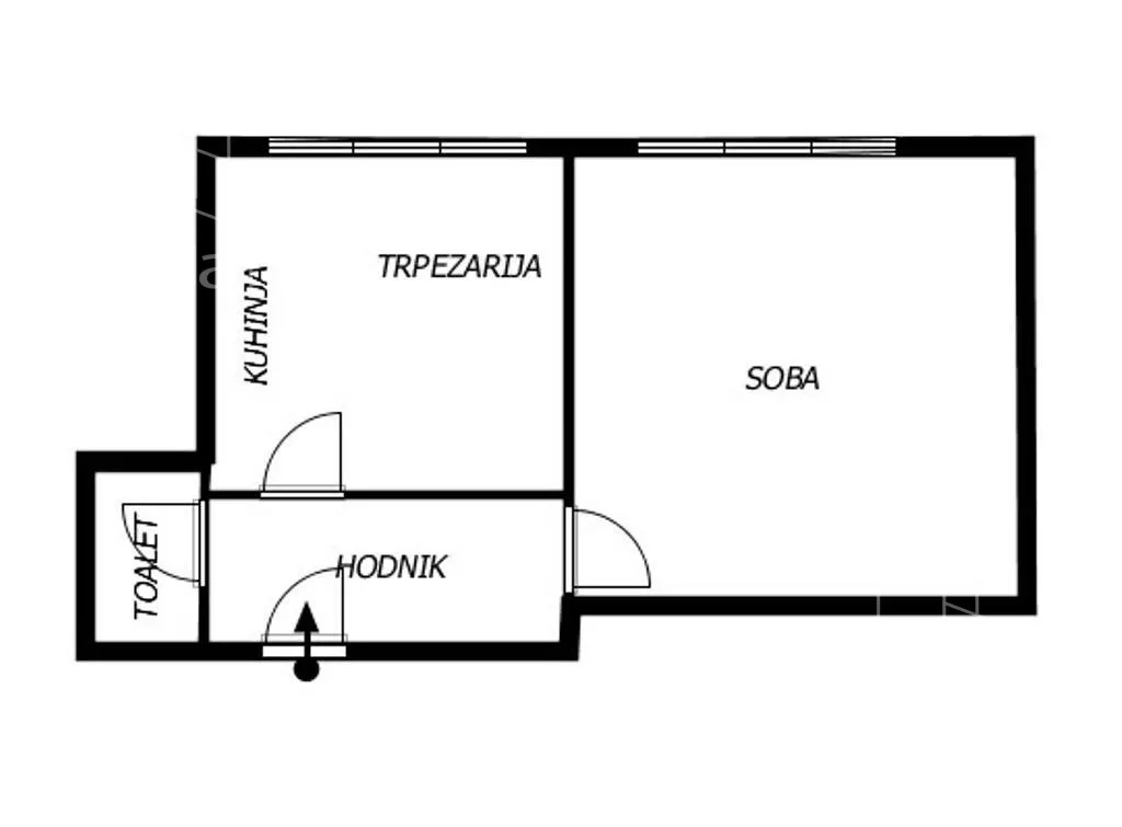
📐 Raspored prostorija:
- Ulazni hodnik
- Kuhinjsko-trpezarijski deo
- Soba
- Toalet
- Prostorija/ostava uz stan
⚙️ Dodatne karakteristike:
🔹 Lift
🔹 Interfon
🔹 Internet, kablovska TV, telefon
🔹 Podrumske prostorije
🔹 Uređeno dvorište
🔹 Video nadzor
🔹 Centralno grejanje
💡 Idealno za:
Život samca ili para 👫, ali i kao poslovni prostor – advokatska, stomatološka ili estetska ordinacija, kancelarija ili prostor za izdavanje. 💼
*Sačuvaj oglas uz belešku i primaj obaveštenja o njihovom pojeftinjenju ili pojavljivanju sličnih
Prikaz stana na mapi
Parkovi u blizini
- Park Mali Tašmajdan2 min
- Park Mike Oklopa4 min
- Tašmajdan6 min

Obeležja kulture u blizini
- Spomenik Miloradu Paviću5 min
- Spomenik Hejdaru Alijevu5 min
- Spomenik Raši Popovu8 min

Škole/Fakulteti/Vrtići u blizini
- Osnovna škola (Osnovna škola Starina Novak)7 min
- Srednja škola (Peta beogradska gimnazija)7 min
- Vrtić (Dečiji vrtić Happy Kids)3 min
- Fakultet (Univerzitet u Beogradu Tehnološko-metalurški fakultet)3 min

- Bolnica (Oftalmološka bolnica Revida)6 min
- Klinika (Poliklinika Prva poliklinika)5 min
- Teretana (City Fitness Club)2 min
- Prodavnica (Market Beoaspekt)3 min
- Restoran (Restoran Taš)5 min
- Kafana (Pab Dablin)4 min
- Taksi stajalište (Taxi stanica)5 min
- Autobuska stanica (Pravni fakultet)4 min
- Tramvajska stanica (Mašinski Fakultet)3 min
- Trolejbuska stanica (Zdravka Čelara)9 min
- Banka (OTP banka)3 min
- Pošta (Pošta Beograd 35)4 min
Kontakt oglašivača
Stambeni krediti

- Period otplate od
96 -360 meseca
- NKS 4.75%
EKS 5.74%
Fiksna kamatna stopa
- Bez troškova obrade kredita
stranici kreditnih kalkulatora
Keš krediti
Period otplate
13 meseci
