Jednoiposoban stan na prodaju, Pazovački put, 124.878€, 45m²


124.878 €
2.775 € / m2
- Stan u zgradi
- Podno grejanje
- Novo
- Opremljenost: Prazno - interfon, klima, kanalizacija
- Oglas oglašava agencija pod reg. brojem 167
- 1 garažno mesto
- 1 parking mesto
- 1 lift
- Kanalizacija
- Godina izgradnje: 2025.
Opis oglasa
Zemun, Sutjeska - Pazovački put
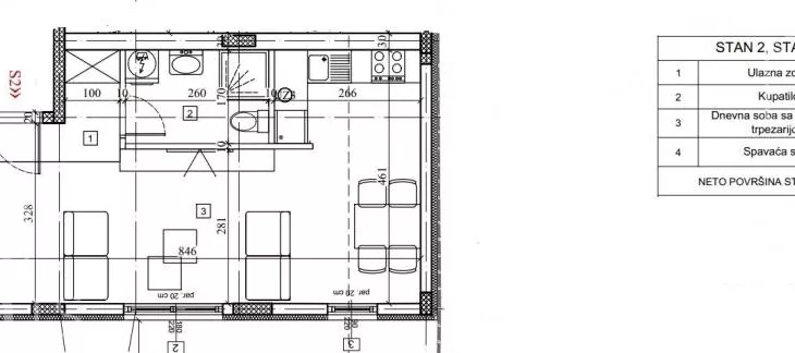
1.5, 45m2, podno grejanje/struja, inverter klima, lift, 1/4, interfon, parking, garaža
Na Pazovačkom putu gradi se zgrada sa tri sprata + povučeni sprat. Zgrada ima i garažu.
Stan je funkcionalan i sastoji se od velikog dnevnog boravka sa kuhinjom, spavaće sobe, hodnika i kupatila.
Stanovi su vrlo funkcionalni, grade se sa vrlo kvalitetnim materijalima - izolacija stiropor 10, španska keramika, PVC stolarija sa troslojnim staklom. Grejanje je podno (na struju) i svaki stan ima svoj kotao, kao i inverter klimu.
Predviđeno useljenje je maj 2026. godine, a predviđena izgrađenost kada će biti moguća kupovina preko stambenog kredita je oktobar 2025. godine.
U cenu stana je uračunat PDV.
Građevinska dozvola.
Agencijska provizija 2%
Agent: Mirela Perović 060... (prikaži broj telefona) (licenca br.2566)
*Sačuvaj oglas uz belešku i primaj obaveštenja o njihovom pojeftinjenju ili pojavljivanju sličnih
Prikaz stana na mapi
Parkovi u blizini
- Dečje igralište18 min
- Park Sava Kovačević19 min
- Dečje igralište26 min

Obeležja kulture u blizini
- Ičkova kuća12 min
- Kuća sa sunčanim satom13 min
- Livnica Pantelić13 min

Škole/Fakulteti/Vrtići u blizini
- Osnovna škola (Osnovna škola Gavrilo Princip)13 min
- Srednja škola (Srednja politehnička škola Politehnika)7 min
- Vrtić (Dečiji vrtić Kamičak)10 min
- Fakultet (Univerzitet u Beogradu Geografski fakultet)7 min

- Bolnica (Hirurška ordinacija Renova)10 min
- Klinika (Poliklinika O2)10 min
- Teretana (Fitness centar Vulkan Gym)12 min
- Prodavnica (Aman market)5 min
- Restoran (Restoran Rudopolje)9 min
- Kafana (Kafana Biblioteka kod Majora)16 min
- Taksi stajalište (Taxi stanica)7 min
- Autobuska stanica (Glavni Poštanski Centar)5 min
- Banka (Raiffeisen Bank)8 min
- Pošta (Pošta Beograd 100)10 min
Kontakt oglašivača
Stambeni krediti

- Period otplate od
96 -360 meseca
- NKS 4.75%
EKS 5.74%
Fiksna kamatna stopa
- Bez troškova obrade kredita
stranici kreditnih kalkulatora
Keš krediti
Period otplate
13 meseci




















