Dvoiposoban stan na prodaju, Surčin, 126.882€, 70m²






126.882 €
1.813 € / m2
- Stan u zgradi
- Etažno grejanje
- Novo
- Opremljenost: Prazno - internet, interfon, klima, kanalizacija
- Uknjiženo
- Oglas oglašava agencija pod reg. brojem 1152
- 1 parking mesto
- Kanalizacija
- Kablovska
- 1 telefonska linija
Opis oglasa
Kvalitetan i moderan stan u energetski efikasnom objektu! Idealno za život ili investiciju, nalazi se na odličnoj lokaciji, u mirnom okruženju sa brzim pristupom glavnim saobraćajnicama.
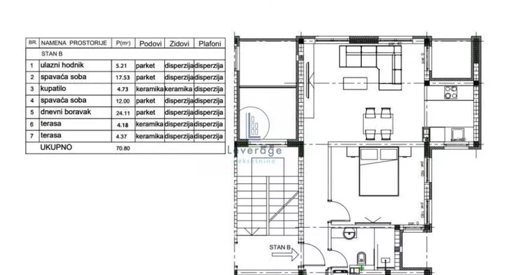
Sastoji se od dnevnog boravka sa kuhinjom, dve spavaće sobe, kupatila, hodnika i dve terase.
Karakteristike:
Smart sistem za upravljanje
Energetski efikasan objekat
Elektro roletne
Višekomorna PVC stolarija (Grey Brown)
Unutrašnja stolarija (Grey Brown i bela medijapan)
Sigurnosna ulazna vrata
Keramika prve klase
Višeslojni parket „Tara koncept”
Interfon
Rok završetka maj 2025. godine.
Agencijska provizija iznosi 2% od kupoprodajne cene.
Kontaktirajte nas za više informacija.
*Sačuvaj oglas uz belešku i primaj obaveštenja o njihovom pojeftinjenju ili pojavljivanju sličnih
Prikaz stana na mapi
Obeležja kulture u blizini
- Spomenik palim borcima11 min
- Spomenik Nikoli Tesli13 min
- Janićeva kafana13 min

Škole/Fakulteti/Vrtići u blizini
- Osnovna škola (Osnovna škola 22. oktobar)8 min
- Srednja škola (Tehnička škola Železnik)18 min
- Vrtić (Dečiji vrtić Duga)8 min
- Fakultet (SMATSA školski centar)12 min

- Bolnica (Opšta bolnica Avala)20 min
- Klinika (Poliklinika Dr Sci. Hadžagić)20 min
- Teretana (Body building i fitness klub Ahilej)5 min
- Prodavnica (Shop&Go)9 min
- Restoran (Walter sarajevski ćevap)14 min
- Autobuska stanica (Dragomira Momčilovića)4 min
- Banka (OTP banka)9 min
- Pošta (Pošta Surčin)13 min
Kontakt oglašivača
Stambeni krediti

- Period otplate od
96 -360 meseca
- NKS 4.75%
EKS 5.74%
Fiksna kamatna stopa
- Bez troškova obrade kredita
stranici kreditnih kalkulatora
Keš krediti
Period otplate
13 meseci