Dvosoban stan na prodaju, Kralja Milana Iv 4, 150.000€, 49m²








150.000 €
3.061 € / m2
- Stan u zgradi
- Grejanje na gas
- U izgradnji
- Prostorije: kupatilo, kuhinja, terasa
- Opremljenost: Prazno - internet
- Pogled na: ulicu
- U procesu uknjižavanja
- Kupovina direktno od vlasnika
- Garaža u sklopu zgrade
- Godina izgradnje: 2025.
- Tip interneta: optički
- Kablovska
Opis oglasa
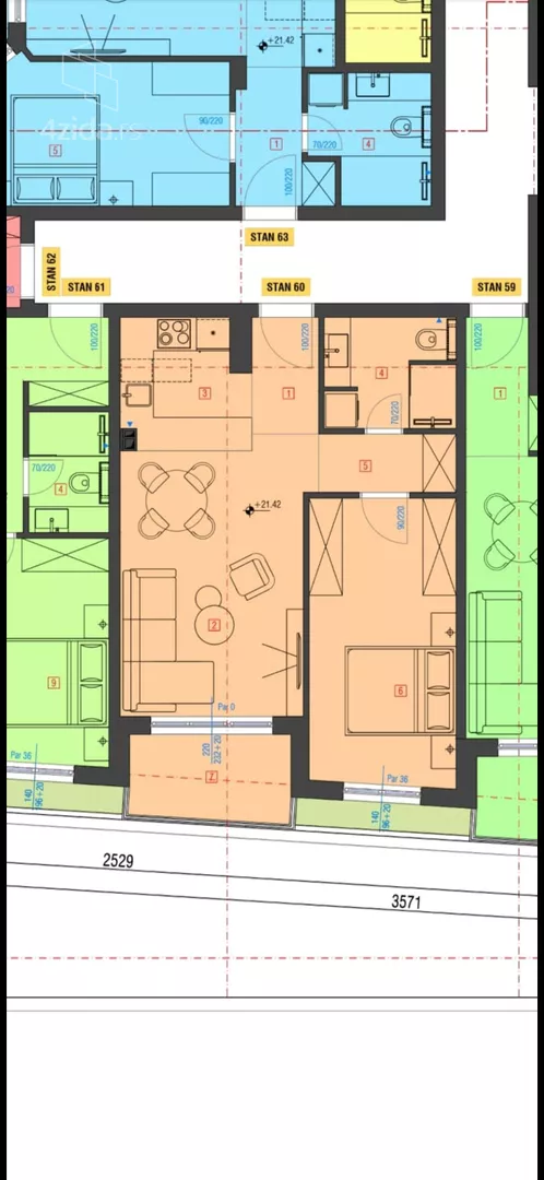
Na prodaju je dvosoban stan površine 49 m², smešten u savremenom stambenom kompleksu u naselju Šumarice u Kragujevcu, u ulici Kralja Milana IV. Stan se nalazi na šestom spratu zgrade sa ukupno sedam spratova i deo je nove gradnje čiji je završetak planiran tokom 2025. godine.
Stan je projektovan kao funkcionalan i moderan prostor, sa dnevnim boravkom, odvojenom spavaćom sobom, kuhinjom, kupatilom i terasom. Isporučuje se prazan, što budućem vlasniku ostavlja mogućnost da ga uredi prema sopstvenim željama i potrebama. Grejanje je na gas, a predviđeni su optički internet i kablovska televizija. Stan je orijentisan ka ulici i nalazi se u zgradi sa liftom.
Posebna prednost ovog kompleksa jeste planirana recepcija sa dežurstvom 24 časa, što obezbeđuje dodatni nivo komfora i sigurnosti. Uz stan je obezbeđena i garaža u sklopu zgrade. Nekretnina je u procesu uknjižavanja, a kupovina se vrši direktno od vlasnika.
Cena stana zajedno sa garažnim mestm iznosi 150.000 €. Ova nekretnina predstavlja odličan izbor kako za stanovanje, tako i za investiciju, zahvaljujući kvalitetnoj novogradnji, atraktivnoj lokaciji i modernom konceptu stanovanja.
*Sačuvaj oglas uz belešku i primaj obaveštenja o njihovom pojeftinjenju ili pojavljivanju sličnih
Prikaz stana na mapi
Parkovi u blizini
- Kreativni park Kragujevac6 min
- Veliki park10 min
- Mali park23 min

Obeležja kulture u blizini
- Spomenik streljanim đacima4 min
- Centralna humka11 min
- Spomenik bola i prkosa16 min

Škole/Fakulteti/Vrtići u blizini
- Osnovna škola (Osnovna škola Jovan Popović)6 min
- Srednja škola (Medicinska škola Sestre Ninković)7 min
- Vrtić (Dečiji vrtić Vini Pu)10 min
- Fakultet (Univerzitet u Kragujevcu Fakultet inženjerskih nauka)7 min

- Bolnica (Ginekološka bolnica Nikolov)10 min
- Klinika (Poliklinika Tesla Medic)12 min
- Teretana (Fitnes centar Elite form)13 min
- Prodavnica (Market Trnava promet)5 min
- Restoran (Restoran Di Trevi)8 min
- Kafana (Etno kafana Palisad)11 min
- Autobuska stanica (Dom Starih)1 min
- Banka (Poštanska štedionica)5 min
- Pošta (Pošta Kragujevac 11)4 min
Kontakt oglašivača

Krediti OTP banke
Saznaj više
Prikazana rata odnosi se na maksimalni period otplate. Kalkulator je informativnog karaktera.
* Nakon isteka 5 godina, prelazi se na varijabilnu kamatnu stopu

