Trosoban stan na prodaju, Stari Košutnjak, 195.000€, 69m²



































195.000 €
2.826 € / m2
- Stan u zgradi
- Renovirano
- Uknjiženo
- Oglas oglašava agencija pod reg. brojem 1896
- Godina izgradnje: 2000.
Opis oglasa
Prodaje se trosoban stan uknjižen na 69m2 u mirnoj ulici na Starom Košutnjaku.
Stan se nalazi na Starom Košutnjaku u stambenom objektu bez lifta, okružen porodičnim kućama i objektima male spratnosti. Ovaj kraj karakteriše blizina Banovom brdu, Dedinju, Kanarevom brdu. Ceo kraj je okružen zelenilom i sa svih strana.
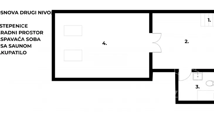
Stan je dvoetažni (duplex) i sastoji se od toaleta, dnevne sobe sa kuhinjom i terase na pravom nivou, dok se na drugom nivou nalazi radni prostor, spavaća soba sa saunom i kupatilo. Uz stan idu i pripadajuće podrumske prostorije.
Stan je renoviran pre godinu dana kada je sve urađeno kompletno od nove struje, vodovodnih instalacija i keramike. Grejanje je na toplotnu pumpu kojom se može upravljati putem aplikacije na telefonu, stolarija je pvc. U stanu se nalaze 2 klime, po jedna za svaku etažu. Podne obloge u sobama su parket, u kupatilima i kuhinji pločice.
Stan se prodaje kompletno namešten, sa svim uređajima i belom tehnikom.
Parkiranje je u slobodnoj zoni.
U neposrednoj blizini:
-osnovna škola Đuro Jakšić na 10 minuta hoda
-osnovna škola Ivo Andrić na 20 minuta hoda
-Beogradski buvljak na 5 minuta kolima
-VMA na 7-8 minuta kolima
-Beli dvor i Kraljev kompleks na 5 minuta kolima
-dom zdravlja Kanarevo brdo na 10 minuta hoda
-prodavnice, kafići restorani u Pere Velimirovića na 5 minuta hoda
-sportska hala Slodes na 5 minuta kolima
-tržni centar Banjica na 10 minuta kolima
Mapa i nacrt stana su informativnog karaktera. Plava tačka na nacrtu predstavlja poziciju kamere.
Za sve dodatne informacije možete nas kontaktirati.
Agencijska provizija je 2% od kupoprodajne cene i uključuje:
- razgledanje stana
- učestvovanje prilikom pregovaranja u cilju realizacije posla i zaključivanja ugovora
- dostavljanje vlasničke dokumentacije na uvid
- advokatske usluge za realizaciju predmetne kupovine u smislu sačinjavanja predugovora i ugovora
- organizaciju overe predugovora i ugovora kod notara
- organizaciju transfera novca kod poslovnih banaka
- asistenciju u vezi sa porezom i prebacivanjem računa na ime kupca
- organizovanje primopredaje nepokretnosti i drugih stvari u skladu sa Zakonom o posredovanju u prometu i zakupu nepokretnosti
*Sačuvaj oglas uz belešku i primaj obaveštenja o njihovom pojeftinjenju ili pojavljivanju sličnih
Prikaz stana na mapi
Kontakt oglašivača
Krediti OTP banke
Saznaj više
Prikazana rata odnosi se na maksimalni period otplate. Kalkulator je informativnog karaktera.
* Nakon isteka 5 godina, prelazi se na varijabilnu kamatnu stopu

