Troiposoban stan na prodaju, MILUTINA BOJICA, 295.000€, 73m²






































295.000 €
4.041 € / m2
- Stan u zgradi
- Centralno grejanje
- Prostorije: terasa
- Oglas oglašava agencija pod reg. brojem 109
- 1 lift
Opis oglasa
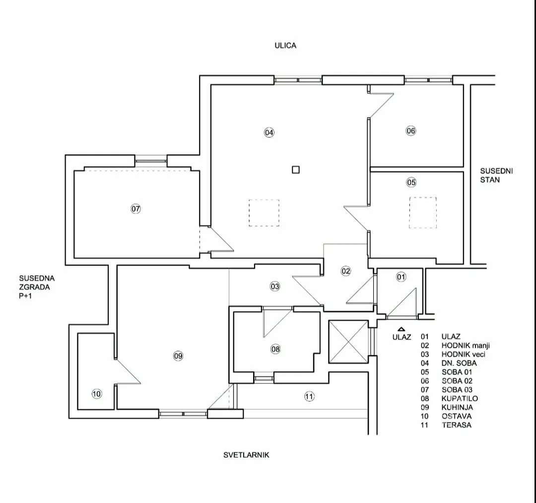
Predstavljamo vam jedinstvenu priliku za kupovinu stana od 73m2 izmerene povrsine(uknjizen na 64m2 na jednoj od najvrednijih starogradskih mikrolokacija. Stan je pozicioniran na cetvrtoj od pet etaza(lift do stana), dvostrano orijentisan vecim delom prema ulici i pruza mogucnosti za razlicite unutrasnje prostore, stukture i ambijente(vecina zidova je pregradna). Krov iznad stana je nov sa mogucnoscu podizanja kako bi se dobio prostor za galeriju. Stambena jedinica je delimicno renovirana i po sadasnjem rasporedu poseduje dnevnu zonu, dve spavace sobe, garderober sobu, kuhinju sa trpezarijom i odvojenom ostavom, kupatilo, degazman i terasu. Nekretnina prilagodjena klijenteli koja zeli da kreira prostor po svojoj meri(idealne mogucnosti za loft-stil), na gotovo pefektnoj lokaciji. Zgrada je ocuvana, reprezentativna, sa elegantnim ulazom i pre izvesnog vremena obnovljenom fasadom. Pripadajuci podrum. Preporuka.
*Sačuvaj oglas uz belešku i primaj obaveštenja o njihovom pojeftinjenju ili pojavljivanju sličnih
Prikaz stana na mapi
Parkovi u blizini
- Pionirski park11 min
- Tašmajdan11 min
- Park Andrićev venac13 min

Obeležja kulture u blizini
- Zadužbina Ive Andrićamanje od 1 min
- Spomen kuća Uroša Predića4 min
- Prva varoška bolnica5 min

Škole/Fakulteti/Vrtići u blizini
- Osnovna škola (Osnovna škola Vuk Karadžić)7 min
- Srednja škola (Pravno poslovna škola)5 min
- Vrtić (Dečiji vrtić Skadarlija)5 min
- Fakultet (Evropski univerzitet - Institut za američki biznis MBA)6 min

- Bolnica (Belloko centar za oftalmologiju i estetiku)2 min
- Klinika (Poliklinika Endo Top)5 min
- Teretana (FIT - profesionalni fitnes studio)2 min
- Prodavnica (City market)3 min
- Restoran (Restoran Komšike)2 min
- Kafana (Pivara Dragstor)7 min
- Taksi stajalište (Taxi stanica)9 min
- Autobuska stanica (Džordža Vašingtona)6 min
- Tramvajska stanica (Bulevar Despota Stefana)6 min
- Trolejbuska stanica (27. Marta)7 min
- Banka (NLB Komercijalna banka)6 min
- Pošta (Pošta Beograd 51)5 min
Kontakt oglašivača
Stambeni krediti
- Period otplate od
96 -360 meseca
- NKS 4.34%
Kombinovana kamatna stopa
- Bez troškova obrade kredita
- Odobrenje kredita do 48h
- Period otplate od
96 -360 meseca
- NKS 4.50%
EKS 5.74%
Fiksna kamatna stopa
- Bez troškova obrade kredita
stranici kreditnih kalkulatora
Keš krediti
Period otplate
13 meseci- Period otplate od 13 -71 mesec
- NKS 10.55%
- EKS od 10.87%
- Za klijente banke
mesečno

