Dvoiposoban stan na prodaju, Stari Grad, 175.100€, 80m²




















175.100 €
2.189 € / m2
- Salonac
- Centralno grejanje
- Prostorije: kuhinja, terasa
- Opremljenost: Namešteno - TV, klima, veš mašina, frižider, rerna, ležaj, plakar
- Uknjiženo
- Oglas oglašava agencija pod reg. brojem 2115
- Kablovska
Opis oglasa
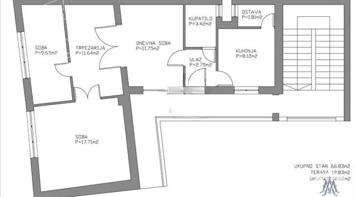
Prodaje se trosoban salonski stan površine 80 m², smešten u pešačkoj zoni, u strogom centru Novi Sad, u ulici Laze Telečkog. Stan se nalazi na drugom spratu zgrade bez lifta i poseduje centralno grejanje.
Sastoji se od ulaznog hodnika, dnevnog boravka, kuhinje sa ostavom, trpezarije, dve spavaće sobe, kupatila i terase. Stan je kompletno namešten i opremljen internetom, interfonom i klimom. Uknjižen je 1/1 i pogodan za kupovinu putem stambenog kredita, uključujući i kredit za mlade, uz našu pomoć u realizaciji.
Nekretnina se nalazi na jednoj od najatraktivnijih lokacija u gradu i idealna je kako za stanovanje, tako i za investiciju.
Cena: 175.100 € (u cenu je uključena agencijska provizija).
Kontakt telefoni:
+38... (prikaži broj telefona)
(русскоговорящий агент) i
+38... (prikaži broj telefona)
.
ATTICO GROUP DOO je licencirana agencija za posredovanje u prometu nekretnina, upisana u Registar posrednika pod brojem 2115. Agencijska provizija za kupca iznosi 3% od ugovorene kupoprodajne cene.
Napomena za kolege: Agencija je otvorena za poslovnu saradnju sa svim licenciranim agencijama i posrednicima.
*Sačuvaj oglas uz belešku i primaj obaveštenja o njihovom pojeftinjenju ili pojavljivanju sličnih
Prikaz stana na mapi
Parkovi u blizini
- Dunavski park11 min
- Park srpsko-azerbejdžanskog prijateljstva19 min
- Futoški park23 min

Obeležja kulture u blizini
- Spomenik Svetozaru Miletiću6 min
- Matičarsko zdanje7 min
- Galerija Matice srpske2 min

Škole/Fakulteti/Vrtići u blizini
- Osnovna škola (Privatna osnovna škola Tvrđava)7 min
- Srednja škola (Gimnazija Isidora Sekulić)4 min
- Vrtić (Dečiji vrtić Vila)4 min
- Fakultet (Univerzitet u Novom Sadu Fakultet sporta i fizičkog vaspitanja)7 min

- Bolnica (Hirurška ordinacija Aesculap)5 min
- Klinika (Poliklinika Bonadea)5 min
- Teretana (Fitness centar World Class Bazaar)5 min
- Prodavnica (Supermarket Univerexport)3 min
- Restoran (Restoran Kalem by Zak)3 min
- Kafana (Invicta Pub)3 min
- Taksi stajalište (Zeleni Eko Taxi)17 min
- Autobuska stanica (Bul. Mihajla Pupina - Pothodnik)3 min
- Banka (Eurobank Direktna)4 min
- Pošta (Pošta Novi Sad 21108)4 min
Kontakt oglašivača
Krediti OTP banke
Saznaj više
Prikazana rata odnosi se na maksimalni period otplate. Kalkulator je informativnog karaktera.
* Nakon isteka 5 godina, prelazi se na varijabilnu kamatnu stopu


