Dvoiposoban stan na prodaju, Pere Čodanovića 5, 129.000€, 71m²




























129.000 €
1.817 € / m2
- Stan u zgradi
- Grejanje na gas
- Luksuzno
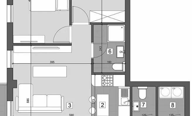
- Prostorije: kupatilo, toaleti (2), ostava, terasa
- Opremljenost: Namešteno - internet, TV, klima, ventilacija, veš mašina, kuhinjski elementi, sudo mašina, frižider, zamrzivač, mikrotalasna rerna, šporet, rerna, ležaj, plakar, kancelarijski nameštaj
- Orijentacija ka: jug
- Pogled na: ulicu
- Uknjiženo
- Kupovina direktno od vlasnika
- 1 parking mesto, parking u dvorištu zgrade
- 1 lift
- Godina izgradnje: 2023.
- Zgrada poseduje: dvorište, ventilacija, video nadzor
- Tip interneta: optički
- Kablovska
- 1 telefonska linija
- Autobuske linije: Mnogo različitih
Opis oglasa
Na prodaju je udoban i namešten stan luksuzne klase u stambenom kompleksu White Hill Residence, sa dva kupatila i posebnom prostorijom za veš.
Odlična lokacija na samo 20 kilometara od Beograda: veliki market MAXI se nalazi u samoj zgradi, LIDL je na 2 minuta hoda, škola i bolnica na 7 minuta hoda, a obala Dunava na 3 minuta hoda. Redovne autobuske linije za Beograd polaze svakih pola sata.
U kupatilima i ostavi podna obloga je keramika. U stambenim prostorijama — drveni parket.
U cenu stana je uključeno:
IKEA METOD kuhinja sa ugradnom mašinom za sudove širine 60 cm, rernom, mikrotalasnom pećnicom, aspiratorom, kuhinjskim osvetljenjem, indukcionom pločom i LG frižiderom visine 210 cm
bela tehnika: veš mašina BOSCH Serie 6, bojler Ariston, dva odlična LG klima uređaja i televizor
sav nameštaj prikazan na fotografijama (sve je iz IKEA-e)
uređen balkon sa staklenom ogradom
jedno parking mesto na otvorenom parkingu stambenog kompleksa, iza rampe, sa pristupom putem ličnog ključa
Prodaje se direktno od mene kao vlasnika.
*Sačuvaj oglas uz belešku i primaj obaveštenja o njihovom pojeftinjenju ili pojavljivanju sličnih
Prikaz stana na mapi
Obeležja kulture u blizini
- Spomenik Nikoli Tesli23 min
- Ambar sa kotobanjom porodice Lepšanović25 min
- Ambar sa kotobanjom porodice Galečić26 min

Škole/Fakulteti/Vrtići u blizini
- Osnovna škola (Osnovna škola Slobodan Savković)9 min
- Srednja škola (Ekonomsko-trgovinska škola Vuk Karadžić)16 min
- Vrtić (Dečiji vrtić Leptirić 2)8 min
- Fakultet (SMATSA školski centar)23 min

- Bolnica (Klinika za lečenje bolesti zavisnosti MedTim)8 min
- Klinika (Poliklinika Holimed)13 min
- Teretana (Fitness centar Beogym)18 min
- Prodavnica (Maxi Supermarket)manje od 1 min
- Autobuska stanica1 min
- Banka (Erste Bank)4 min
- Pošta (Pošta Stari Banovci)6 min
Kontakt oglašivača

Stambeni krediti
- Period otplate od
96 -360 meseca
- NKS 4.34%
Kombinovana kamatna stopa
- Bez troškova obrade kredita
- Odobrenje kredita do 48h
- Period otplate od
96 -360 meseca
- NKS 4.75%
EKS 5.74%
Fiksna kamatna stopa
- Bez troškova obrade kredita
stranici kreditnih kalkulatora
Keš krediti
Period otplate
13 meseci