Dvoiposoban stan na prodaju, Stara Bežanija, 236.192€, 67m²








236.192 €
3.525 € / m2
- Stan u zgradi
- Centralno grejanje
- Orijentacija ka: jug
- U procesu uknjižavanja
- Oglas oglašava agencija
- 1 lift
- Godina izgradnje: 2026.
Opis oglasa
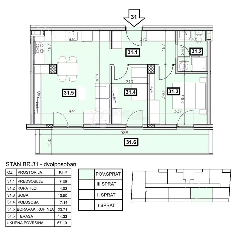
Novi Beograd, Stara Bežanija, 2.5, 67.10 m2 sa terasom, IV od IV sprata, cg sa kalorimetrima, lift, interfon, video nadzor, klima, građevinska dozvola, mogućnost kupovine parking mesta u garaži, novogradnja.
Iz hodnika se ulazi u sve prostorije (dnevni boravak + 2 spavaće sobe), a iz svih prostorija se izlazi na jedinstvenu terasu koja se prostire duž celog stana.
Stan je južno orijentisan i ima sunaca tokom većeg dela dana.
Top lokacija! Neposredna blizina Lidla, Immo centra, osnovnih škola i vrtića. Lak i brz izlaz na auto-put.
Mogućnost kupovine parking mesta u garaži po ceni od 20 000 evra + PDV.
U ponudi nekoliko stanova iste kvadrature na istom spratu.
Cena 236 192 evra sa PDV-om.
Agencijska provizija koju plaća kupac iznosi 2 % od dogovorene kupoprodajne cene.
*Sačuvaj oglas uz belešku i primaj obaveštenja o njihovom pojeftinjenju ili pojavljivanju sličnih
Prikaz stana na mapi
Parkovi u blizini
- Park Republike Argentine11 min
- Park Blok 7030 min
- Dečje igralište40 min

Obeležja kulture u blizini
- Stara osnovna škola4 min
- Hangar Starog aerodroma na Novom Beogradu12 min
- Česma14 min

Škole/Fakulteti/Vrtići u blizini
- Osnovna škola (Osnovna škola Milan Rakić)5 min
- Srednja škola (Tehnička škola Zmaj)12 min
- Vrtić (Dečiji vrtić Ljubičica)3 min
- Fakultet (Visoka tehnička škola strukovnih studija Beograd)15 min

- Bolnica (Opšta bolnica Avala)12 min
- Klinika (Poliklinika As Medicus Biorezonanca)9 min
- Teretana (Teretana Koloseum)7 min
- Prodavnica (Market Batos)5 min
- Restoran (Kafana Stara Bežanija)7 min
- Kafana (Kafana Savski biseri)15 min
- Taksi stajalište (Taxi stanica)17 min
- Autobuska stanica (Crkva Sv. Georgija)4 min
- Banka (Poštanska štedionica)6 min
- Pošta (Pošta Beograd 140)6 min
Kontakt oglašivača
Krediti OTP banke
Saznaj više
Prikazana rata odnosi se na maksimalni period otplate. Kalkulator je informativnog karaktera.
* Nakon isteka 5 godina, prelazi se na varijabilnu kamatnu stopu


