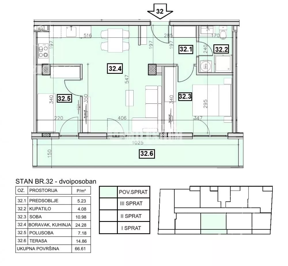
Dvoiposoban stan na prodaju, Vojvođanska, 234.467€, 66m²








234.467 €
3.553 € / m2
- Centralno grejanje
- Oglas oglašava agencija pod reg. brojem 1294
- 1 telefonska linija
Opis oglasa
Na prodaju je moderan i funkcionalan stan na izuzetnoj lokaciji u srcu Novog Beograda, u odlično povezanoj Vojvođanskoj ulici. Ovaj stan je idealan izbor za porodice, mlade parove ili kao investicija za izdavanje. Vojvođanska ulica pruža savršen balans između urbanog života i komfora. U neposrednoj blizini nalaze se škole, vrtići, marketi, parkovi, sportski sadržaji i gradski prevoz, što ovu lokaciju čini jednom od traženijih na Novom Beogradu. Odličan raspored. Svetao i prostran prostor. Kvalitetna gradnja. Blizina svih ključnih sadržaja. Cenu stana je izražena sa PDV-eom. Zgrada useljiva do DECEMBRA 2026. Posrednička provizija u skladu sa uslovima poslovanja 2%
*Sačuvaj oglas uz belešku i primaj obaveštenja o njihovom pojeftinjenju ili pojavljivanju sličnih
Prikaz stana na mapi
Parkovi u blizini
- Park Republike Argentine9 min
- Park Blok 7025 min
- Dečje igralište36 min

Obeležja kulture u blizini
- Stara osnovna škola6 min
- Česma11 min
- Spomenik Mahatma Gandiju11 min

Škole/Fakulteti/Vrtići u blizini
- Osnovna škola (Osnovna škola Jovan Sterija Popović)5 min
- Srednja škola (Srednja škola Kosta Cukić)10 min
- Vrtić (Dečiji vrtić Kamičak i drugari)4 min
- Fakultet (Visoka škola strukovnih studija za informacione tehnologije ITS)13 min

- Bolnica (Puls kardiološki centar)11 min
- Klinika (Poliklinika Naturalia)10 min
- Teretana (Arena No1 Fitness centar)6 min
- Prodavnica (Market Batos)5 min
- Restoran (Kafana Stara Bežanija)4 min
- Kafana (Kafana Savski biseri)10 min
- Taksi stajalište (Taxi stanica)13 min
- Autobuska stanica (Crkva Sv. Georgija)2 min
- Banka (Poštanska štedionica)4 min
- Pošta (Pošta Beograd 140)6 min
Kontakt oglašivača
Krediti OTP banke
Saznaj više
Prikazana rata odnosi se na maksimalni period otplate. Kalkulator je informativnog karaktera.
* Nakon isteka 5 godina, prelazi se na varijabilnu kamatnu stopu


