Četvorosoban stan na prodaju, Stara Bežanija, 425.000€, 99m²




























425.000 €
4.293 € / m2
- Stan u zgradi
- Centralno grejanje
- Luksuzno
- Prostorije: kupatila (2), toaleti (2), terasa
- Opremljenost: Namešteno - internet
- Uknjiženo
- Oglas oglašava agencija pod reg. brojem 1871
- 1 garažno mesto, garaža u sklopu zgrade
- Parking u dvorištu zgrade
- 1 lift
- Zgrada poseduje: alarm, video nadzor
- Kablovska
- 1 telefonska linija
Opis oglasa
Firma KEY REAL ESTATE je u prilici da Vam ponudi izuzetan stan na NOVOM BEOGRADU - BEŽANIJSKA KOSA!
Zgrada se nalazi u jako lepom delu Novog Beograda.
Stan je nov, luksuzno opremljen i odmah useljiv.
Stan je jako svetao, funkcionalno raspoređen i opremljen je najkvalitetnijim materijalima.
Zgrada je odlicno pozicionirana, uvucena od glavne ulice, u mirnom kraju Beograda.
U blizini zgrade se nalaze se vrtići, pijaca, škola, igralista, parkovi, marketi, restorani, teretana, drogerije, sve neophodno za savremeni život.
Odlično povezan izlazom na auto put i Beogradskom (Štark) arenom.
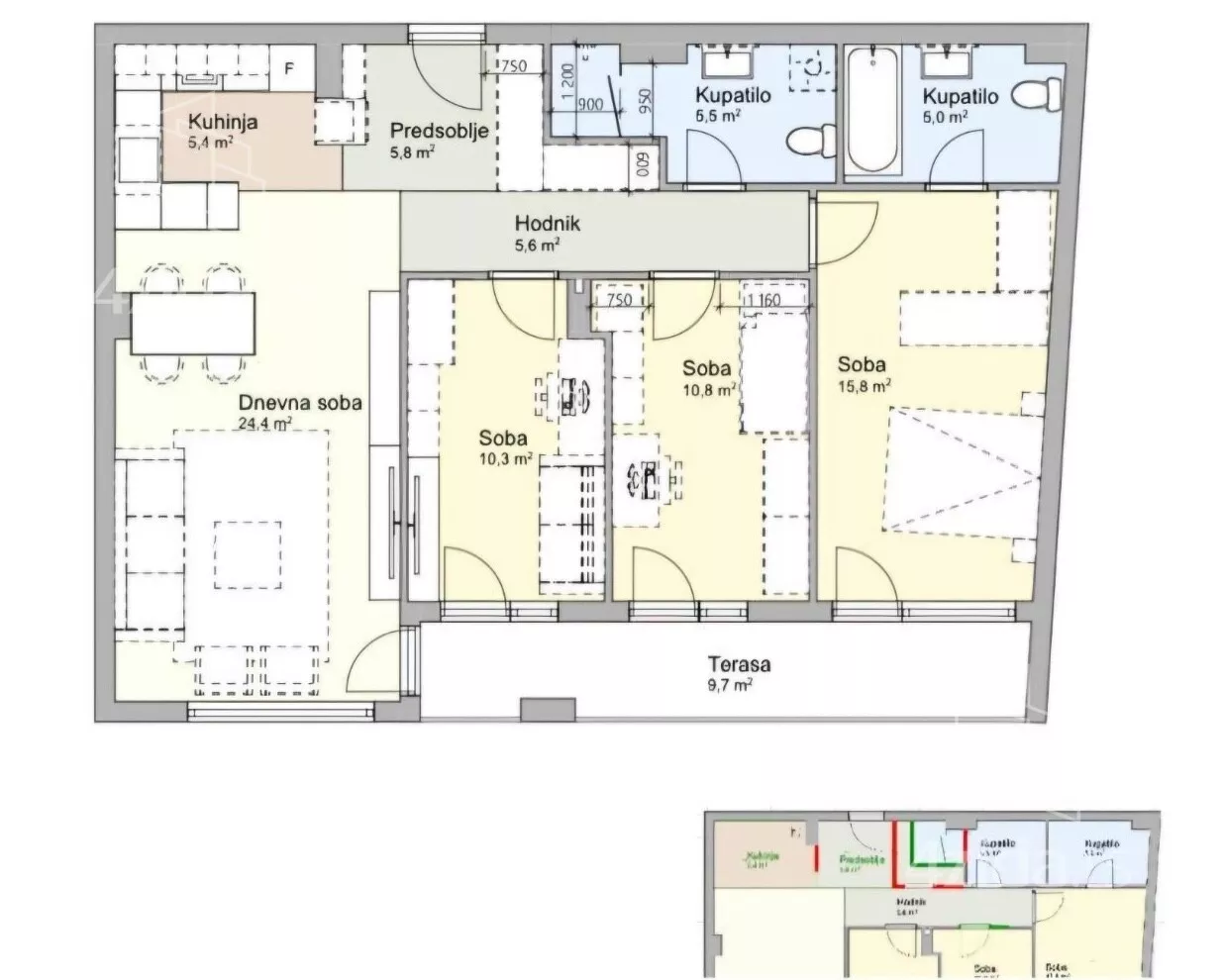
Stan je jugoistočno orjentisan, pun prirodne svetlosti tokom celog dana, poseduje 3 komforne spavaće sobe, prostanu dnevnu sobu sa kuhinjom i trpezarijom, 2 kupatila, tolet i prostranu terasu sa fantastičnim pogledom za svakodnevno uživanje.
Kuhinja je od medijapana, sa ugradnim elementima i savremenim dizajnom, italijanska keramika u kuhinji i kupatilima, grohe oprema u toaletima, moderna kupatila sa prostranim tuš kabinama, drvena troslojna alustolarija sa električnim roletnama.
Prodaje se kompletno namešten, sa pažljivo biranim materijalima i detaljima koji odišu elegancijom i toplinom.
Mogućnost kupovine dva garažna mesta.
STAN JE UKNJIŽEN, PRODAJE SE NAMEŠTEN I ODMAH JE USELJIV.
Provizija na kupovinu ovog stana je u skladu sa opštim uslovima poslovanja oglašivača i iznosi 2 % od ugovorene cene.
Br. u registru psorednika 1871
*Sačuvaj oglas uz belešku i primaj obaveštenja o njihovom pojeftinjenju ili pojavljivanju sličnih
Prikaz stana na mapi
Parkovi u blizini
- Park Republike Argentine7 min
- Park Blok 7027 min
- Dečje igralište38 min

Obeležja kulture u blizini
- Hangar Starog aerodroma na Novom Beogradu9 min
- Česma11 min
- Stara osnovna škola6 min

Škole/Fakulteti/Vrtići u blizini
- Osnovna škola (Osnovna škola Milan Rakić)6 min
- Srednja škola (Tehnička škola Zmaj)9 min
- Vrtić (Dečiji vrtić Ljubičica)6 min
- Fakultet (Univerzitet u Beogradu Fakultet dramskih umetnosti)12 min

- Bolnica (Opšta bolnica Avala)9 min
- Klinika (Poliklinika As Medicus Biorezonanca)6 min
- Teretana (Fitness centar Shark)6 min
- Prodavnica (Market Batos)3 min
- Restoran (Restoran picerija Cezar)6 min
- Kafana (Kafana Balkan Ekspres)11 min
- Taksi stajalište (Taxi stanica)16 min
- Autobuska stanica (Dušana Vukasovića)2 min
- Banka (Poštanska štedionica)6 min
- Pošta (Pošta Beograd 140)7 min
Kontakt oglašivača
Krediti OTP banke
Saznaj više
Prikazana rata odnosi se na maksimalni period otplate. Kalkulator je informativnog karaktera.
* Nakon isteka 5 godina, prelazi se na varijabilnu kamatnu stopu


