Jednosoban stan na prodaju, Srebrno Jezero, 62.210€, 46m²
Veliko Gradište, Okolne lokacije, Srebrno Jezero
Prikaži mapuŠifra oglasa: 4zida-1533-1/4Oglas ažuriran: pre 1 dan




62.210 €
1.352 € / m2
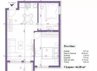
46 m²
1 soba
2/4 sprata
- Novo
- Oglas oglašava agencija pod reg. brojem 616
- Godina izgradnje: 2025.
Opis oglasa
Apartman na Srebrnom jezeru nadomak marine, površine 46.08m2 na drugom spratu. Deo je luksuznog objekata i predstavlja spoj moderne arhitekture, luksuza i funkcionalnosti. Objekat sadrži apartmane sa SPA centrom (bazen sa hidromasažnim funkcijama, finska sauna, parno kupatilo, tepidarijumi, udoban prostor za relaksaciju. .. ). Kupovinom apartmana kupac postaje suvlasnik SPA centra. Mogućnost kupovine garaže ili parking mesta. U cenu nije uključen PDV (10%). Mogućnost povraćaja PDV-a za kupce prvog stana.
Oprema:
- hidromasažna (đakuzi) kada za dve osobe dimenzija 190x160cm.
- podno grejanje u kupatilu
- elektro roletne
- Armirano betonska konstrukcija sa punim međuspratnim AB pločama uz korišćenje savremenih materijala za zvučnu izolaciju omogućuje mir i prijatan odmor.
- PVC stolarija renomiranog nemačkog proizvođača profila sa roletnama i rolo komarnicima.
- Objekat sa visokim stepenom energetske efikasnosti.
- Ekskluzivna sobna vrata od hrastovog furniranog medijapana.
- Beskontaktno otključavanje glavnog ulaza.
- Kombinovani sistem grejanja – inverter klima, norveški radijatori.
- WIFI upravljanje grejanjem.
- WIFI upravljanje bojlerom za sanitarnu vodu.
- Keramika i sanitarija I klase renomiranih proizvođača.
- Garažna i parking mesta.
- Mogućnost projektovanja i izrade enterijera po sistemu “ ključ u ruke”
*Sačuvaj oglas uz belešku i primaj obaveštenja o njihovom pojeftinjenju ili pojavljivanju sličnih
Prikaz stana na mapi
Obeležja kulture u blizini
- Spomenik Palom borcu25 min
- Tvrđava Ram32 min
- Golubački grad39 min

Škole/Fakulteti/Vrtići u blizini
- Osnovna škola (Osnovna škola Ivo Lola Ribar)19 min
- Srednja škola (Srednja škola Miloje Vasić)22 min

Hrana i piće
- Restoran (Etno kafana Jedro)14 min
Ostale ustanove
- Banka (NLB Komercijalna banka)20 min
- Pošta (Pošta Veliko Gradište)20 min
Kontakt oglašivača
▾Reklama▾
Stambeni krediti

- Period otplate od
96 -360 meseca
- NKS 4.75%
EKS 5.74%
Fiksna kamatna stopa
- Bez troškova obrade kredita
749 € / mesečno
Saznaj višePogledaj detaljnije i menjaj uslove kreditiranja na
stranici kreditnih kalkulatora
stranici kreditnih kalkulatora
Keš krediti
RSDIznos kredita
Period otplate
13 meseciOsiguranje domaćinstva online
Osiguraj svoje domaćinstvo u slučaju požara...

