Dvosoban stan na prodaju, Ledinačka, 156.000€, 53m²


























156.000 €
2.943 € / m2
- Stan u zgradi
- Grejanje na TA peć
- Renovirano
- Prostorije: ostava
- Opremljenost: Namešteno - interfon
- Uknjiženo
- Oglas oglašava agencija pod reg. brojem 167
- Godina izgradnje: 1947.
Opis oglasa
Zvezdara, Severni bulevar - Ledinačka
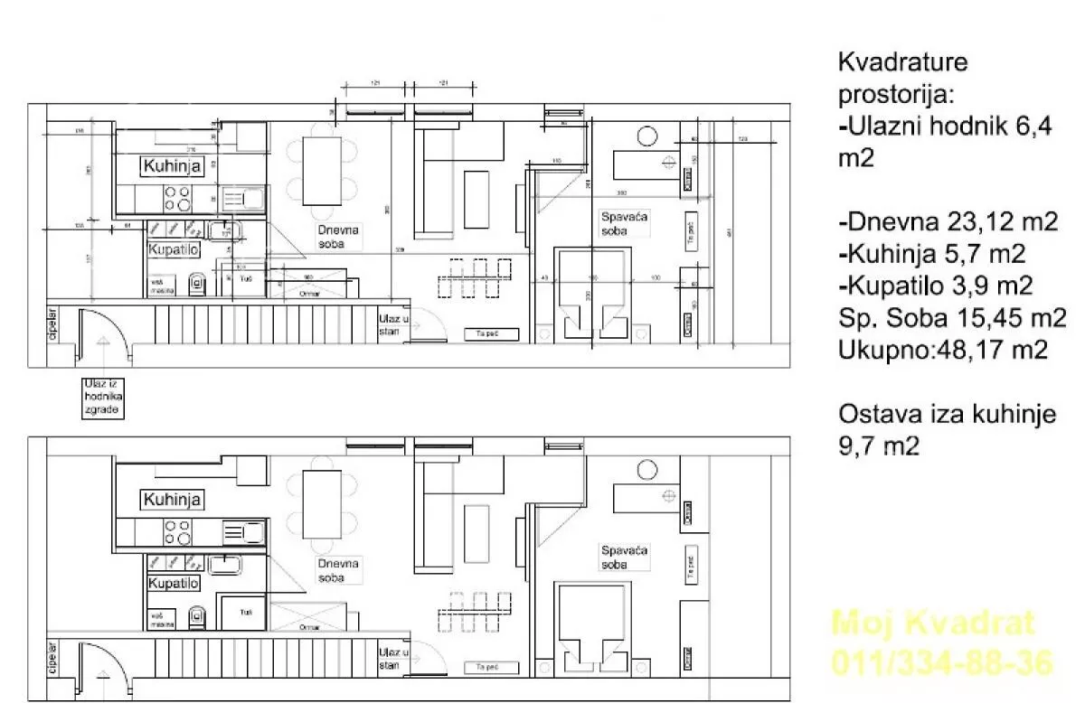
2.0, 53m2 (galerija 6m2), 1/3, TA, interfon
Na prodaju izuzetan, kompletno i kvalitetno renoviran stan na odličnoj lokaciji. Ima veoma funkcionalan raspored, kao i galeriju od 6m2 koja pruža dodatni prostor, pogodan kao dečja ili radna soba.
Prostorije: donji nivo- ulazni deo, dnevno - trpezarijski deo, spavaća soba, kuhinja, ostava, kupatilo. Na gornjem nivou je prostor za singl krevet i radni sto, sa ormarom.
Nalazi se na na 1. spratu do 3 sprata, u pitanju je mansarda, u mirnoj ulici, u zgradi starije gradnje.
Stan je kompletno opremljen modernim nameštajem i belom tehnikom (sva u garanciji), prodaje se zajedno sa fiksnim elementima nameštaja i tehnike. Prilikom izvođenja radova, pažljivo su birani materijali i rešenja kojima je funkcionalnost upotpunjena.
Grejanje je na TA peći što omogućava potpuno kontrolu potrošnje i niže mesečne troškove.
Zahvaljujući strukturi, kvalitetu opreme i lokaciji, stan je idealan kao investicija, trenutno je pod zakupom, te je moguća kupovina sa postojećim zakupcem, što novom vlasniku obezbeđuje odmah ostvariv prihod.
Bet dodatnih ulaganja - spreman za useljenje ili nastavak izdavanja.
Uknjižen na 47m2, pogodan i za kreditnu kupovinu.
Agencijska provizija 2%
Agent Ana Čortan: 064... (prikaži broj telefona) (licenca br.6284)
*Sačuvaj oglas uz belešku i primaj obaveštenja o njihovom pojeftinjenju ili pojavljivanju sličnih
Prikaz stana na mapi
Parkovi u blizini
- Spomen park oslobodiocima Beograda18 min
- Park Slavujev potok20 min
- Zvezdarska šuma23 min

Obeležja kulture u blizini
- Tripod5 min
- Novo groblje Beograd6 min
- Spomenik Oslobodiocima Beograda7 min

Škole/Fakulteti/Vrtići u blizini
- Osnovna škola (Osnovna škola 1300 kaplara)5 min
- Srednja škola (Škola za mašinstvo i umetničke zanate Tehnoart)8 min
- Vrtić (Dečiji vrtić Zora)5 min
- Fakultet (Visoka škola likovnih i primenjenih umetnosti strukovnih studija)4 min

- Bolnica (Opšta bolnica Medical centar)5 min
- Klinika (Poliklinika Panacea)10 min
- Teretana (Fitnes studio Iva)10 min
- Prodavnica (Shorty Market)1 min
- Restoran (Restoran Stara priča)1 min
- Kafana (Kafana Poslednje pijanstvo)6 min
- Taksi stajalište (4MD Taxi)5 min
- Autobuska stanica (Zvezdarskih Jelki)1 min
- Tramvajska stanica (Omladinski Stadion)13 min
- Trolejbuska stanica (Marka Oreškovića)15 min
- Banka (NLB Komercijalna banka)7 min
- Pošta (Pošta Beograd 130)6 min
Kontakt oglašivača
Krediti OTP banke
Saznaj više
Prikazana rata odnosi se na maksimalni period otplate. Kalkulator je informativnog karaktera.
* Nakon isteka 5 godina, prelazi se na varijabilnu kamatnu stopu






















