Jednoiposoban stan na prodaju, Salajka, 112.750€, 40m²
Novi Sad, Gradske lokacije, Salajka
Prikaži mapuŠifra oglasa: 4zida-3878Oglas ažuriran: pre 3 meseca


112.750 €
2.819 € / m2
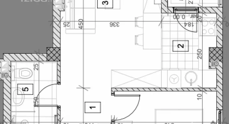
40 m²
1.5 soba
Visoko prizemlje/3 sprata
- Stan u zgradi
- Grejanje na gas
- Novo
- Prostorije: terasa
- Opremljenost: Prazno - internet, interfon
- Oglas oglašava agencija pod reg. brojem 360
- 1 lift
- Kablovska
- 1 telefonska linija
Opis oglasa
Prodaje se 1.5 stan u NOVOM SADU, SALAJKA površine 40m2. Stan je u izgradnji. Cena stana sa pdv. Izuzetna funkcionalnost. Kvalitetna novogradnja u mirnoj ulici nadomak svih potrebnih sadržaja. Odlično je povezan sa glavnim saobraćajnicama kao i ostalim delovima grada. Korišćeni vrhunski materijali i oprema. Stan zavređuje pažnju. Pozovite da pogledate.
*Sačuvaj oglas uz belešku i primaj obaveštenja o njihovom pojeftinjenju ili pojavljivanju sličnih
Prikaz stana na mapi
Parkovi u blizini
- Železnički park22 min
- Dunavski park34 min
- Park srpsko-azerbejdžanskog prijateljstva35 min

Obeležja kulture u blizini
- Spomen ploča Albertu Ajnštajnu i Milevi Marić8 min
- Spomenik Kralju Petru I Karađorđeviću11 min
- Vladičanski dvor11 min

Škole/Fakulteti/Vrtići u blizini
- Osnovna škola (Osnovna škola Vuk Karadžić)7 min
- Srednja škola (Tehnička škola Pavle Savić)6 min
- Vrtić (Dečiji vrtić Bambi)6 min
- Fakultet (Univerzitet u Novom Sadu Akademija umetnosti)10 min

Zdravlje
- Bolnica (Specijalna bolnica za bolesti zavisnosti Dr Boro Lazić)8 min
- Klinika (Poliklinika Uromedica NS)8 min
- Teretana (Fitness centar Mega Gym Novi Sad)5 min
Hrana i piće
- Prodavnica (Diskont hrane i pića Swisslion Takovo)5 min
- Restoran (Restoran Lasta)7 min
- Kafana (Kafana Naša priča)20 min
Prevoz
- Taksi stajalište (Novus taxi)14 min
- Autobuska stanica (Sentandrejski put - Benzinska pumpa)7 min
Ostale ustanove
- Banka (Poštanska štedionica)9 min
- Pošta (Pošta Novi Sad 21130)4 min
Kontakt oglašivača
▾Reklama▾
Stambeni krediti

- Period otplate od
96 -360 meseca
- NKS 4.75%
EKS 5.74%
Fiksna kamatna stopa
- Bez troškova obrade kredita
292 € / mesečno
Saznaj višePogledaj detaljnije i menjaj uslove kreditiranja na
stranici kreditnih kalkulatora
stranici kreditnih kalkulatora
Keš krediti
RSDIznos kredita
Period otplate
13 meseciOsiguranje domaćinstva online
Osiguraj svoje domaćinstvo u slučaju požara...

