Trosoban stan na prodaju, Pančevačka, 135.000€, 77m²
Ruža Šulman, Gradske lokacije, Zrenjanin
Prikaži mapuOglas ažuriran: 02.03.2026.






























135.000 €
1.753 € / m2
77 m²
3 sobe
1/8 spratova
- Stan u zgradi
- Centralno grejanje
- Novo
- Uknjiženo
- Oglas oglašava agencija pod reg. brojem 467
Opis oglasa
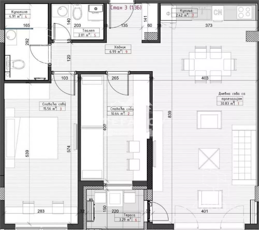
Nov lux trosoban stan od 77,42m2, na 1. spratu u zgradi sa liftom, Ruže Šulman. Veliki dnevni boravak sa kuhinjskim i trpezarijskim delom, dve spavaće sobe, kupatilo, WC, predsoblje i terasa. Po podovima su keramika i tarket, PVC stolarija, Gradsko CG sa ugrađenim kalorimetrima. U cenu je uračunata kuhinja koja je trenutno u izradi. Uknjižen 1/1.
*Sačuvaj oglas uz belešku i primaj obaveštenja o njihovom pojeftinjenju ili pojavljivanju sličnih
Prikaz stana na mapi
Parkovi u blizini
- Šećeranski park Zrenjanin24 min

Obeležja kulture u blizini
- Dvorac Lazar7 min
- Stari vodotoranj8 min
- Spomenik kralju Petru I Karađorđeviću11 min

Škole/Fakulteti/Vrtići u blizini
- Osnovna škola (Osnovna škola 2. oktobar)7 min
- Srednja škola (Ekonomsko-trgovinska škola Jovan Trajković)10 min
- Vrtić (Dečiji vrtić Leptirić)6 min
- Fakultet (Univerzitet u Novom Sadu Tehnički fakultet u Zrenjaninu)11 min

Zdravlje
- Bolnica (Specijalna bolnica za plućne bolesti Dr Vasa Savić Zrenjanin)12 min
- Klinika (Poliklinika Margareta)7 min
- Teretana (Fitnes klub Doctor Feelgood)11 min
Hrana i piće
- Prodavnica (PerSu market)19 min
- Restoran (Restoran Boemi Ninić)24 min
- Kafana (Kafana Tarapana)18 min
Prevoz
- Autobuska stanica (Okretnica)manje od 1 min
Ostale ustanove
- Banka (Poštanska štedionica)6 min
- Pošta (Pošta Zrenjanin)4 min
Kontakt oglašivača
▾Reklama▾
Krediti OTP banke
Bez troškova obrade kredita
NKS 4.50% - EKS 5.74%
Period otplate 96 -360 meseca
Saznaj više
Prikazana rata odnosi se na maksimalni period otplate. Kalkulator je informativnog karaktera.
* Nakon isteka 5 godina, prelazi se na varijabilnu kamatnu stopu
Osiguranje domaćinstva online
Osiguraj svoje domaćinstvo u slučaju požara...


