Petosoban stan na prodaju, Bulevar Kralja Aleksandra, 639.000€, 158m²












639.000 €
4.044 € / m2
- Stan u zgradi
- Centralno grejanje
- Potrebno renoviranje
- Prostorije: kuhinja
- Uknjiženo
- Oglas oglašava agencija pod reg. brojem 741
- 2 parking mesta, parking u dvorištu zgrade
- 1 lift
- Godina izgradnje: 1930.
Opis oglasa
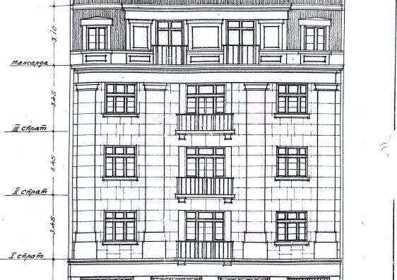
Prodajemo petosoban salonski stan od 158 m2, na I spratu (od V) zgrade koja se nalazi preko puta Tašmajdanskog parka, kod Madere, nedaleko od Skupštine Srbije i Crkve Svetog Marka. Stan je izuzetno funkcionalan i predstavlja odličnu investiciju, jer se zbog svoje izuzetne lokacije može koristiti kako za stanovanje, tako i za poslovni prostor.
Stan je za kompletno renoviranje, što ostavlja budućem vlasniku mogućnost da ga uredi po svojim afinitetima.
Zgradu je, u duhu modernizma, sa spratnom visinom od 345cm i visinom plafona od 300cm, projektovao čuveni arhitekta tog vremena Aleksandar Janković (1930.godine) i objekat se nalazi u zoni zaštićene celine "Stari Beograd ".
Zgrada ima lift i centralno grejanje.
U dvorištu zgrade su **dva parking mesta **koja pripadaju na korišćenje ovom stanu.
Stan je uknjižen 1/1, bez tereta i zabeležbi.
Trenutno se izdaje kao poslovni prostor. Cena je fiksna. Cena nekretnine je €639000. Telefon: 063... (prikaži broj telefona)
Registarski broj 741, provizija 2% u dinarskoj protivvrednosti, jednokratno.
(https://www.oznekretnine.com/index.php/property/vracar-tasmajdan-crkva-svetog-marka-madera-prodaja-salonskog-stana-sa-2-parking-mesta.html)
*Sačuvaj oglas uz belešku i primaj obaveštenja o njihovom pojeftinjenju ili pojavljivanju sličnih
Prikaz stana na mapi
Parkovi u blizini
- Park Ćirila i Metodija2 min
- Park Mike Oklopa3 min
- Park vojvode Petra Bojovića6 min

Obeležja kulture u blizini
- Spomenik Vuku Karadžiću2 min
- Spomenik Nikoli Tesli2 min
- Spomenik Svetozaru Markoviću4 min

Škole/Fakulteti/Vrtići u blizini
- Osnovna škola (Osnovna škola Starina Novak)5 min
- Srednja škola (Četrnaesta beogradska gimnazija)6 min
- Vrtić (Dečiji vrtić Čarolije)5 min
- Fakultet (Univerzitet u Beogradu Građevinski fakultet)2 min

- Bolnica (Eterna Medical System)11 min
- Klinika (Poliklinika Dr Rončević)7 min
- Teretana (Fitness centar Team fit)4 min
- Prodavnica (Soulfood market)3 min
- Restoran (Restoran Orašac)2 min
- Kafana (Pab Tramvaj)4 min
- Taksi stajalište (Taxi stanica)4 min
- Autobuska stanica (Tehnički Fakulteti)1 min
- Tramvajska stanica (Vukov spomenik)2 min
- Trolejbuska stanica (Podvožnjak)9 min
- Banka (Halkbank)2 min
- Pošta (Pošta Beograd 17)4 min
Kontakt oglašivača
Krediti OTP banke
Saznaj više
Prikazana rata odnosi se na maksimalni period otplate. Kalkulator je informativnog karaktera.
* Nakon isteka 5 godina, prelazi se na varijabilnu kamatnu stopu


