Jednosoban stan na prodaju, Raj, 70.380€, 39m²


























70.380 €
1.805 € / m2
- Stan u zgradi
- Grejanje na struju
- Novo
- Prostorije: terasa
- Opremljenost: Prazno - interfon, klima
- Oglas oglašava agencija pod reg. brojem 1927
- 1 parking mesto
- 1 lift
- Zgrada poseduje: video nadzor
Opis oglasa
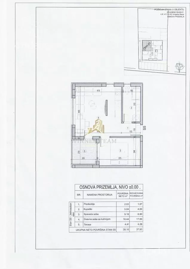
Na prodaju je jednosoban stan u Vrnjačkoj Banji, u neposrednoj blizini Akva parka Raj. Ovaj stan je izuzetno funkcionalan i sa maksimalno iskorišćenim prostorom. Sastoji se iz ulaznog hodnika, kuhinje sa trpezarijom i dnevnom sobom, spavaće sobe, kupatila i terase.
Osnovne karakteristike:
Grejanje: Etažno podno grejanje sa sopstvenim kotlom na struju
Podna zvučna izolacija: Stan je opremljen podnom zvučnom izolacijom koja doprinosi tišini i privatnosti, čineći vaš boravak još prijatnijim.
Podovi: Kvalitetna keramika, uz mogućnost postavljanja laminata debljine 10cm po želji kupca. Ovaj detalj omogućava da stan bude potpuno prilagođen vašim željama.
Izolacija: Zgrada je sa spoljnjom izolacijom debljine 10 cm stiropor, što omogućava visoku energetsku efikasnost i niže troškove grejanja.
Stolarija: Spoljna stolarija REHAU sa sedmokomornim staklima i roletnama (spolja antacite, unutra bela) pruža savršen balans između estetskog izgleda i termičke i zvučne izolacije.
Unutrašnja vrata: Moderni medijapan materijali za unutrašnja vrata daju savremen i kvalitetan izgled stanu.
Klima uređaj: Inverter klima uređaj.
Lift: Zgrada je opremljena liftom, što omogućava lak pristup svim stanovima i dodatno povećava komfor života.
Kupci prvog stana imaju pravo na povraćaj PDV-a, što predstavlja značajnu uštedu prilikom kupovine.
Mogućnost kupovine prking mesta.
*Sačuvaj oglas uz belešku i primaj obaveštenja o njihovom pojeftinjenju ili pojavljivanju sličnih
Prikaz stana na mapi
Parkovi u blizini
- Japanski vrt22 min

Obeležja kulture u blizini
- Izvor lekovite vode Jezero7 min
- Izvor lekovite vode Topla voda7 min
- Izvor lekovite vode Snežnik7 min

Škole/Fakulteti/Vrtići u blizini
- Osnovna škola (Osnovna škola Popinski borci)8 min
- Srednja škola (Ugostiteljsko-turistička škola)9 min
- Vrtić (Dečiji klub Mali princ)31 min
- Fakultet (Univerzitet u Kragujevcu Fakultet za hotelijerstvo i turizam)8 min

- Bolnica (Bolnica za interne bolesti Vrnjačka Banja)7 min
- Klinika (Poliklinika SVS Medicus)33 min
- Teretana (Teretana Colosseum)33 min
- Prodavnica (Market Tea)16 min
- Restoran (Restoran Sunce)12 min
- Kafana (Pivnica Sonata)17 min
- Taksi stajalište (Profi taxi)13 min
- Banka (OTP banka)6 min
- Pošta (Pošta Vrnjačka Banja)7 min
Kontakt oglašivača
Stambeni krediti

- Period otplate od
96 -360 meseca
- NKS 4.75%
EKS 5.74%
Fiksna kamatna stopa
- Bez troškova obrade kredita
stranici kreditnih kalkulatora
Keš krediti
Period otplate
13 meseci
