Jednosoban stan na prodaju, Prozivka, 68.970€, 42m²






68.970 €
1.642 € / m2
- Stan u zgradi
- Podno grejanje
- U izgradnji
- Prostorije: kupatilo
- Opremljenost: Prazno - internet, klima
- Pogled na: ulicu
- Nije uknjiženo
- Oglas oglašava agencija pod reg. brojem 1495
- 1 lift
- Godina izgradnje: 2026.
- Tip interneta: optički
- 1 telefonska linija
Opis oglasa
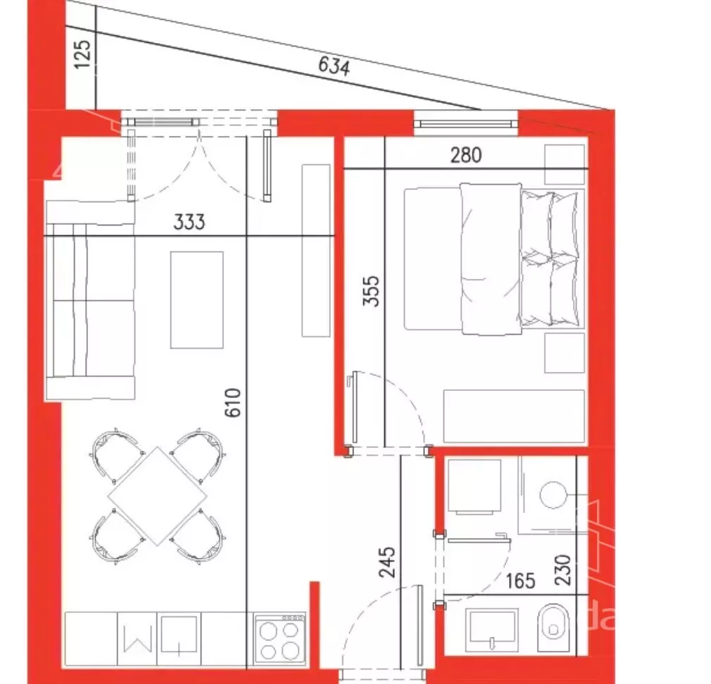
U ponudi je funkcionalan i moderan stan u izgradnji, površine 41.80 m², koji se nalazi na petom spratu kvalitetno projektovane stambene zgrade. Ova nekretnina predstavlja idealnu priliku kako za miran porodični život, tako i kao pametna investicija.
Stan je smešten na izuzetnoj lokaciji, u neposrednoj blizini svih važnih sadržaja. Na samo nekoliko minuta hoda nalaze se prodavnice, škole, vrtići, parkovi, apoteke i javni prevoz, što ovu lokaciju čini izuzetno praktičnom za svakodnevni život.
Raspored prostorija je pažljivo osmišljen kako bi se maksimalno iskoristio prostor. Stan se sastoji od svetle i prozračne dnevne sobe sa kuhinjom u otvorenom konceptu i ima jednu odvojenu spavaću sobu i jedno kupatilo.
U cenu stana je uključena ugradnja klima uređaja, kao i postavljanje savremenih automatskih roletni, što doprinosi dodatnom komforu i kvalitetu života.
Završetak izgradnje planiran je do druge polovine 2026 godine, što kupcima ostavlja dovoljno vremena za planiranje useljenja i uređenje po sopstvenom ukusu.
Ne propustite priliku da postanete vlasnik ovog modernog stana u odličnoj zgradi i na traženoj lokaciji.
Za više informacija ili dogovor oko obilaska, stojimo Vam na raspolaganju.
*Sačuvaj oglas uz belešku i primaj obaveštenja o njihovom pojeftinjenju ili pojavljivanju sličnih
Prikaz stana na mapi
Parkovi u blizini
- Park Prozivka16 min
- Park Rajhl Ferenca16 min
- Park Dudova šuma31 min

Obeležja kulture u blizini
- Spomenik Ivanu Sariću12 min
- Spomenik Aleksandru Lifki11 min
- Gradska kuća Subotica13 min

Škole/Fakulteti/Vrtići u blizini
- Osnovna škola (Osnovna škola Sonja Marinković)2 min
- Srednja škola (Hemijsko-tehnološka škola Subotica)8 min
- Vrtić (Dečiji vrtić Poletarac)6 min
- Fakultet (Visoka tehnička škola strukovnih studija Subotica)7 min

- Bolnica (Bolnica Sveti Stefan)4 min
- Klinika (Poliklinika Sente)6 min
- Teretana (EMS Studio Maxifit)10 min
- Prodavnica (PerSu market)3 min
- Restoran (Konoba Tinel)6 min
- Kafana (Pub Liverpool)9 min
- Autobuska stanica (Kerska Crkva)5 min
- Banka (3 Banka)9 min
- Pošta (Pošta Subotica 11)9 min
Kontakt oglašivača

Krediti OTP banke
Saznaj više
Prikazana rata odnosi se na maksimalni period otplate. Kalkulator je informativnog karaktera.
* Nakon isteka 5 godina, prelazi se na varijabilnu kamatnu stopu

