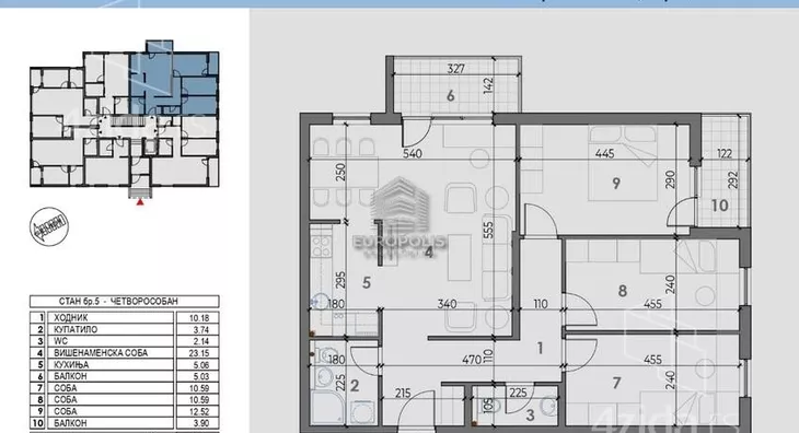
Četvorosoban stan na prodaju, Pregrevica, 244.902€, 86m²








244.902 €
2.848 € / m2
- Etažno grejanje
- Prostorije: kupatilo
- Opremljenost: Prazno - interfon
- Oglas oglašava agencija pod reg. brojem 1288
- 1 parking mesto
- Zgrada poseduje: lođa
- 1 telefonska linija
Opis oglasa
Cena je izražena bez PDV-a (10%) Na prodaju 4.0 stan u izgradnji na odličnoj lokaciji u ulici Pregrevica. Zgrada se nalazi u jednoj od najlepših ulica u Gornjem delu Zemuna, na pešačkoj udaljenosti od Gardoša, centra Zemuna, i raznih visokoškolskih ustanova. -Objekat će se sastojati od suterena, visokog prizemlja i dva sprata -Natkriveni parking prostor ispred zgrade sa numerisanim mestima -Mogućnost kupovine parking mesta po ceni od 12.000e -Korišćenje zajedničkog dela dvorišta Građen od najsavremenijih i najkvalitetnijih materijala: -Sigurnosna vrata -Projektovano podno grejanje sa termo kotlovima -Kupatilo od uvozne granitne keramike, kvalitetne sanitarije, staklena tuš kabina i ugradni lavabo sa ormarićem -Petokomorna nemačka stolarija sa ClimaGuard Solar staklom sa tankim film slojem na površini koje doprinosi toplotnoj izolaciji, povećanoj transparentnosti za Sunčevu svetlost a ujedno i redukuje nivo UV zračenja -Granitna fasada sa termo izolacijom 10cm - velika energetska efiksanost U blizini objekta nalazi se nekoliko prodavnica i radnji različitih delatnosti, autobuska stanica sa velikim brojem autobuskih linija ka centru i Nbgd do kojih se stiže prevozom za oko 20 minuta. Par minuta kolima od Pupinovog mosta i autoputa. Nekoliko privatnih i jedan državni vrtić, škola, kafić, park - sve u krugu od 500m Rok useljenja oktobar 2026. Agencijska nadoknada iznosi 2%. .
*Sačuvaj oglas uz belešku i primaj obaveštenja o njihovom pojeftinjenju ili pojavljivanju sličnih
Prikaz stana na mapi
Parkovi u blizini
- Dečje igralište21 min
- Dečje igralište21 min
- Dečje igralište23 min

Obeležja kulture u blizini
- Kula Sibinjanin Janka Gardoš9 min
- Livnica Pantelić10 min
- Kuća porodice Karamata10 min

Škole/Fakulteti/Vrtići u blizini
- Osnovna škola (Osnovna škola Sava Jovanović Sirogojno)14 min
- Srednja škola (Specijalna srednja škola Veljko Ramadanović)12 min
- Vrtić (Dečiji vrtić Dečija akademija)4 min
- Fakultet (Kriminalističko policijski univerzitet)10 min

- Bolnica (Gradski zavod za plućne bolesti i tuberkulozu)7 min
- Klinika (Poliklinika O2)7 min
- Teretana (Art Sport Gym)5 min
- Prodavnica (Šumadija Market)8 min
- Restoran (Fast Food Đorđija to go)12 min
- Kafana (Kafana Biblioteka kod Majora)18 min
- Taksi stajalište (Taxi stanica)11 min
- Autobuska stanica (Ruska)7 min
- Banka (Eurobank Direktna)8 min
- Pošta (Pošta Beograd 82)4 min
Kontakt oglašivača
Stambeni krediti
- Period otplate od
96 -360 meseca
- NKS 4.34%
Kombinovana kamatna stopa
- Bez troškova obrade kredita
- Odobrenje kredita do 48h
- Period otplate od
96 -360 meseca
- NKS 4.50%
EKS 5.74%
Fiksna kamatna stopa
- Bez troškova obrade kredita
stranici kreditnih kalkulatora
Keš krediti
Period otplate
13 meseci




















