Troiposoban stan na prodaju, Svetozara Markovića, 470.000€, 80m²




























































470.000 €
5.875 € / m2
- Stan u zgradi
- Centralno grejanje
- Luksuzno
- Prostorije: kupatilo, terasa
- Opremljenost: Prazno - internet
- Pogled na: ulicu, dvorište
- Uknjiženo
- Kupovina direktno od vlasnika
- -1 parking mesta
- 1 lift
- Godina izgradnje: 1960.
- Zgrada poseduje: dvorište, podrum, lođa, video nadzor
- Tip interneta: optički
- Kablovska
- 1 telefonska linija
- Autobuske linije: 74, 26, 48, 33, 24, eko 1
- Trolejbuske linije: 40, 41
- Tramvajske linije: 2, 5, 10, 12, 14
Opis oglasa
Retko u ponudi.
CENTAR BEOGRADA
**Vračar, kod restorana " Madera ". **
Kvalitetna zgrada sa sopstvenim dvorištem koje je obezbedjeno kapijom sa daljinskim otvaranjem,
namenjeno za parking samo za stanare. Ulaz je uredan i domaćinski održavan.
Izuzetan **LUX stan **sa fantastičnim rasporedom gde su zadovoljeni svi uslovi za život
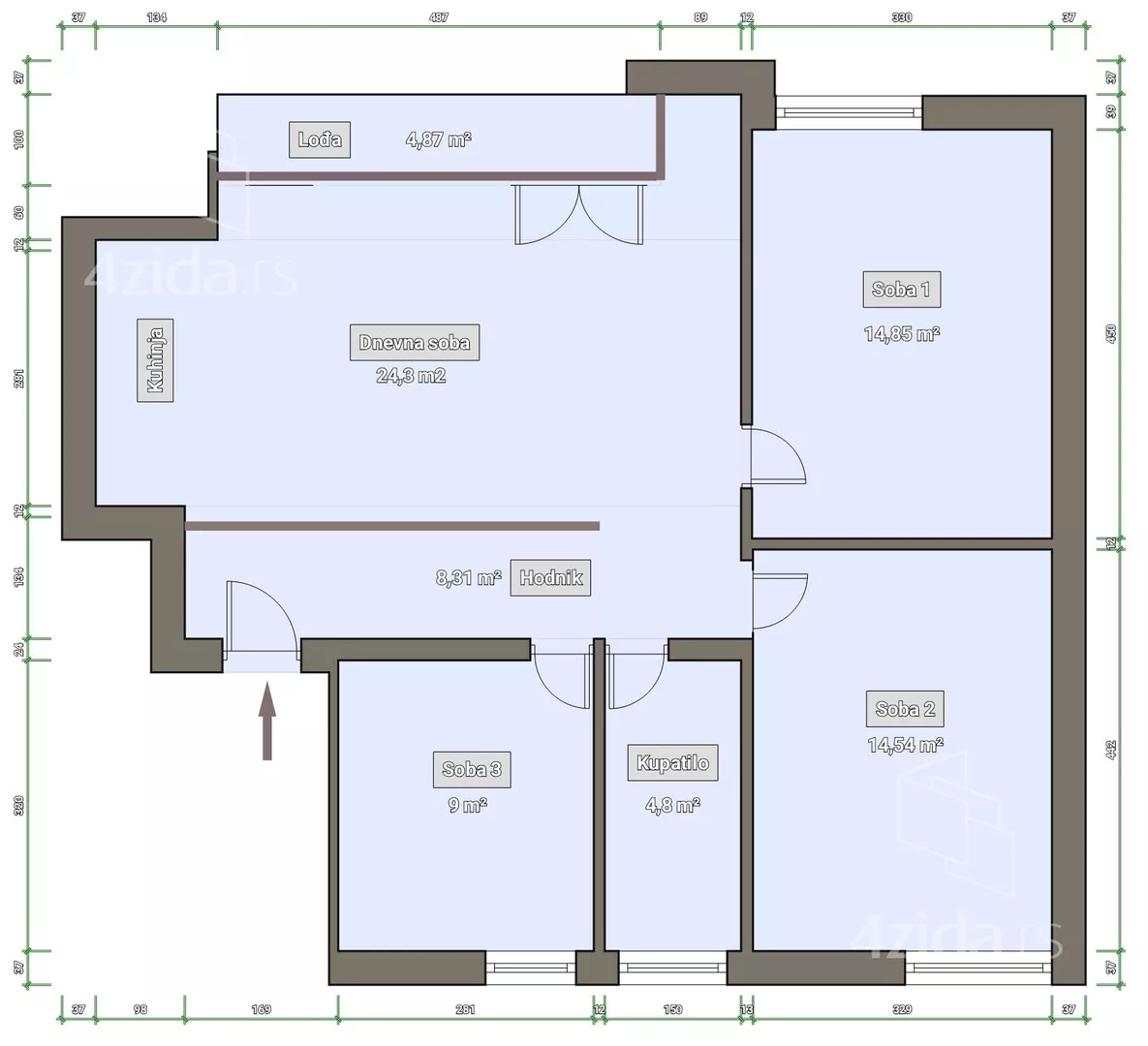
višečlane porodice. Pravi troiposoban stan koji od prostorija sadrži:
- hodnik ( 8m2 )
- kupatilo ( 4,8m2 )
- 2 spavaće sobe ( 14,5m2 i 15m2 )
- 1 manju sobu ( 9m2 )
- dnevnu sobu sa trpezarijom i kuhinjom OPEN SPACE ( 25m2 ) sa izlaskom na lodju ( 5m2 )
Stan je renoviran sa najkvalitetnijim materijalima. Komplet su zamenjene sve elektro i vodovodne instalacije. Touch prekidači i spušteni plafoni. Dvostrano orjentisan i izuzetno svetao.
Postavljen je nov hrastov parket, spoljna i unutrašnja stolarija.
Kupatilo ima odeljak za mašinu za pranje i sušenje veša.
Stan je dvostrano orjentisan i izuzetno svetao.
Sva prostorije imaju prirodnu ventilaciju.
Stan poseduje i svoju podrumsku prostoriju.
**Uknjižen na vlasnika. **
Bez tereta i zebeležbi.
Moguća je kupovina putem stambenog kredita.
Agent prodaje Mirjana Petrović
Licenca br.3552
http://Br.tel. 069... (prikaži broj telefona)
*Sačuvaj oglas uz belešku i primaj obaveštenja o njihovom pojeftinjenju ili pojavljivanju sličnih
Prikaz stana na mapi
Parkovi u blizini
- Tašmajdan6 min
- Manjež6 min
- Park Mitićeva rupa6 min

Obeležja kulture u blizini
- Beogradska nadbiskupija - Nadbiskupijski ordinarijatmanje od 1 min
- Dom braće Krstić2 min
- Treća beogradska gimnazija3 min

Škole/Fakulteti/Vrtići u blizini
- Osnovna škola (Osnovna škola Vladislav Ribnikar)3 min
- Srednja škola (Savremena gimnazija)6 min
- Vrtić (Dečiji vrtić Biser)manje od 1 min
- Fakultet (Univerzitet u Beogradu Fakultet muzičke umetnosti)5 min

- Bolnica (Neurološka bolnica Affidea)5 min
- Klinika (Poliklinika Prva poliklinika)2 min
- Teretana (Alchemist - ženski fitnes centar i centar za oporavak)3 min
- Prodavnica (Spuntino)manje od 1 min
- Restoran (Sushi bar Sushirrito)manje od 1 min
- Kafana (Crown's street pub)manje od 1 min
- Taksi stajalište (Taxi stanica)6 min
- Autobuska stanica (Tašmajdan)3 min
- Tramvajska stanica (RK „Beograđanka”)5 min
- Trolejbuska stanica (Trg Slavija)6 min
- Banka (UniCredit Bank)4 min
- Pošta (Pošta Beograd 113)4 min
Kontakt oglašivača

Stambeni krediti
- Period otplate od
96 -360 meseca
- NKS 4.50%
EKS 5.74%
Fiksna kamatna stopa
- Bez troškova obrade kredita
- Period otplate od
96 -360 meseca
- NKS 4.34%
Kombinovana kamatna stopa
- Bez troškova obrade kredita
- Odobrenje kredita do 48h
stranici kreditnih kalkulatora
Keš krediti
Period otplate
13 meseci