Jednoiposoban stan na prodaju, Podbara, 102.380€, 38m²










102.380 €
2.694 € / m2
- Centralno grejanje
- Novo
- Prostorije: kupatilo
- Opremljenost: Prazno - interfon
- Oglas oglašava agencija pod reg. brojem 1960
- 1 garažno mesto
- 3 parking mesta
- 1 lift
- Godina izgradnje: 2026.
Opis oglasa
Novi stambeni objekat na Podbari – prodaja stanova u izgradnji
Predstavljamo vam novu stambenu zgradu u izgradnji, smeštenu u atraktivnom delu Podbare – mirnoj, urbanoj zoni Novog Sada sa odličnom infrastrukturom i blizinom centra grada.
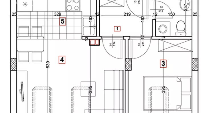
Predmet prodaje je jednoiposoban stan posebne oznake 23, površine 37,51m2, na petom spratu (potkrovlju).
Zgrada se sastoji isključivo od stambenih jedinica (ukupno 26 stanova), raspoređenih na prizemlje, četiri sprata i potkrovlje uz suterensku garažu. U ponudi su stanovi sa jednom ili dve spavaće sobe, različitih kvadratura i rasporeda, idealni kako za porodično stanovanje, tako i za investiciju u rentiranje.
- Rok završetka izgradnje: 1. april 2026.
- U objektu je predviđeno grejanje preko gradske toplane, sa kalorimetrima po potrošnji
- Ugradni vodokotlić i sanitarije marke Geberit
- Italijanska keramika i kvalitetni podni materijali (parket)
- Zidovi debljine 40 cm, odlična termo i zvučna izolacija
- Višekomorna Rehau PVC stolarija
- Lift
- Biciklana
- Obezbeđena optička infrastruktura svih operatera
- Dvorišna i parking mesta dostupna za doplatu (10.000€)
- Garažna mesta u suterenu (20.000€)
- Kompletna priprema za ugradnju klima uređaja – montirani nosači i izbušeni otvori za instalaciju
Mogućnost kupovine putem stambenog kredita, kao i pravo na povrat PDV-a u iznosu od 10% za kupce prvog stana.
Zgrada je projektovana da odgovori potrebama savremenog gradskog života — bilo da kupujete prvi dom, menjate stan ili tražite sigurnu investiciju.
U prikazanu kupoprodajnu cenu uračunat je i PDV kao i agencijska provizija. Bez poreza na prenos apsolutnih prava (kupovina od investitora).
*Sačuvaj oglas uz belešku i primaj obaveštenja o njihovom pojeftinjenju ili pojavljivanju sličnih
Prikaz stana na mapi
Parkovi u blizini
- Park srpsko-azerbejdžanskog prijateljstva11 min
- Dunavski park14 min
- Železnički park27 min

Obeležja kulture u blizini
- Spomenik Kralju Petru I Karađorđeviću9 min
- Spomenik Jovanu Jovanoviću Zmaju8 min
- Vladičanski dvor9 min

Škole/Fakulteti/Vrtići u blizini
- Osnovna škola (Osnovna škola Ivan Gundulić)6 min
- Srednja škola (Gimnazija Živorad Janković)6 min
- Vrtić (Dečiji vrtić Sigridrug)3 min
- Fakultet (Univerzitet u Novom Sadu Akademija umetnosti)8 min

- Bolnica (Bolnica za bolesti zavisnosti Vita)5 min
- Klinika (Poliklinika Novakov)4 min
- Teretana (Joga za kičmu)6 min
- Prodavnica (Supermarket Univerexport)3 min
- Restoran (Restoran Kafanica)4 min
- Kafana (Dukat Fensi Kafana)4 min
- Taksi stajalište (MB Taxi)17 min
- Autobuska stanica (Marka Miljanova - Kosovska)4 min
- Banka (OTP banka)6 min
- Pošta (Pošta Novi Sad 21104)7 min
Kontakt oglašivača
Krediti OTP banke
Saznaj više
Prikazana rata odnosi se na maksimalni period otplate. Kalkulator je informativnog karaktera.
* Nakon isteka 5 godina, prelazi se na varijabilnu kamatnu stopu


