Dvosoban stan na prodaju, Podbara, 134.380€, 50m²










134.380 €
2.688 € / m2
- Centralno grejanje
- Novo
- Prostorije: kupatilo, terasa
- Opremljenost: Prazno - interfon
- Oglas oglašava agencija pod reg. brojem 1960
- 1 garažno mesto
- 3 parking mesta
- 1 lift
- Godina izgradnje: 2026.
Opis oglasa
Novi stambeni objekat na Podbari – prodaja stanova u izgradnji
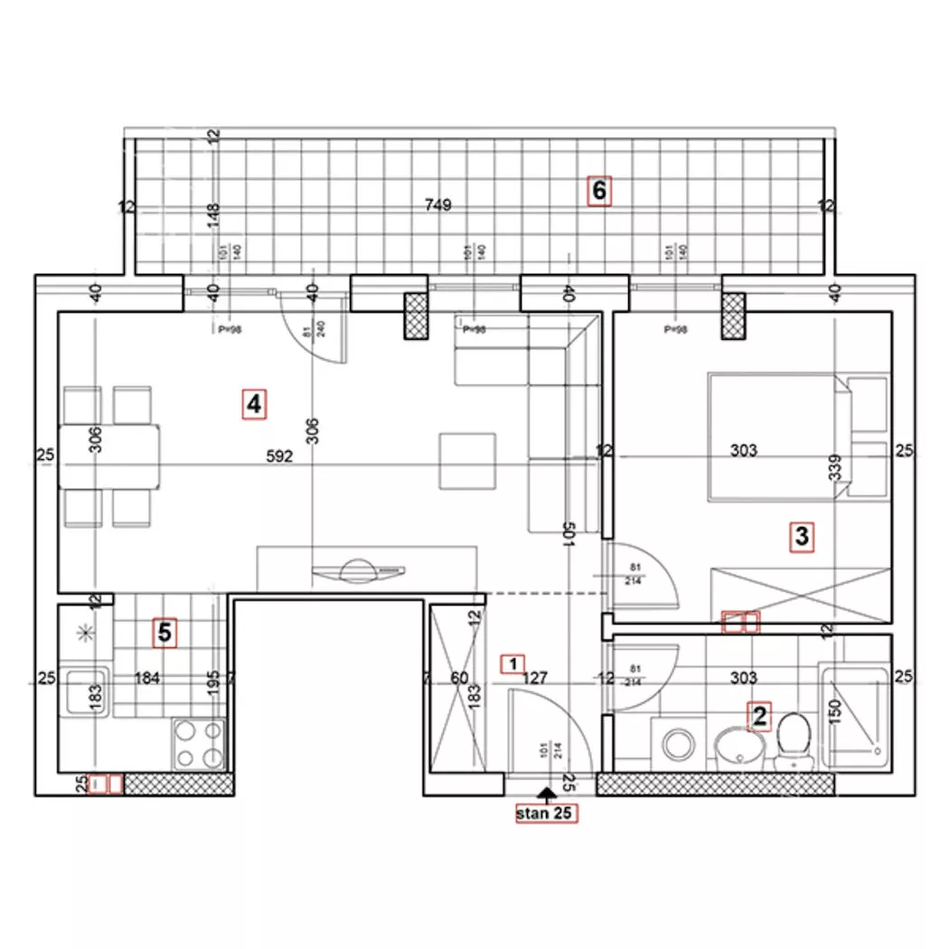
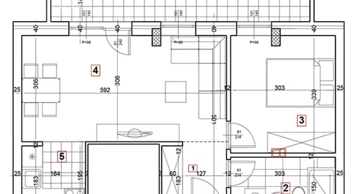
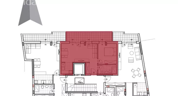
Stan 25 - etažirana površina 50.18m2
Predstavljamo vam novu stambenu zgradu u izgradnji, smeštenu u atraktivnom delu Podbare – mirnoj, urbanoj zoni Novog Sada sa odličnom infrastrukturom i blizinom centra grada.
Zgrada se sastoji isključivo od stambenih jedinica (ukupno 26 stanova), raspoređenih na prizemlje, četiri sprata i potkrovlje uz suterensku garažu. U ponudi su stanovi sa jednom ili dve spavaće sobe, različitih kvadratura i rasporeda, idealni kako za porodično stanovanje, tako i za investiciju u rentiranje.
- Rok završetka izgradnje: 1. april 2026.
- Centralno gradsko grejanje sa kalorimetrom, plaćanje po utrošku preko Informatike
- Ugradni vodokotlić i sanitarije marke Geberit
- Italijanska keramika i kvalitetni podni materijali (parket)
- Zidovi debljine 40 cm, odlična termo i zvučna izolacija
- Višekomorna Rehau PVC stolarija
- Lift
- Biciklana
- Obezbeđena optička infrastruktura svih operatera
- Dvorišno parking mesto uz doplatu (10.000€)
- Garažna mesta u suterenu (20.000€)
- Kompletna priprema za ugradnju klima uređaja – montirani nosači i izbušeni otvori za instalaciju
Mogućnost kupovine putem stambenog kredita, kao i pravo na povrat PDV-a u iznosu od 10% za kupce prvog stana.
Zgrada je projektovana da odgovori potrebama savremenog gradskog života — bilo da kupujete prvi dom, menjate stan ili tražite sigurnu investiciju.
U prikazanu kupoprodajnu cenu uračunat je i PDV kao i agencijska provizija. Bez poreza na prenos apsolutnih prava (kupovina od investitora).
*Sačuvaj oglas uz belešku i primaj obaveštenja o njihovom pojeftinjenju ili pojavljivanju sličnih
Prikaz stana na mapi
Parkovi u blizini
- Park srpsko-azerbejdžanskog prijateljstva11 min
- Dunavski park14 min
- Železnički park27 min

Obeležja kulture u blizini
- Spomen ploča Albertu Ajnštajnu i Milevi Marić4 min
- Spomenik Kralju Petru I Karađorđeviću4 min
- Vladičanski dvor5 min

Škole/Fakulteti/Vrtići u blizini
- Osnovna škola (Osnovna škola Ivan Gundulić)6 min
- Srednja škola (Gimnazija Živorad Janković)6 min
- Vrtić (Dečiji vrtić Sigridrug)3 min
- Fakultet (Univerzitet u Novom Sadu Akademija umetnosti)6 min

- Bolnica (Bolnica za bolesti zavisnosti Vita)5 min
- Klinika (Poliklinika Novakov)4 min
- Teretana (Teretana Podbara Gym)5 min
- Prodavnica (Supermarket Univerexport)3 min
- Restoran (Restoran Kafanica)4 min
- Kafana (Dukat Fensi Kafana)4 min
- Taksi stajalište (MB Taxi)17 min
- Autobuska stanica (Marka Miljanova - Kosovska)4 min
- Banka (OTP banka)6 min
- Pošta (Pošta Novi Sad 21104)7 min
Kontakt oglašivača
Krediti OTP banke
Saznaj više
Prikazana rata odnosi se na maksimalni period otplate. Kalkulator je informativnog karaktera.
* Nakon isteka 5 godina, prelazi se na varijabilnu kamatnu stopu


