Dvoiposoban stan na prodaju, Podbara, 170.000€, 52m²
































170.000 €
3.269 € / m2
- Centralno grejanje
- Prostorije: kupatilo, terasa
- Opremljenost: Namešteno - internet, interfon, klima
- Uknjiženo
- Oglas oglašava agencija pod reg. brojem 1941
- 1 lift
- Kablovska
- 1 telefonska linija
Opis oglasa
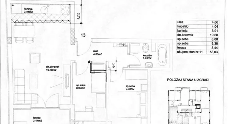
Prodaje se namešten dvoiposoban stan na odličnoj lokaciji. Stan ima dnevnu sobu, trpezariju, kuhinju, dve spavaće sobe, hodnik, kupatilo i terasu. Zgrada je sagrađena pre par godina, sav nameštaj je kupljen nov i rađen je po meri.Raspored stana je odličan i veoma funkcionalan - odgovara i porodicama, ali i ljudima koji rade od kuće. Stan je ulicno orijentisan, ali je kraj jako miran, tako da nema velikog saobracaja i buke. Prodaje se kompletno namešten. Zgrada poseduje kalorimetre, tako da je moguća potpuna kontrola temperature (a samim tim i troškova).U blizini zgrade se nalaze dve osnovne škole, vrtići, marketi, teretane, kafići, i sve drugo što vam može biti potrebno, a centar je udaljen samo 3 minuta vožnje ili 10 minuta hoda. Lokacija je odlično povezana sa svim delovima grada.
*Sačuvaj oglas uz belešku i primaj obaveštenja o njihovom pojeftinjenju ili pojavljivanju sličnih
Prikaz stana na mapi
Parkovi u blizini
- Železnički park22 min
- Dunavski park34 min
- Park srpsko-azerbejdžanskog prijateljstva35 min

Obeležja kulture u blizini
- Spomen ploča Albertu Ajnštajnu i Milevi Marić8 min
- Spomenik Kralju Petru I Karađorđeviću11 min
- Vladičanski dvor11 min

Škole/Fakulteti/Vrtići u blizini
- Osnovna škola (Osnovna škola Vuk Karadžić)7 min
- Srednja škola (Tehnička škola Pavle Savić)6 min
- Vrtić (Dečiji vrtić Bambi)6 min
- Fakultet (Univerzitet u Novom Sadu Akademija umetnosti)10 min

- Bolnica (Specijalna bolnica za bolesti zavisnosti Dr Boro Lazić)8 min
- Klinika (Poliklinika Uromedica NS)8 min
- Teretana (Fitness centar Mega Gym Novi Sad)5 min
- Prodavnica (Diskont hrane i pića Swisslion Takovo)5 min
- Restoran (Restoran Lasta)7 min
- Kafana (Kafana Naša priča)20 min
- Taksi stajalište (Novus taxi)14 min
- Autobuska stanica (Sentandrejski put - Benzinska pumpa)7 min
- Banka (Poštanska štedionica)9 min
- Pošta (Pošta Novi Sad 21130)4 min
Kontakt oglašivača
Krediti OTP banke
Saznaj više
Prikazana rata odnosi se na maksimalni period otplate. Kalkulator je informativnog karaktera.
* Nakon isteka 5 godina, prelazi se na varijabilnu kamatnu stopu


