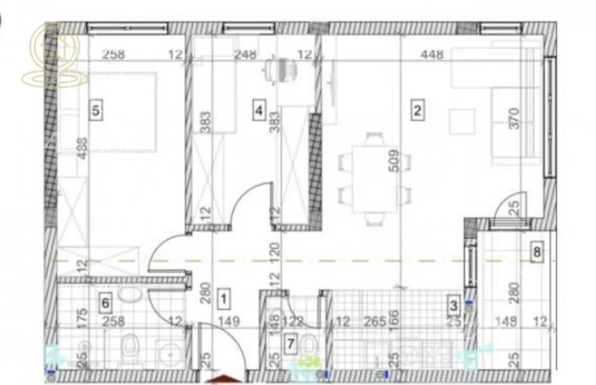
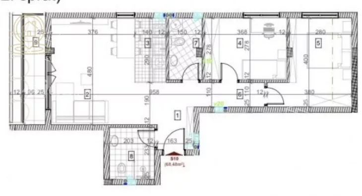
Trosoban stan na prodaju, Petrovaradin, 183.000€, 83m²








183.000 €
2.205 € / m2
- Dupleks
- Grejanje na gas
- Novo
- Prostorije: terasa
- Opremljenost: Prazno - internet, interfon, klima
- Oglas oglašava agencija pod reg. brojem 1596
- 1 garažno mesto
- 1 parking mesto
- 1 lift
- Zgrada poseduje: video nadzor
- Kablovska
- 1 telefonska linija
Opis oglasa
duplex
Prodaja stanova u Novom Sadu – moderni jednosobni, dvosobni, trosobni i četvorosobni stanovi u novogradnji na odličnoj lokaciji, sa planiranim završetkom radova 30. aprila 2027. godine.
Objekat je višeporodični stambeni kompleks (Po+P+3+Pk) sa ukupno 86 stambenih jedinica i 86 garažnih mesta.
Tehničke karakteristike objekta
Grejanje na gas – veoma ekonomičan i pouzdan sistem, sa mogućnošću individualnog podešavanja za svaki stan
Šestokomorna PVC stolarija nemačkog profila – firma DIKIĆ
Sigurnosna vrata čelične konstrukcije, prirodne boje drveta – PORTA NS
Staklene ograde na balkonima
Tarkett parket troslojni 14 mm, sa kraljevskom lajsnom visine 6 cm
Geberit skriveni vodokotlić, Gorenje bojler 80 L
Demit fasada sa 10 cm termoizolacije
Betonska krovna ploča 20 cm + izolacija od kamene vune 20 cm
Ova novogradnja u Novom Sadu nudi savremeni kvalitet gradnje, energetsku efikasnost i moderan dizajn. Svaki stan ima zasebno grejanje na gas, odličnu zvučnu i toplotnu izolaciju, kao i moderan enterijer.
Odlična lokacija – blizina škola, vrtića, prodavnica i javnog prevoza čini ove stanove idealnim za porodični život ili kao investiciju za izdavanje.
Cena bez PDV-a
proviziju ne placa kupac
vas posrednik u prodaji i izdavanju nekretnina agencija Kompas
*Sačuvaj oglas uz belešku i primaj obaveštenja o njihovom pojeftinjenju ili pojavljivanju sličnih
Prikaz stana na mapi
Parkovi u blizini
- Molinarijev park19 min
- Dunavski park37 min
- Park srpsko-azerbejdžanskog prijateljstva41 min

Obeležja kulture u blizini
- Komunikaciona kapija8 min
- Kamenička kapija8 min
- Molinarijeva kapija9 min

Škole/Fakulteti/Vrtići u blizini
- Osnovna škola (Osnovna škola Jovan Dučić)6 min
- Srednja škola (Francusko-srpska gimnazija Petar I od Srbije)10 min
- Vrtić (Dečiji vrtić Cvrčak)3 min
- Fakultet (Fakultet za sport i turizam)13 min

- Bolnica (Specijalna hirurška bolnica Sveti Luka)6 min
- Klinika (Poliklinika NS Lab)7 min
- Teretana (Trening centar Tajs)11 min
- Prodavnica (Mikromarket)4 min
- Restoran (Restoran Razvod braka)10 min
- Kafana (Kafana Sat)29 min
- Taksi stajalište (Delta Taxi)11 min
- Autobuska stanica (Preradovićeva - Marina Držića)4 min
- Banka (Erste Bank)6 min
- Pošta (Pošta Petrovaradin 21132)6 min
Kontakt oglašivača
Krediti OTP banke
Saznaj više
Prikazana rata odnosi se na maksimalni period otplate. Kalkulator je informativnog karaktera.
* Nakon isteka 5 godina, prelazi se na varijabilnu kamatnu stopu


