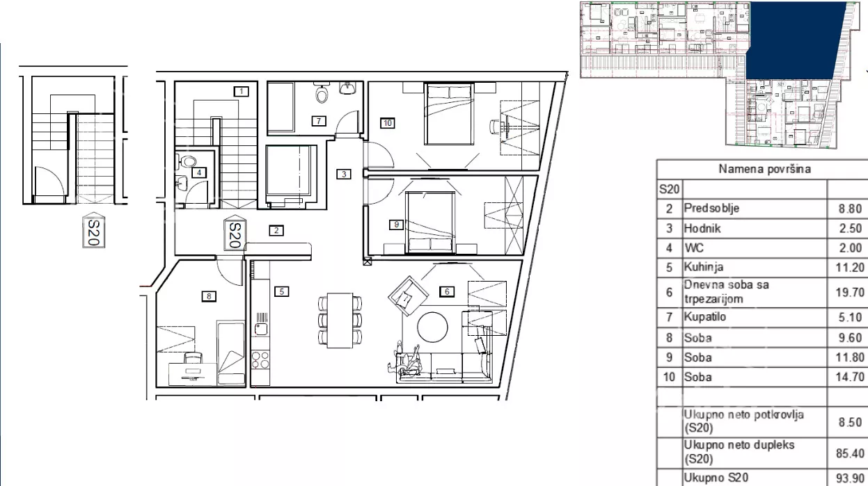
Troiposoban stan na prodaju, Petrovaradin, 181.800€, 93m²


181.800 €
1.955 € / m2
- Stan u zgradi
- U izgradnji
- Oglas oglašava agencija pod reg. brojem 405
- 1 lift
- Godina izgradnje: 2025.
Opis oglasa
NOVI SAD.PETROVARADIN.TROIPOSOBAN STAN.SA PDV-OM (Svet nekretnine, Novi Sad, Reg. br. 405)
*Sačuvaj oglas uz belešku i primaj obaveštenja o njihovom pojeftinjenju ili pojavljivanju sličnih
Prikaz stana na mapi
Parkovi u blizini
- Limanski park17 min
- Kamenički park37 min
- Futoški park38 min

Obeležja kulture u blizini
- Kuća Jovana Jovanovića Zmaja5 min
- Kuća iz 1797. godine5 min
- Dvorac Marcibanji-Karačonji6 min

Škole/Fakulteti/Vrtići u blizini
- Osnovna škola (Privatna osnovna škola Svitac)5 min
- Srednja škola (Francusko-srpska gimnazija Petar I od Srbije)38 min
- Vrtić (Dečiji vrtić Plavi čuperak)4 min
- Fakultet (Educons Univerzitet)38 min

- Bolnica (Kovid bolnica Novi Sad)4 min
- Klinika (Poliklinika HealthMedic)11 min
- Teretana (Joga Yogaja Studio)4 min
- Prodavnica (Supermarket Univerexport)20 min
- Restoran (Restoran Mali Niš)19 min
- Kafana (Točionica Pab)19 min
- Taksi stajalište (Taxi Maxi Novosađani)23 min
- Autobuska stanica (Štrand - Okretnica)22 min
- Banka (Poštanska štedionica)5 min
- Pošta (Pošta Sremska Kamenica 21202)41 min
Kontakt oglašivača
Stambeni krediti

- Period otplate od
 96 -360 meseca
- NKS 4.75%
 EKS 5.74%
 Fiksna kamatna stopa
- Bez troškova obrade kredita
stranici kreditnih kalkulatora
Keš krediti
Period otplate
13 meseci






















