Jednoiposoban stan na prodaju, Petrovaradin, 90.500€, 49m²




















90.500 €
1.847 € / m2
- Stan u zgradi
- U izgradnji
- Prostorije: terasa
- Uknjiženo
- Oglas oglašava agencija pod reg. brojem 1692
Opis oglasa
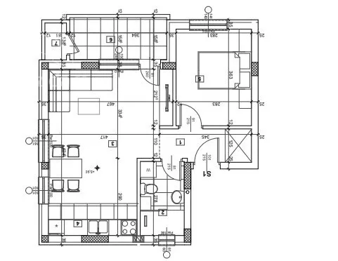
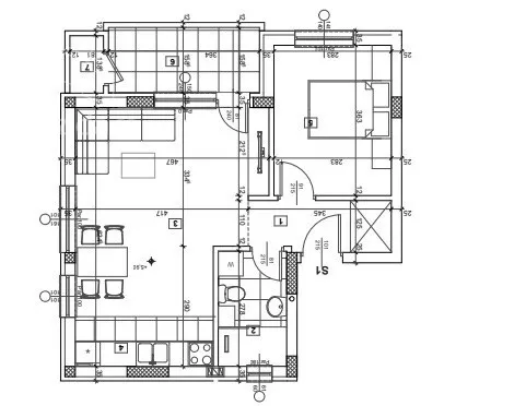
Petrovaradin, jednoiposoban stan površine 49m2 u izgradnji, u mirnom okruženju ali veoma dobro povezan sa centrom Novog Sada. Zgrada ima mali broj stanova. Stan se nalazi na prvom spratu zgrade. Poseduje dnevni boravak, kuhinju, spavaću sobu, hodnik i terasu sa ostavom. Zgrada je kvalitetno građena i biće opremjena kvalitetnom opremom i modernom fasadom. Grejanje je podno na gas, svaki stan ima svoj kotao. Planiran završetak radova je Jun 2026. Zgrada je trenutno u završnoj fazi gradnje, do sada je urađeno oko 80%-90% radova. Trenutno su u toku radovi na postavljanju podova i završavanju fasade. Cena se odnosi na kompletno završen stan. Stan će imati parking mesto ispred zgrade. Investitor po završetku gradnje i po dobijanju upotrebne dozvole uknižava sve stanove. Plaćanje moguće samo u kešu. Za više informacija pozovite 060... (prikaži broj telefona) .
*Sačuvaj oglas uz belešku i primaj obaveštenja o njihovom pojeftinjenju ili pojavljivanju sličnih
Prikaz stana na mapi
Parkovi u blizini
- Limanski park17 min
- Kamenički park37 min
- Futoški park38 min

Obeležja kulture u blizini
- Kuća Jovana Jovanovića Zmaja5 min
- Kuća iz 1797. godine5 min
- Dvorac Marcibanji-Karačonji7 min

Škole/Fakulteti/Vrtići u blizini
- Osnovna škola (Privatna osnovna škola Svitac)5 min
- Srednja škola (Francusko-srpska gimnazija Petar I od Srbije)38 min
- Vrtić (Dečiji vrtić Plavi čuperak)4 min
- Fakultet (Educons Univerzitet)38 min

- Klinika (NK Poliklinika)10 min
- Teretana (Joga Yogaja Studio)5 min
- Prodavnica (Supermarket Univerexport)20 min
- Restoran (Restoran Mali Niš)19 min
- Kafana (Točionica Pab)19 min
- Taksi stajalište (Taxi Maxi Novosađani)23 min
- Autobuska stanica (Štrand - Okretnica)22 min
- Banka (Poštanska štedionica)5 min
- Pošta (Pošta Sremska Kamenica 21202)41 min
Kontakt oglašivača
Krediti OTP banke
Saznaj više
Prikazana rata odnosi se na maksimalni period otplate. Kalkulator je informativnog karaktera.
* Nakon isteka 5 godina, prelazi se na varijabilnu kamatnu stopu


