Dvosoban stan na prodaju, Petrovaradin, 111.948€, 46m²






111.948 €
2.434 € / m2
- Stan u zgradi
- Grejanje na gas
- Novo
- Prostorije: terasa
- Opremljenost: Prazno - internet, interfon, klima
- Oglas oglašava agencija pod reg. brojem 1596
- 1 garažno mesto
- 1 parking mesto
- 1 lift
- Zgrada poseduje: video nadzor
- Kablovska
- 1 telefonska linija
Opis oglasa
Prodaja stanova u Novom Sadu – moderni jednosobni, dvosobni, trosobni i četvorosobni stanovi u novogradnji na odličnoj lokaciji, sa planiranim završetkom radova 30. aprila 2027. godine.
Objekat je višeporodični stambeni kompleks (Po+P+3+Pk) sa ukupno 86 stambenih jedinica i 86 garažnih mesta.
Stanovi površine od 29 m² do 101 m², idealni za porodično stanovanje ili investiciju.
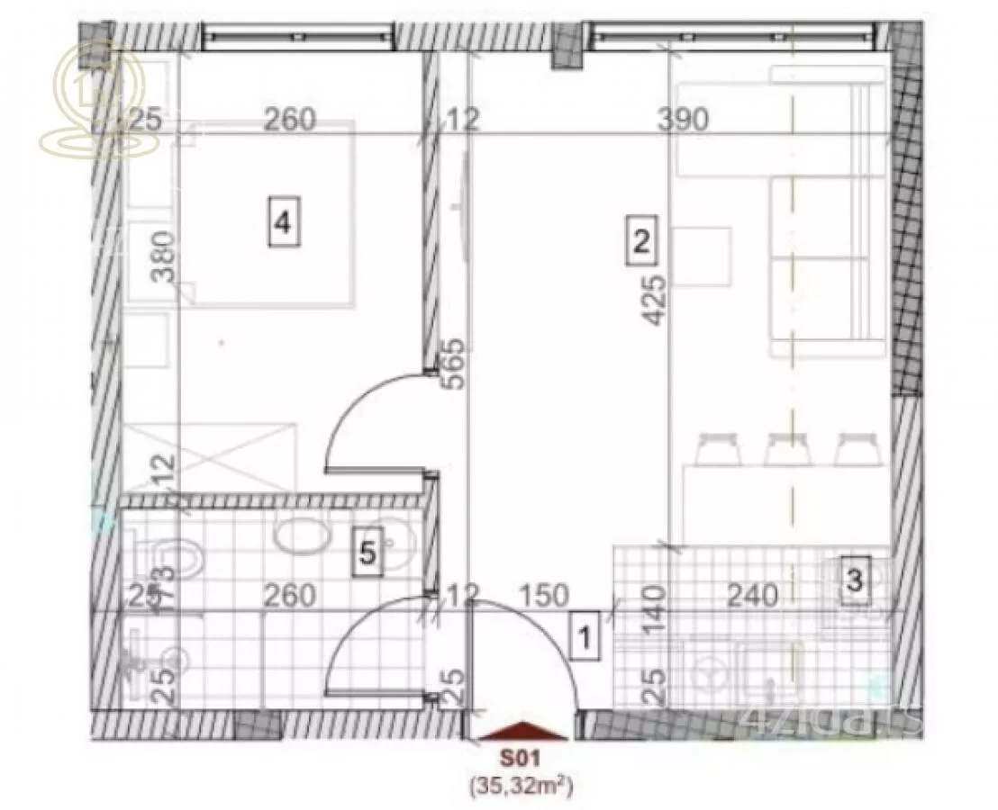
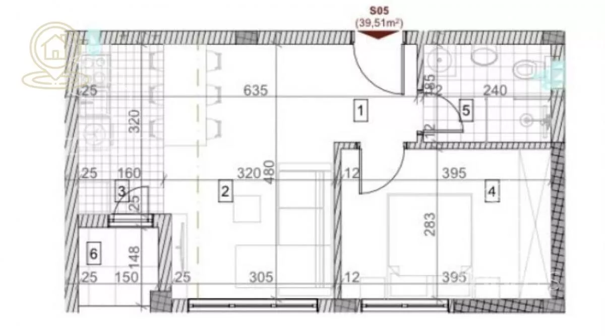
Skice stana mozete dobiti nakon potpisivanja ugovora jer ove iz oglasa ne odgovaraju ovom stanu,
kod nas kupac ne placa proviziju a cene su izrazene bez pdv
Tehničke karakteristike objekta
Grejanje na gas – veoma ekonomičan i pouzdan sistem, sa mogućnošću individualnog podešavanja za svaki stan
Šestokomorna PVC stolarija nemačkog profila – firma DIKIĆ
Sigurnosna vrata čelične konstrukcije, prirodne boje drveta – PORTA NS
Staklene ograde na balkonima
Tarkett parket troslojni 14 mm, sa kraljevskom lajsnom visine 6 cm
Geberit skriveni vodokotlić, Gorenje bojler 80 L
Demit fasada sa 10 cm termoizolacije
Betonska krovna ploča 20 cm + izolacija od kamene vune 20 cm
Ova novogradnja u Novom Sadu nudi savremeni kvalitet gradnje, energetsku efikasnost i moderan dizajn. Svaki stan ima zasebno grejanje na gas, odličnu zvučnu i toplotnu izolaciju, kao i moderan enterijer.
Odlična lokacija – blizina škola, vrtića, prodavnica i javnog prevoza čini ove stanove idealnim za porodični život ili kao investiciju za izdavanje.
Cena sa PDV-om
Kupac ne placa proviziju
*Sačuvaj oglas uz belešku i primaj obaveštenja o njihovom pojeftinjenju ili pojavljivanju sličnih
Prikaz stana na mapi
Kontakt oglašivača
Krediti OTP banke
Saznaj više
Prikazana rata odnosi se na maksimalni period otplate. Kalkulator je informativnog karaktera.
* Nakon isteka 5 godina, prelazi se na varijabilnu kamatnu stopu


