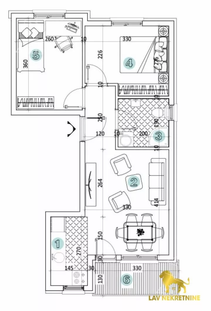
Dvoiposoban stan na prodaju, NOVA 6, 109.000€, 46m²






































109.000 €
2.370 € / m2
- Stan u zgradi
- Grejanje na gas
- Uobičajeno stanje
- Prostorije: terasa
- Uknjiženo
- Oglas oglašava agencija pod reg. brojem 1187
- 1 lift
- Godina izgradnje: 2022.
Opis oglasa
Prodaje se moderan i potpuno opremljen stan u Petrovaradinu, u novogradnji. Stan se nalazi na prvom spratu, površine 46 m², izuzetno funkcionalnog rasporeda. Veoma mali mesečni troškovi čine ga idealnim kako za život, tako i kao investiciju.Stan je useljiv bez ikakvih dodatnih ulaganja, svetao i prijatan, u mirnom okruženju.Cena: 109.000 € agencijska provizija u cenu.Odlična prilika za kupovinu kvalitetne nekretnine u traženom delu grada. Stan je pod zakupom, po želji može ostati zakupac. Kontakt: 063... (prikaži broj telefona) Lav 2020 nekretnine Reg. broj posrednika: 1187
*Sačuvaj oglas uz belešku i primaj obaveštenja o njihovom pojeftinjenju ili pojavljivanju sličnih
Prikaz stana na mapi
Parkovi u blizini
- Park Bistrica44 min

Obeležja kulture u blizini
- Dvorac Eđšeg14 min
- Jodna Banja16 min
- Dvorac Hadik-Kotek17 min

Škole/Fakulteti/Vrtići u blizini
- Osnovna škola (Osnovna škola Marija Trandafil)7 min
- Srednja škola (Privatna medicinska škola Dositej Obradović)6 min
- Vrtić (Dečiji vrtić Anđeo čuvar)21 min
- Fakultet (Protestantski teološki fakultet)8 min

- Bolnica (Ginekološka bolnica Ferona)6 min
- Klinika (Poliklinika Consilium)8 min
- Teretana (Fintess centar Basic Control Academy)7 min
- Prodavnica (Mikromarket)2 min
- Restoran (Restoran Exit West)23 min
- Kafana (Kafanica Kod Dače)38 min
- Taksi stajalište (Taxi prevoz Novi Sad)27 min
- Autobuska stanica (Veternička - Marije Bursać)4 min
- Banka (Erste Bank Ekspres ekspozitura)13 min
- Pošta (Pošta Novi Sad 21142)17 min
Kontakt oglašivača
Stambeni krediti
- Period otplate od
96 -360 meseca
- NKS 4.50%
EKS 5.74%
Fiksna kamatna stopa
- Bez troškova obrade kredita
- Period otplate od
96 -360 meseca
- NKS 4.34%
Kombinovana kamatna stopa
- Bez troškova obrade kredita
- Odobrenje kredita do 48h
stranici kreditnih kalkulatora
Keš krediti
Period otplate
13 meseci- Period otplate od 13 -71 mesec
- NKS 10.55%
- EKS od 10.87%
- Za klijente banke
mesečno





















