Četvorosoban stan na prodaju, Petrovaradin, 229.690€, 98m²




































229.690 €
2.344 € / m2
- Stan u zgradi
- U izgradnji
- Prostorije: terasa
- Uknjiženo
- Oglas oglašava agencija pod reg. brojem 174
Opis oglasa
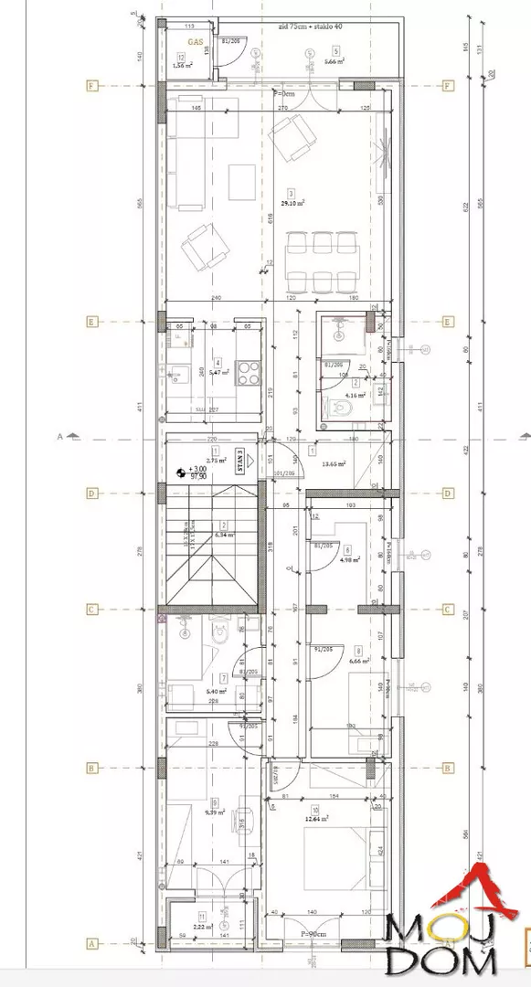
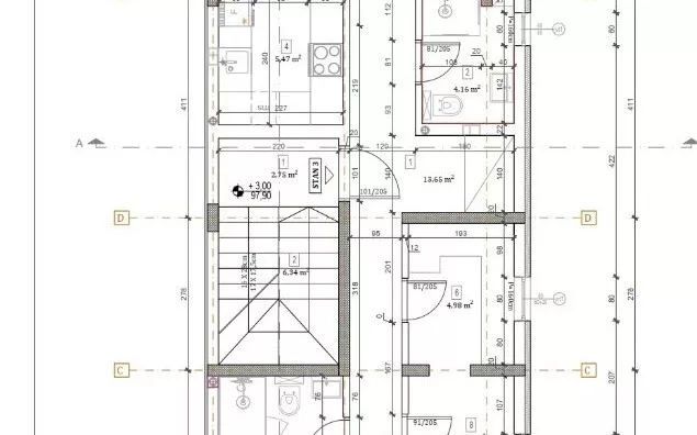
Na uzdignutoj i izuzetno mirnoj lokaciji iznad Preradovićeve ulice, u savremenoj urbanoj vili sa svega četiri stambene jedinice, nalazi se ovaj novi, luksuzno projektovan četvorosoban stan koji se s pravom izdvaja kao jedna od najkvalitetnijih ponuda u gradu. Smešten na prvom spratu zgrade novije gradnje, stan pruža osećaj privatnosti, komfora i tišine, uz otvoren i nesmetan pogled koji dodatno naglašava ekskluzivnost prostora.
Funkcionalan i promišljeno osmišljen raspored obuhvata prostran dnevni deo, tri spavaće sobe, dva moderno opremljena kupatila, kao i dve terase, od kojih jedna raspolaže praktičnom ostavom. Poseban kvalitet čini potpuno zaseban sistem grejanja i pripreme tople vode na gas, uz podno grejanje u celom stanu, koje se jednostavno kontroliše putem Wi-Fi mreže, omogućavajući maksimalnu energetsku efikasnost i komfor tokom cele godine.
Zgrada je završena 2024. godine, izvedena od kvalitetnih materijala i namenjena kupcima koji traže mirno porodično okruženje, ali i dobru povezanost sa gradom, zahvaljujući blizini autobuskih linija 3 i 9. Parking je obezbeđen u dvorištu zgrade, što dodatno doprinosi svakodnevnoj praktičnosti.
Stan je uknjižen, brzo useljiv i predstavlja idealan izbor kako za savremen porodični život, tako i za sigurnu dugoročnu investiciju na atraktivnoj lokaciji u Petrovaradinu.
Kontakt:
063... (prikaži broj telefona)
Šifra: 1031595
Agencija Moj Dom Nekretnine, Novi Sad – Reg. broj 174
Located in an elevated and exceptionally peaceful area above Preradovićeva Street, within a modern urban villa with only four residential units, this new, luxuriously designed four-bedroom apartment stands out as one of the finest offers in the city. Positioned on the first floor of a newly built residential building, the apartment provides a high level of privacy, comfort, and tranquility, enhanced by an open, unobstructed view that further emphasizes its exclusivity.
The thoughtfully designed and highly functional layout features a spacious living area, three bedrooms, two modern bathrooms, and two terraces, one of which includes a practical storage room. A key advantage of this property is the independent gas heating and hot water system, combined with underfloor heating throughout the apartment, fully controllable via Wi-Fi, ensuring maximum energy efficiency and year-round comfort.
The building was completed in 2024 using high-quality materials and is intended for buyers seeking a peaceful family environment while maintaining excellent connectivity to the city center, thanks to nearby public transport lines 3 and 9. A private parking space is provided within the building’s courtyard, adding to everyday convenience.
The apartment is registered, move-in ready, and represents an ideal choice both for modern family living and as a secure long-term investment at a highly desirable location in Petrovaradin.
Contact:
+38... (prikaži broj telefona)
Listing ID: 1031595
Agency: Moj Dom Nekretnine, Novi Sad – Reg. No. 174
На возвышенной и исключительно тихой локации над улицей Прерадовичева, в современной городской вилле всего с четырьмя жилыми единицами, расположен этот новый, роскошно спроектированный четырёхкомнатный апартамент, который по праву считается одним из самых качественных предложений в городе. Квартира находится на первом этаже здания новой постройки и обеспечивает высокий уровень приватности, комфорта и тишины, а открытый, ничем не перекрытый вид подчёркивает её эксклюзивность.
Функциональная и продуманная планировка включает просторную гостиную, три спальни, два современных санузла и две террасы, одна из которых оснащена удобной кладовой. Особым преимуществом является автономная система газового отопления и нагрева воды, а также тёплые полы по всей квартире, управляемые через Wi-Fi, что гарантирует максимальную энергоэффективность и комфорт в течение всего года.
Здание завершено в 2024 году, построено с использованием высококачественных материалов и идеально подходит для покупателей, ищущих спокойную семейную атмосферу при хорошей транспортной доступности благодаря близости автобусных линий №3 и №9. Парковочное место обеспечено во дворе здания, что значительно повышает удобство повседневной жизни.
Квартира зарегистрирована, готова к заселению и является отличным выбором как для современного семейного проживания, так и для надёжной долгосрочной инвестиции на престижной локации в Петроварадине.
Контакт:
+38... (prikaži broj telefona)
Код объекта: 1031595
Агентство: Moj Dom Nekretnine, Нови-Сад – Рег. № 174
(Moj Dom nekretnine,Novi Sad,Reg.br.174)
*Sačuvaj oglas uz belešku i primaj obaveštenja o njihovom pojeftinjenju ili pojavljivanju sličnih
Prikaz stana na mapi
Parkovi u blizini
- Limanski park17 min
- Kamenički park37 min
- Futoški park38 min

Obeležja kulture u blizini
- Kuća Jovana Jovanovića Zmaja5 min
- Kuća iz 1797. godine5 min
- Dvorac Marcibanji-Karačonji7 min

Škole/Fakulteti/Vrtići u blizini
- Osnovna škola (Privatna osnovna škola Svitac)5 min
- Srednja škola (Francusko-srpska gimnazija Petar I od Srbije)38 min
- Vrtić (Dečiji vrtić Plavi čuperak)4 min
- Fakultet (Educons Univerzitet)38 min

- Klinika (NK Poliklinika)10 min
- Teretana (Joga Yogaja Studio)5 min
- Prodavnica (Supermarket Univerexport)20 min
- Restoran (Restoran Mali Niš)19 min
- Kafana (Točionica Pab)19 min
- Taksi stajalište (Taxi Maxi Novosađani)23 min
- Autobuska stanica (Štrand - Okretnica)22 min
- Banka (Poštanska štedionica)5 min
- Pošta (Pošta Sremska Kamenica 21202)41 min
Kontakt oglašivača

Krediti OTP banke
Saznaj više
Prikazana rata odnosi se na maksimalni period otplate. Kalkulator je informativnog karaktera.
* Nakon isteka 5 godina, prelazi se na varijabilnu kamatnu stopu

