Jednoiposoban stan na prodaju, Palilula, 72.000€, 38m²






72.000 €
1.895 € / m2
- Stan u zgradi
- Grejanje na struju
- U izgradnji
- Prostorije: kupatilo, terasa
- Opremljenost: Prazno - internet
- Orijentacija ka: istok
- Pogled na: dvorište
- Uknjiženo
- Oglas oglašava agencija pod reg. brojem 2136
- 1 parking mesto, parking u dvorištu zgrade
- 1 lift
- Godina izgradnje: 2027.
- Zgrada poseduje: podrum
- Tip interneta: optički
- Kablovska
- 1 telefonska linija
Opis oglasa
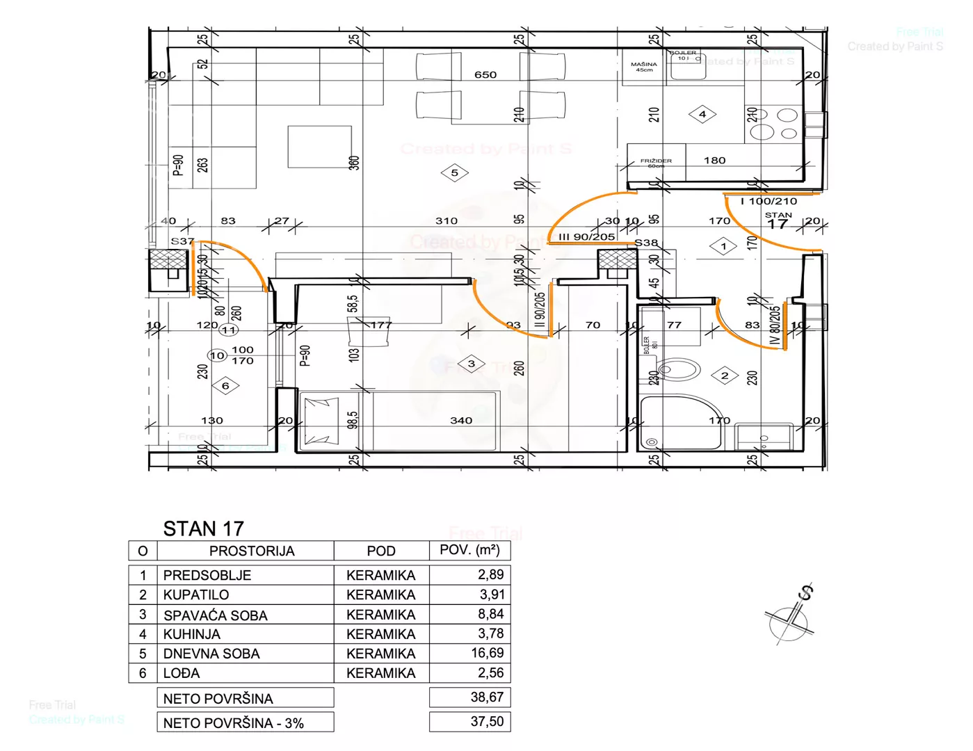
Prodaje se manji funkcionalan 1.5 stan 37,50 m2 stan u izgradnji u zgradi koja se gradi na Paluliluli u Mokranjčevoj ulici. Zgrada je PO+PR+4 sprata , gradi se kao mini kompleks i u blizini je buduća osnovna škola, autobuska linija, prodavnice, igralište za decu i na samo 1 km od centra grada.
Stan je na prvom spratu a zgrada poseduje lift. Sastoji se iz dnevnog boravka sa kuhinjom i trpezarijom, izdvojena spavaća soba, hodnik, kupatilo i terasa.
Kupovina je direktno od investitora, u cenu je uračunat PDV tako da ukoliko Vam je prva nekretnina imate pravo povraćaj PDV-a do 10 % .
U zgradi su dostupni i stanovi od 43m2 i 45 m2 na više spratova pa ukoliko Vas zanimaju slične nekretnine na ovoj lokaciji pozovite na telefon iz oglasa ili pošaljite poruku ( sms, viber, watsup) i kontaktiraćemo Vas u najkraćem roku.
*Sačuvaj oglas uz belešku i primaj obaveštenja o njihovom pojeftinjenju ili pojavljivanju sličnih
Prikaz stana na mapi
Parkovi u blizini
- Park Čair13 min
- Park složnih komšija26 min
- Park heroja NOB-a28 min

Obeležja kulture u blizini
- Vladičanski dvor5 min
- Donina česma6 min
- Spomenik Stevanu Sremcu i Kalči7 min

Škole/Fakulteti/Vrtići u blizini
- Osnovna škola (Osnovna škola Učitelj Tasa)6 min
- Srednja škola (Medicinska škola Dr Milenko Hadžić)5 min
- Vrtić (Kreativno zabavište Mikijeva radionica)5 min
- Fakultet (Univerzitet u Nišu Fakultet sporta i fizičkog vaspitanja)7 min

- Bolnica (Urgentni centar Niš)6 min
- Klinika (Poliklinika Dr Nikolić)5 min
- Teretana (Centar za rekreaciju Miss Fit Line)5 min
- Prodavnica (IDEA)5 min
- Restoran (Kafana Stara kuća)9 min
- Kafana (Pivnica Nemir)17 min
- Taksi stajalište (Bros Taxi Niš)21 min
- Autobuska stanica (Мокрањчева видиковац)2 min
- Banka (NLB Komercijalna banka)13 min
- Pošta (Pošta Niš 5)5 min
Kontakt oglašivača

Krediti OTP banke
Saznaj više
Prikazana rata odnosi se na maksimalni period otplate. Kalkulator je informativnog karaktera.
* Nakon isteka 5 godina, prelazi se na varijabilnu kamatnu stopu

