Dvoiposoban stan na prodaju, Obrenovac, 119.599€, 68m²












119.599 €
1.759 € / m2
Za ovaj oglas se neko interesovao. Pozovi ranije kako ne bi propustio priliku.
- Stan u zgradi
- Centralno grejanje
- Uknjiženo
- Oglas oglašava agencija pod reg. brojem 1699
Opis oglasa
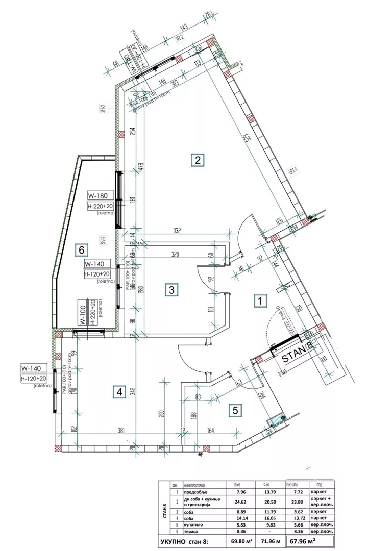
STAN 68 m2 - NOVOGRADNJA OBRENOVAC
Na prodaju stan u novogradnji u Rvatima u Obrenovcu, u blizini centra i svih važnih sadržaja, istovremeno nudi miran, moderan stil stanovanja. Stan je površine 68 m2, visoko prizemlje, terasa.
Cena: 1600 e/m2 + PDV
Za više informacija pozovite** 063... (prikaži broj telefona) **
Agencijska provizija iznosi 2% (minimum 500 e) i uključuje potpunu pravnu i administrativnu podršku, sigurnost u procesu kupoprodaje/zakupa, proveru dokumentacije, pregovore i profesionalno posredovanje do konačnog završetka posla.
*Sačuvaj oglas uz belešku i primaj obaveštenja o njihovom pojeftinjenju ili pojavljivanju sličnih
Prikaz stana na mapi
Parkovi u blizini
- Park heroja29 min

Obeležja kulture u blizini
- Spomenik Vladi Aksentijeviću i Budi Davidoviću7 min
- Spomen česma Karađorđu i učesnicima Prvog srpskog ustanka10 min
- Rodna kuća Vlade Aksentijevića10 min

Škole/Fakulteti/Vrtići u blizini
- Osnovna škola (Osnovna škola Ljubomir Aćimović)5 min
- Srednja škola (Tehnička škola Obrenovac)7 min
- Vrtić (Dečiji vrtić Nevena)5 min
- Fakultet (SMATSA školski centar)32 min

- Bolnica (Zavod za psihofiziološke poremećaje i govornu patologiju Dr Cvetko Brajović)34 min
- Klinika (Poliklinika Dr Dragoljub Mandić Tedi)7 min
- Teretana (Body building i fitness klub Ahilej)30 min
- Prodavnica (TSV Diskont)6 min
- Restoran (Restoran Đukić)23 min
- Kafana (Jack Union Pub)31 min
- Autobuska stanica (Naselje Dudovi)24 min
- Banka (AIK Banka)9 min
- Pošta (Pošta Obrenovac)4 min
Kontakt oglašivača
Za ovaj oglas se neko interesovao. Pozovi ranije kako ne bi propustio priliku.
Krediti OTP banke
Saznaj više
Prikazana rata odnosi se na maksimalni period otplate. Kalkulator je informativnog karaktera.
* Nakon isteka 5 godina, prelazi se na varijabilnu kamatnu stopu


