Troiposoban stan na prodaju, Novi Sad - Centar, 340.000€, 112m²




















































340.000 €
3.036 € / m2
- Salonac
- Centralno grejanje
- Renovirano
- Prostorije: kuhinja, ostava, terasa
- Opremljenost: Polunamešteno - internet, interfon, klima, sudo mašina, frižider, rerna, kanalizacija
- Uknjiženo
- Oglas oglašava agencija pod reg. brojem 1735
- 1 parking mesto
- Kanalizacija
- Zgrada poseduje: podrum
- Kablovska
- 1 telefonska linija
Opis oglasa
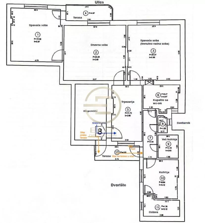
Predstavljamo na prodaju jedinstven Salonac površine 112m2.
Nekretnina se nalazi na prestižnoj lokaciji, u jednoj od najlepših ulica, na korak od keja, Dunavskog parka i pešačke zone.
Kompletno renoviran, opremljen novom kuhinjom i uređajima, spreman za useljenje.
Stan se odlikuje klasičnim salonskim rasporedom sa prostranim prostorijama i puno prirodne svetlosti.
- Prostran dnevni boravak
- Dve prostrane spavaće sobe
- Centralna trpezarija
- Odvojena kuhinja sa prirodnom ventilacijom (potpuno nova kuhinja sa belom tehnikom u garanciji)
- Ostava uz kuhinju sa prirodnom ventilacijom takođe
- Kupatilo sa kadom
- Dodatni gostinjski toalet
- Vešernica
- Hodnik
- Dve terase (jedna orijentisana ka ulici, druga ka dvorištu)
Stan se lako može adaptirati u dve odvojene stambene jedinice, ili dobiti još jedna spavaća soba.
Stanu pripadaju i dodatne prostorije prostorije. Tavanski prostor od 23m2, i podrumska prostorija u koju je sprovedena struja.
Zajedničko dvorište sa parkingom za stanare.
Uknjižen 1/1, moguća kupovina putem stambenog kredita.
Za dodatne informacije pozovite
+38... (prikaži broj telefona)
Siniša Kremenović, ELIT nekretnine, br. u registru posrednika 1735.
*Sačuvaj oglas uz belešku i primaj obaveštenja o njihovom pojeftinjenju ili pojavljivanju sličnih
Prikaz stana na mapi
Parkovi u blizini
- Dunavski park10 min
- Park srpsko-azerbejdžanskog prijateljstva18 min
- Limanski park20 min

Obeležja kulture u blizini
- Spomenik Svetozaru Miletiću5 min
- Matičarsko zdanje7 min
- Galerija Matice srpske2 min

Škole/Fakulteti/Vrtići u blizini
- Osnovna škola (Privatna osnovna škola Tvrđava)6 min
- Srednja škola (Gimnazija Isidora Sekulić)5 min
- Vrtić (Dečiji vrtić Vila)3 min
- Fakultet (Univerzitet u Novom Sadu Fakultet sporta i fizičkog vaspitanja)5 min

- Bolnica (Hirurška ordinacija Aesculap)4 min
- Klinika (Poliklinika Nada Diva)4 min
- Teretana (Fitness centar World Class Bazaar)4 min
- Prodavnica (Supermarket Univerexport)4 min
- Restoran (Macchiato Kuća eat & dream)4 min
- Kafana (Invicta Pub)3 min
- Taksi stajalište (Zeleni Eko Taxi)16 min
- Autobuska stanica (Žarka Zrenjanina - Opština)4 min
- Banka (Narodna banka Srbije)3 min
- Pošta (Pošta Novi Sad 21108)7 min
Kontakt oglašivača
Krediti OTP banke
Saznaj više
Prikazana rata odnosi se na maksimalni period otplate. Kalkulator je informativnog karaktera.
* Nakon isteka 5 godina, prelazi se na varijabilnu kamatnu stopu






















