Dvosoban stan na prodaju, Masarikova, 155.872€, 48m²




155.872 €
3.247 € / m2
- Centralno grejanje
- Novo
- Prostorije: kupatilo
- Oglas oglašava agencija pod reg. brojem 1784
- 1 telefonska linija
Opis oglasa
NOVOGRADNJA – CENTAR NOVOG SADA – BEZ PROVIZIJE
Na prodaju prostran dvosoban stan u kvalitetnoj novogradnji, u samom centru Novog Sada. Stan se nalazi na 1. spratu moderne stambene zgrade sa liftom.
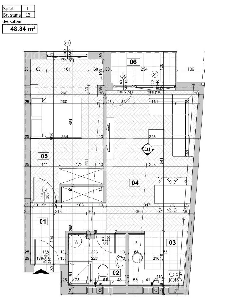
Površina: 48,71 m²
Struktura: dvosoban
Sprat: 1
Grejanje: centralno gradsko grejanje sa potenciometrom
Cena: 155.872 € (3.200 €/m² sa PDV-om)
📅 Završetak radova: maj 2027. godine
✨ Stan je u izgradnji i biće izveden po savremenim standardima, sa kvalitetnim materijalima i funkcionalnim rasporedom prostorija. Odličan izbor za stanovanje ili kao investicija u centralnoj gradskoj zoni.
📍 U neposrednoj blizini nalaze se škole, vrtići, prodavnice, gradski prevoz i pešačka zona.
📞 Za više informacija, planove i rezervaciju, kontakt 063... (prikaži broj telefona) !!!
*Sačuvaj oglas uz belešku i primaj obaveštenja o njihovom pojeftinjenju ili pojavljivanju sličnih
Prikaz stana na mapi
Parkovi u blizini
- Dunavski park15 min
- Park srpsko-azerbejdžanskog prijateljstva20 min
- Futoški park22 min

Obeležja kulture u blizini
- Matičarsko zdanje5 min
- Spomen ploča Albertu Ajnštajnu i Milevi Marić5 min
- Katolička plebanija7 min

Škole/Fakulteti/Vrtići u blizini
- Osnovna škola (Osnovna škola Ivo Lola Ribar)7 min
- Srednja škola (Gimnazija Svetozar Marković)4 min
- Vrtić (Dečiji vrtić Bubica)4 min
- Fakultet (Univerzitet u Novom Sadu Akademija umetnosti)7 min

- Bolnica (Ginekološka bolnica Genesis)7 min
- Klinika (Poliklinika Dijagnostika Centar)4 min
- Teretana (Fitness Mim Team)1 min
- Prodavnica (IDEA)2 min
- Restoran (Restoran Sokače)4 min
- Kafana (Kafana Šešir)manje od 1 min
- Taksi stajalište (Zeleni Eko Taxi)13 min
- Autobuska stanica (Uspenska - Šafarikova)4 min
- Banka (Erste Bank)7 min
- Pošta (Pošta Novi Sad 21117)7 min
Kontakt oglašivača
Krediti OTP banke
Saznaj više
Prikazana rata odnosi se na maksimalni period otplate. Kalkulator je informativnog karaktera.
* Nakon isteka 5 godina, prelazi se na varijabilnu kamatnu stopu

