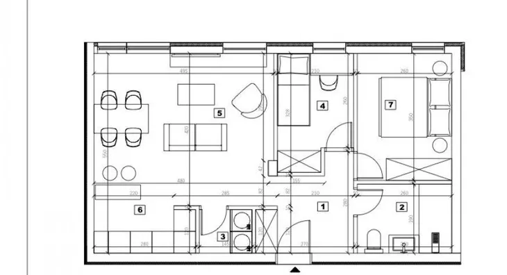
Trosoban stan na prodaju, Nova Pazova, 78.210€, 52m²
























78.210 €
1.504 € / m2
- Stan u zgradi
- Grejanje na gas
- Novo
- Prostorije: terasa
- Opremljenost: Prazno - internet, interfon, klima, kanalizacija
- Oglas oglašava agencija pod reg. brojem 1667
- 1 garažno mesto
- 1 parking mesto
- 1 lift
- Kanalizacija
- Godina izgradnje: 2024.
- Zgrada poseduje: video nadzor
- Kablovska
- 1 telefonska linija
Opis oglasa
ID 1206 Za više informacija i razgledanje možete pozvati na 064... (prikaži broj telefona) !
BEZ agencijske provizije – direktna kupovina od investitora
Pravni nadzor – izrada i overa kupoprodajnog ugovora obezbeđena
Cena bez PDV-a – pravo na povraćaj PDV-a za kupce prvog stana
Objekat:
- 3 lamele, 56 stanova, 2 poslovna prostora, 12 garaža, 54 parking mesta
- Moderan stambeno-poslovni kompleks sa vrhunskom funkcionalnošću i komforom
Dodatne pogodnosti:
- Parking mesto: 5.000 € + PDV
- Garažno mesto: 10.000 € + PDV
Dizajn i Kvalitet:
- Unikatan dizajn – inspirisan vojvođanskom arhitekturom,
-Sigurnosna ulazna metalna vrata sa oplatom od medijapana u boji drveta obostrano "Svetli hrast", kao i unutrasnja, lakirana u beloj boji - Laminat nemackog proizvodjaca Egger, standard sanitarije sa ugradnim vodokotlicem, +-
- Keramika I klase, završna visina plafona 270 cm,
-Toplotna i zvucna izolacija - kamena vuna 10 cm - Prvoklasni materijali – visok standard gradnje i završne obrade
Zdrav i Miran Život:
- Bez zagađenja i saobraćajnih gužvi – idealno za svakodnevne obaveze peške ili biciklom
- Blizina prirode – ekološki čistije okruženje
Sigurna Investicija:
- Rast tržišne vrednosti – stanovi koji vremenom dobijaju na vrednosti
- Planirane kapitalne investicije – sportska hala i gradski stadion u izgradnji
Sky City Residences:
- 53 moderno dizajnirana stana – prostrane terase i velike staklene površine
- Bezbednost: 24-časovni nadzor, video nadzor i kontrola pristupa
- Parking: 12 garaža i 54 parking mesta za stanare i posetioce
Lokacija:
- Blizina Beograda i Novog Sada – 30 minuta vožnje automobilom ili 20 minuta brzim vozom
- Pozicioniran u centru Nove Pazove – idealno za miran i komforan život
Broj u registru posrednika: 1667
*Sačuvaj oglas uz belešku i primaj obaveštenja o njihovom pojeftinjenju ili pojavljivanju sličnih
Prikaz stana na mapi
Obeležja kulture u blizini
- Ambar sa kotobanjom porodice Lepšanović25 min
- Ambar sa kotobanjom porodice Galečić26 min
- Dvorac Šlos26 min

Škole/Fakulteti/Vrtići u blizini
- Osnovna škola (Osnovna škola Rastko Nemanjić)5 min
- Srednja škola (Gimnazija Branko Radičević)15 min
- Vrtić (Dečiji vrtić Poletarac)6 min
- Fakultet (SMATSA školski centar)30 min

- Bolnica (Klinika za lečenje bolesti zavisnosti MedTim)18 min
- Klinika (Poliklinika Nova Pazova)6 min
- Teretana (Teretana B Gym)13 min
- Prodavnica (PerSu market)6 min
- Restoran (Restoran Staro mesto)13 min
- Kafana (Pab Two Beers)8 min
- Autobuska stanica11 min
- Banka (Erste Bank)5 min
- Pošta (Pošta Nova Pazova)4 min
Kontakt oglašivača
Krediti OTP banke
Saznaj više
Prikazana rata odnosi se na maksimalni period otplate. Kalkulator je informativnog karaktera.
* Nakon isteka 5 godina, prelazi se na varijabilnu kamatnu stopu


