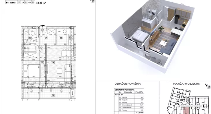
Jednoiposoban stan na prodaju, Nova Detelinara, 133.700€, 43m²


133.700 €
3.109 € / m2
- Stan u zgradi
- Centralno grejanje
- U izgradnji
- Prostorije: terasa
- Oglas oglašava agencija pod reg. brojem 405
- 1 lift
- Godina izgradnje: 2026.
Opis oglasa
NOVI SAD.NOVA DETELINARA.JEDNOIPOSOBAN STAN.PLUS PDV((Svet nekretnine, Novi Sad, Reg. br. 405)
*Sačuvaj oglas uz belešku i primaj obaveštenja o njihovom pojeftinjenju ili pojavljivanju sličnih
Prikaz stana na mapi
Parkovi u blizini
- Železnički park18 min
- Park Bistrica21 min
- Futoški park22 min

Obeležja kulture u blizini
- Jodna Banja10 min
- Spomen ploča Albertu Ajnštajnu i Milevi Marić13 min
- Dvorac Eđšeg14 min

Škole/Fakulteti/Vrtići u blizini
- Osnovna škola (Osnovna škola Dositej Obradović)7 min
- Srednja škola (Škola za dizajn Bogdan Šuput)5 min
- Vrtić (Dečiji vrtić Lunja i Maza)1 min
- Fakultet (Univerzitet u Novom Sadu Medicinski fakultet)8 min

- Bolnica (NS specijalna bolnica za hemodijalizu)4 min
- Klinika (Poliklinika Galetić)6 min
- Teretana (Sportsko udruženje Joga Om)8 min
- Prodavnica (Supermarket Univerexport)2 min
- Restoran (Restoran My Way)4 min
- Kafana (Točionica Pab)6 min
- Taksi stajalište (Crveni Taxi)13 min
- Autobuska stanica (Hadži Ruvimova - Ilije Birčanina)3 min
- Banka (Raiffeisen Bank)5 min
- Pošta (Pošta Novi Sad 21140)2 min
Kontakt oglašivača
Krediti OTP banke
Saznaj više
Prikazana rata odnosi se na maksimalni period otplate. Kalkulator je informativnog karaktera.
* Nakon isteka 5 godina, prelazi se na varijabilnu kamatnu stopu






















