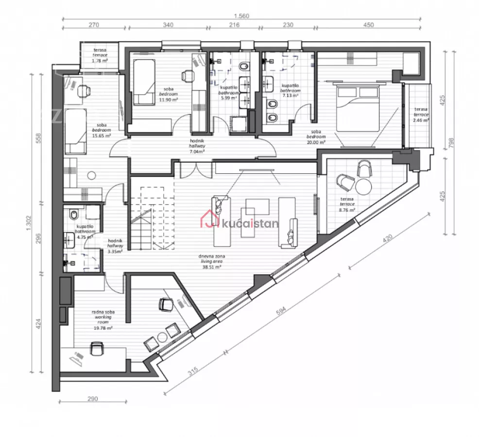
Petosoban stan na prodaju, Neimar, 1.269.745€, 289m²












1.269.745 €
4.394 € / m2
- Dupleks
- Novo
- Prostorije: terasa
- Opremljenost: Prazno - internet, interfon, klima, kanalizacija
- Uknjiženo
- Oglas oglašava agencija pod reg. brojem 1564
- 1 garažno mesto
- 1 parking mesto
- 1 lift
- Kanalizacija
- Zgrada poseduje: lođa, video nadzor
- Kablovska
- 1 telefonska linija
Opis oglasa
U najlepšem i najtraženijem delu Vračara, u blizini Neimarskog parka gradi se stambeni kompleks vrhunskog kvaliteta, namenjen onima koji ne pristaju na kompromis kada je u pitanju kvalitet. Zgrada se gradi prema najvišim standardima, a enterijer je pažljivo dizajniran da obezbedi funkcionalnost i udobnost.
- Istočna orijentacija.
Lokacija je okružena renomiranim školama, vrtićima i parkovima u mirnom, tihom i zelenom delu Vračara, a opet odlično povezana sa celim gradom i na samo nekoliko minuta od autoputa. Nudi sve ono što gradski život čini istinski kvalitetnim.
***Useljenje će biti najkasnije do septembra 2026.
***U cenu stana nije uračunat PDV koji iznosi 10% i za koji se može dobiti povrat ukoliko vam je ovo prvi stan.
-Grejanje i hlađenje u stanovima rešeni su primenom savremenih toplotnih pumpi renomiranih proizvođača (LG, Toshiba), u kombinaciji podnog grejanja i fancoil uređaja.
- Završna obrada fasade podrazumeva ventilisani sistem na aluminijumskoj podkonstrukciji sa termoizolacijom od mineralne vune, oblogama od opeke, aluminijumskih i HPL kompozitnih panela u teksturi drveta.
- Kupatilske kanalizacione cevi su bešumne.
- Ugrađuje se A-klasa sanitarne opreme poznatih proizvođača (Villeroy&Boch).
- Dostupne su klasične kade, tuš kabine i "walk-in" tuševi sa staklenim pregradama. Kade su čelične, renomiranih proizvođača (.Laufen), dok su tuš kabine sa aluminijumskim profilima i panelima od kaljenog stakla (Huppe). Baterije su vrhunskog kvaliteta (Hansgrohe).
- Balkonske ograde su od kaljenog stakla sa sigurnosnom folijom.
- Sistemi za zaštitu od sunca su motorizovani, proizvođača Hunter Douglas.
- U kupatilima se ugrađuju granitna keramika i A-klasa keramičke pločice velikog formata, laserski sečene, modernog dizajna, italijanskih brendova (Marazzi, ItalGraniti).
- Zidovi između stanova su izvedeni kao sendvič konstrukcija sa termičkom i zvučnom izolacijom.
Pametni sistem upravljanja („smart home“) omogućava kontrolu grejanja i hlađenja, zasenjivanja i zamračivanja prostorija, multimedije i drugih integrisanih sistema.
Agencija: Kuća i stan DOO,
Hadži Prodanova 14/1,
Beograd/Vračar,
Reg. br. agencije: 1564
*Sačuvaj oglas uz belešku i primaj obaveštenja o njihovom pojeftinjenju ili pojavljivanju sličnih
Prikaz stana na mapi
Parkovi u blizini
- Karađorđev park1 min
- Svetosavski plato5 min
- Park Milutina Milankovića6 min

Obeležja kulture u blizini
- Spomenik Lamartinumanje od 1 min
- Spomenik žrtvama bombardovanja Beograda1 min
- Spomenik Internacionalnim brigadama1 min

Škole/Fakulteti/Vrtići u blizini
- Osnovna škola (Privatna osnovna škola Vladislav Petković Dis)6 min
- Srednja škola (Prva škola integrativne medicine Alvita Plus)6 min
- Vrtić (Dečiji vrtić Beli zeka)5 min
- Fakultet (Univerzitet u Beogradu Stomatološki fakultet)5 min

- Bolnica (Klinika za bolesti zuba)2 min
- Klinika (Poliklinika Medikom)5 min
- Teretana (Apurva Body Studio)5 min
- Prodavnica (IDEA)2 min
- Restoran (District 1 Wine bar & Gastrolounge)2 min
- Kafana (Tatar Bar)5 min
- Taksi stajalište (Pet Taxi)6 min
- Autobuska stanica (Franše d'Eperea)4 min
- Tramvajska stanica (Karađorđev Park)4 min
- Trolejbuska stanica (Katanićeva)11 min
- Banka (Banca Intesa)8 min
- Pošta (Pošta Beograd 120)5 min
Kontakt oglašivača
Krediti OTP banke
Saznaj više
Prikazana rata odnosi se na maksimalni period otplate. Kalkulator je informativnog karaktera.
* Nakon isteka 5 godina, prelazi se na varijabilnu kamatnu stopu


