Četvorosoban stan na prodaju, Neimar, 479.564€, 109m²




479.564 €
4.400 € / m2
- Stan u zgradi
 - Novo
 - Prostorije: terasa
 - Opremljenost: Prazno - internet, interfon, klima, kanalizacija
 - Uknjiženo
 - Oglas oglašava agencija pod reg. brojem 1564
 
- 1 garažno mesto
 - 1 parking mesto
 
- 1 lift
 - Kanalizacija
 - Zgrada poseduje: lođa, video nadzor
 
- Kablovska
 - 1 telefonska linija
 
Opis oglasa
U najlepšem i najtraženijem delu Vračara, gradi se stambeni kompleks vrhunskog kvaliteta, namenjen onima koji ne pristaju na kompromis kada je u pitanju kvalitet. Zgrada se gradi prema najvišim standardima, a enterijer je pažljivo dizajniran da obezbedi funkcionalnost i udobnost.
***U ponudi su stanovi od dvosobnih do četvorosobnih struktura, uključujući duplekse sa prostranim krovnim terasama – za one koji traže nešto više od prostora.
***U cenu stana nije uračunat PDV koji iznosi 10% i za koji se može dobiti povrat ukoliko vam je ovo prvi stan.
****Planirani završetak gradnje avgust 2026.
Vrhunski standardi gradnje i udobnosti, arhitektura po poslednjim svetskim trendovima:
Enterijer je osmišljen sa pažnjom ka svakom detalju, uz upotrebu najkvalitetnijih materijala i savremenih tehnoloških rešenja: troslojni parket renomiranog proizvođača Lamar, granitna keramika prve klase Porcelanosa, kao i staklena ograda od sigurnosnog laminiranog i kaljenog stakla (8+8 mm).
Sanitarije su brenda Laufer, sa Hansgrohe baterijama u kupatilu.
Spoljna aluminijumska bravarija je Wicona (Nemačka), sa zvučnom izolacijom. Unutrašnja stolarija i ulazna vrata su Bosal LUX, dok su sobna vrata domaćeg proizvođača Omorika.
Vimar elektro galanterija iz Italije dodatno doprinosi sofisticiranom izgledu enterijera.
Stan poseduje SMART home sistem, toplotne pumpe, podno grejanje i plafonsko hlađenje, što garantuje potpunu udobnost tokom cele godine. Privatna podzemna garaža sa 24 mesta – sigurnost i komfor uvek zagarantovani.
Savršen spoj urbanog duha i vrhunskog komfora, namenjen onima koji znaju da prepoznaju vrednost stila, kvaliteta i lokacije. Retko u ponudi, jedinstveno na tržištu.
Stan je dvostrano orijentisan istok - zapad
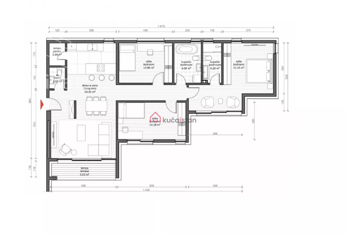
STRUKTURA:
- Dnevna soba 44.45
 - Soba 12.00
 - Kupatilo 6.09
 - Kupatilo 4.20
 - Soba 21.15
 - Soba 14.18
 - Ostava 2.04
 - Wc 1.92
 - Terasa 5.63
 
Lokacija koja ima sve:
Smeštena u jednom od najautentičnijih i najlepših delova Vračara, ulica odiše urbanim profinjenošću. U neposrednoj blizini nalaze se prepoznatljivi gradski simboli – Hram Svetog Save, Kalenić pijaca i Neimarski park – stvarajući jedinstven spoj kulture, svakodnevne udobnosti i prirodnog ambijenta. Okružena renomiranim školama, vrtićima, galerijama, pozorištima, kafićima i restoranima, ova lokacija nudi sve ono što čini gradski život istinski kvalitetnim. Sa odličnom povezanošću i tišinom u srcu metropole, predstavlja savršen balans između dinamike i intime.
Agencija: Kuća i stan DOO,
Hadži Prodanova 14/1,
Beograd/Vračar,
Reg. br. agencije: 1564
*Sačuvaj oglas uz belešku i primaj obaveštenja o njihovom pojeftinjenju ili pojavljivanju sličnih
Prikaz stana na mapi
Parkovi u blizini
- Karađorđev park1 min
 - Svetosavski plato5 min
 - Park Milutina Milankovića6 min
 

Obeležja kulture u blizini
- Spomenik Lamartinumanje od 1 min
 - Spomenik žrtvama bombardovanja Beograda1 min
 - Spomenik Internacionalnim brigadama1 min
 

Škole/Fakulteti/Vrtići u blizini
- Osnovna škola (Privatna osnovna škola Vladislav Petković Dis)6 min
 - Srednja škola (Prva škola integrativne medicine Alvita Plus)6 min
 - Vrtić (Dečiji vrtić Beli zeka)5 min
 - Fakultet (Univerzitet u Beogradu Stomatološki fakultet)5 min
 

- Bolnica (Klinika za bolesti zuba)2 min
 - Klinika (Poliklinika Medikom)5 min
 - Teretana (Apurva Body Studio)5 min
 
- Prodavnica (IDEA)2 min
 - Restoran (District 1 Wine bar & Gastrolounge)2 min
 - Kafana (Tatar Bar)5 min
 
- Taksi stajalište (Pet Taxi)6 min
 - Autobuska stanica (Franše d'Eperea)4 min
 - Tramvajska stanica (Karađorđev Park)4 min
 - Trolejbuska stanica (Katanićeva)11 min
 
- Banka (Banca Intesa)8 min
 - Pošta (Pošta Beograd 120)5 min
 
Kontakt oglašivača
Stambeni krediti

- Period otplate od
96 -360 meseca 
- NKS 4.75%
EKS 5.74%
Fiksna kamatna stopa 
- Bez troškova obrade kredita
 
stranici kreditnih kalkulatora
Keš krediti
Period otplate
13 meseci
