Jednoiposoban stan na prodaju, Mirijevo, 160.000€, 64m²












160.000 €
2.500 € / m2
- Etažno grejanje
- Prostorije: kupatilo
- Opremljenost: Prazno - interfon, klima
- Uknjiženo
- Oglas oglašava agencija pod reg. brojem 935
- 1 garažno mesto
- 1 lift
- Godina izgradnje: 2025.
- Zgrada poseduje: lođa
- 1 telefonska linija
Opis oglasa
NOVOGRADNJA MIRIJEVO – MODERAN STAN U PRIRODNOM OKRUŽENJU
Cena stana je 160000 eur
Predstavljamo vam jedinstvenu priliku za savremeno i komforno stanovanje u jednom od najlepših delova Mirijeva – na uzvišenju sa panoramskim pogledom na Dunav i Avalu!
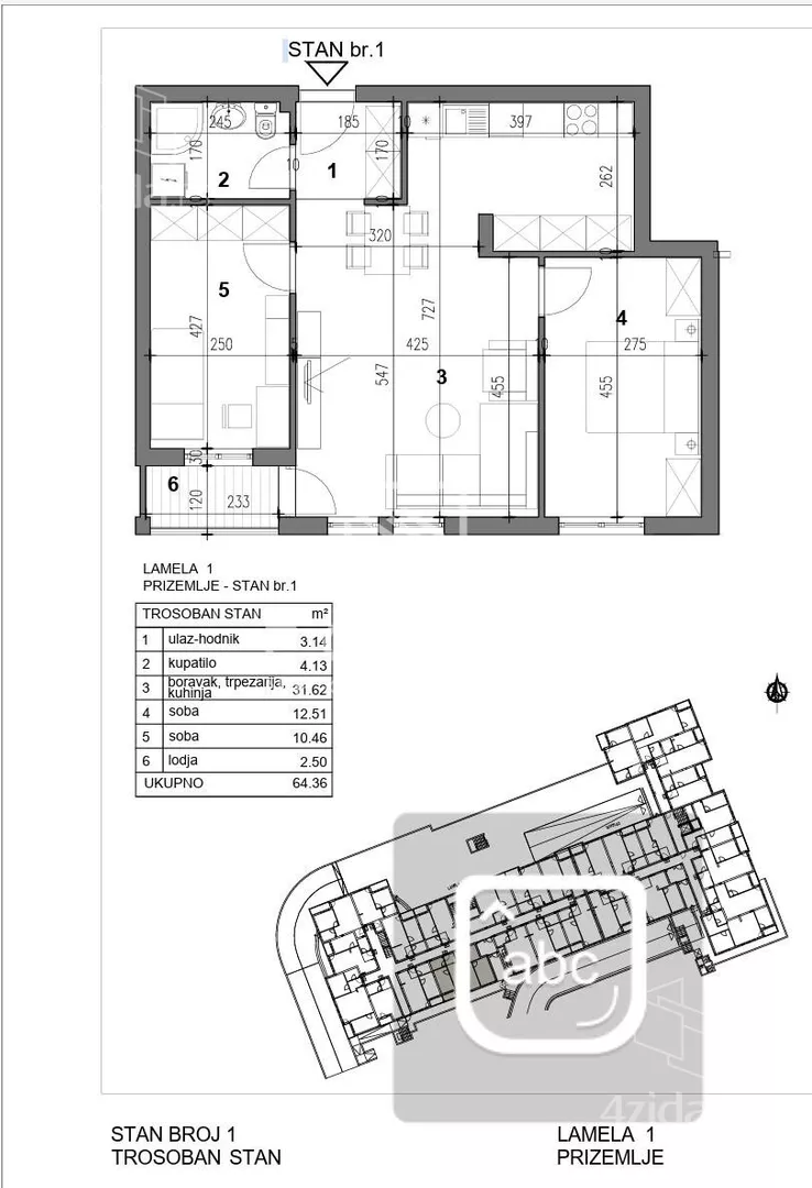
Stan se sastoji iz hodnika,dnevno trpezarijskog boravka sa kuhinjom, dve spavaće sobe, kupatila i lođe sa prelepim pogledom.
Lokacija:
Mirna i zelena zona, idealna za porodičan život – udaljena od buke i saobraćaja, a na samo par minuta od:
gradskog prevoza,škola ,vrtića, marketa, banke, pijace i Doma zdravlja
O zgradi:
Novogradnja – rok završetka mart 2026.
Dve lamele, po četiri sprata + povučeni sprat
Dva lifta, podzemna garažai Rampa za invalide
Kvalitet gradnje:
Hrastov višeslojni parket, termo blokovi poboljšanih karakteristika, PVC stolarija sa dvoslojnim staklom i aluminijumske roletne
Stanovi su opremljeni:
Norveškim radijatorima,Walk-in tuševima,sušačima veša i kvalitetnim pločicama renomiranih brendova
Dodatne pogodnosti:
Garažna mesta sa ventilacijom i protivpožarnim sistemom koje možete kupiti po ceni od 12000 eur sa uračunatim PDV(20%).
Mogućnost ugradnje elektro-punjača (uz doplatu)
Cena:
Za više informacija, prezentaciju stana i rezervacije, kontaktirajte nas već danas.
.
Agencijska provizija 2%
*Sačuvaj oglas uz belešku i primaj obaveštenja o njihovom pojeftinjenju ili pojavljivanju sličnih
Prikaz stana na mapi
Kontakt oglašivača
Krediti OTP banke
Saznaj više
Prikazana rata odnosi se na maksimalni period otplate. Kalkulator je informativnog karaktera.
* Nakon isteka 5 godina, prelazi se na varijabilnu kamatnu stopu


